Eagle Way, Great Warley, Brentwood

£575,000

4 Bedroom Detached House for sale in Brentwood

1 4 2
  • Four bed semi-detached family home
  • Driveway to front allowing off street parking
  • Easy to maintain garden with spacious outhouse (power and light)
  • Stunning Interior
  • Two full bathroom suites
  • Utility Room
  • Sought after location
  • Close to Warley playing fields

**GUIDE PRICE £575,000 - £600,000** Nestled in the charming area of Eagle Way, Great Warley, Brentwood, this stunning semi detached house offers a perfect blend of modern living and comfort. With four spacious bedrooms, this property is ideal for families seeking a welcoming home. The interior is beautifully designed, showcasing a contemporary style that is both inviting and functional.

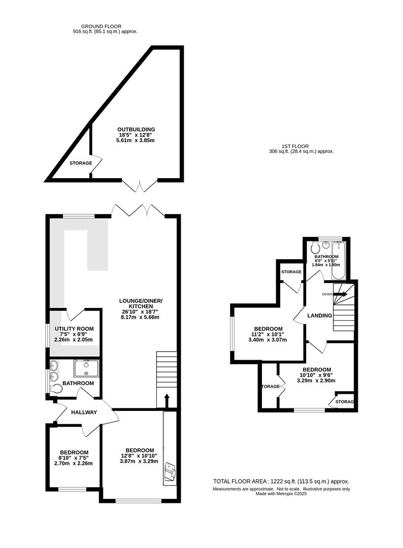
Step inside to find a stunning interior that blends modern design with functional living. The ground floor features a bright and expansive open-plan lounge/diner/kitchen measuring over 26 feet in length, ideal for entertaining or relaxed family living. A utility room offers additional convenience, while a full bathroom suite and two well-proportioned bedrooms complete the ground floor layout.

Rising upstairs, you will find two additional double bedrooms, both with built-in storage, and a further family bathroom. The layout is thoughtfully designed to offer privacy and ease for all members of the household, whether family or guests.

To the rear is a low-maintenance garden that offers a peaceful space to relax and enjoy the outdoors. A standout feature is the spacious outbuilding, fully equipped with power and lighting - ideal for use as a home office, gym, studio, or workshop. Additional storage spaces throughout the property provide further convenience. The property also benefits from off-street parking to the front via a private driveway.

Finished to a high standard throughout, this home delivers a superb blend of style, space, and functionality. With a total floor area of approximately 1,222 sq.ft. (113.5 sq.m.), it's a property that must be viewed to be fully appreciated.

Hallway -

Lounge/Diner/Kitchen - 8.18m x 5.66m (26'10 x 18'7) -

Utility - 2.26m x 2.06m (7'5 x 6'9) -

Bathroom -

Bedroom One - 3.86m x 3.30m (12'8 x 10'10) -

Bedroom Two - 2.69m x 2.26m (8'10 x 7'5) -

First Floor Landing -

Bedroom Three - 3.30m x 2.90m (10'10 x 9'6) -

Bedroom Four - 3.40m x 3.07m (11'2 x 10'1) -

Bathroom - 1.83m x 1.80m (6'0 x 5'11) -

Agents Note - As part of the service we offer we may recommend ancillary services to you which we believe may help you with your property transaction. We wish to make you aware, that should you decide to use these services we will receive a referral fee. For full and detailed information please visit 'terms and conditions' on our website www.keithashton.co.uk

Property Ref: 34237616

Share:

Similar Properties

Burntwood Way, Brentwood

3 Bedroom Semi-Detached House | £575,000

GUIDE PRICE £575,000 - £600,000. Set in this quiet and peaceful cul-de-sac within the sought after area of West Brentwoo...

Hanging Hill Lane, Hutton, Brentwood

4 Bedroom Semi-Detached House | Guide Price £575,000

**Guide Price £575,000 - £600,000** We are pleased to present this well-proportioned four-bedroom family home, ideally l...

Ongar Road, Pilgrims Hatch, Brentwood

3 Bedroom Detached Bungalow | £575,000

We are pleased to offer this detached bungalow, situated in the popular Pilgrims Hatch area and available with No Onward...

Elm Gardens, Mountnessing, Brentwood

4 Bedroom Semi-Detached House | £580,000

We are delighted to present this stylish four-bedroom semi-detached family home, set within the 'The Elms' development i...

Bardeswell Close, Brentwood

3 Bedroom Semi-Detached House | £600,000

We are delighted to bring to market this semi-detached family home, ideally positioned within close proximity of Brentwo...

Orchard Lane, Pilgrims Hatch, Brentwood

3 Bedroom Detached House | Offers in excess of £600,000

We are delighted to bring to the market this well-presented detached family home, ideally located in the ever-popular Pi...

Keith Ashton Estates - Brentwood Office (Brentwood)

26 St. Thomas Road, Brentwood, Essex, CM14 4DB

01277 260858

How much is your home worth?

Use our short form to request a valuation of your property.

Request a Valuation

Mortgage Calculator

Amount Borrowed: £
Total Amount Repayable: £
Total Monthly Payment: £
©2026 The Guild of Property Professionals. All rights reserved. Terms and Conditions | Privacy Policy | Cookie Policy | Complaints Policy | Members Login
The Guild of Property Professionals Trading Address: 121 Park Lane, London W1K 7AG. GPEA Limited. Registered in England & Wales.  Company No: 02819824.  Registered Office Address: 2 St. Stephen's Court, St. Stephen's Road, Bournemouth, Dorset, England, BH2 6LA.  VAT Registration No: 576 8795 61
Book a Property Valuation Update Cookies Preferences