Elm Gardens, Mountnessing, Brentwood

£580,000
SSTC
This property listing is now SSTC

4 Bedroom Semi-Detached House for sale in Brentwood

1 4 2
  • FOUR BEDROOM FAMILY HOME
  • STYLISH KITCHEN / DINER
  • INTEGRATED APPLIANCES
  • EN-SUITE TO PRINCIPAL BEDROOM
  • WITHIN 2 MILES OF SHENFIELD STATION
  • SOUTH FACING REAR GARDEN
  • DOUBLE LENGTH GARAGE
  • NO ONWARD CHAIN

We are delighted to present this stylish four-bedroom semi-detached family home, set within the 'The Elms' development in the charming village of Mountnessing. Beautifully presented throughout and finished to a high standard, this home offers spacious living across two floors, perfectly designed for modern family life.

Offered with No Onward Chain and ideally located, residents can enjoy the village's welcoming pubs, picturesque countryside walks, and a strong community feel, all while being less than 2 miles from Shenfield Mainline Station, providing excellent transport links into London and beyond.

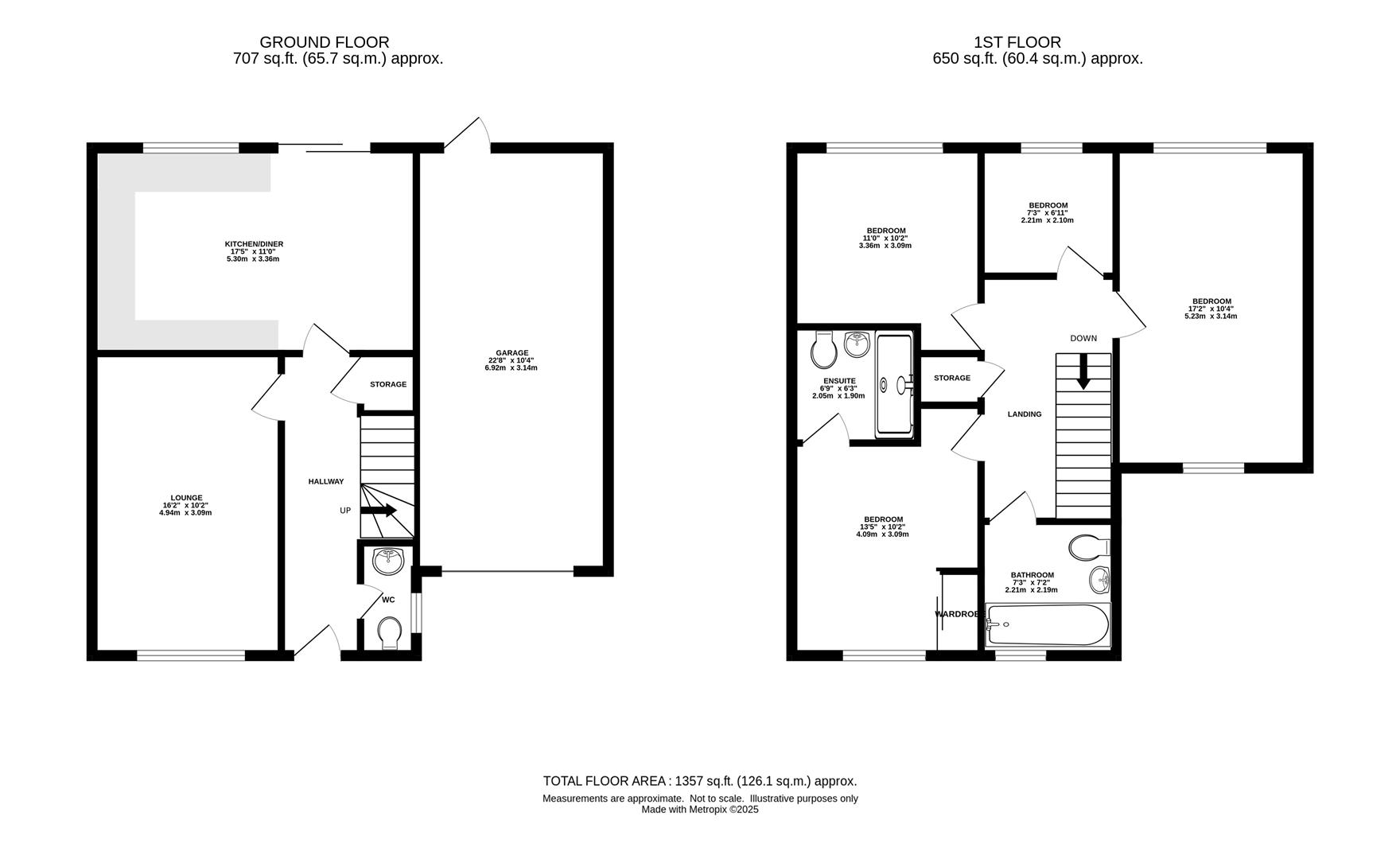
The internal layout opens with a welcoming entrance hall that flows seamlessly into a bright and inviting lounge positioned at the front of the home. To the rear, a stunningly designed kitchen showcases sleek high-gloss wall and base units, quartz worktops, and a range of integrated appliances. Double sliding doors flood the space with natural light and provide direct access to the rear garden. Practical features include under-stair storage and a conveniently located WC, completing the ground floor.

Ascending to the first floor, the landing connects all bedrooms. The principal suite, set to the front of the property, boasts a beautifully appointed ensuite shower room. Two additional well-sized double bedrooms and a well proportioned single bedroom are served by a stylish, contemporary family bathroom.

Outside, the south-facing rear garden begins with a decked seating area, ideal for outdoor entertaining, leading to a low-maintenance artificial lawn. The property also benefits from a double-length garage, accessible both from the garden and via an up-and-over door at the front.

Entrance Hall -

Lounge - 4.94 x 3.09 (16'2" x 10'1") -

Kitchen/Diner - 5.30 x 3.36 (17'4" x 11'0") -

Wc -

Landing -

Bedroom One - 4.09 x 3.09 (13'5" x 10'1") -

Garage - 6.92 x 3.14 (22'8" x 10'3") -

Ensuite - 2.05 x 1.90 (6'8" x 6'2") -

Bedroom Two - 5.23 x 3.14 (17'1" x 10'3") -

Bedroom Three - 3.36 x 3.09 (11'0" x 10'1") -

Bedroom Four - 2.21 x 2.10 (7'3" x 6'10") -

Bathroom - 2.21 x 2.19 (7'3" x 7'2") -

Agents Note - As part of the service we offer we may recommend ancillary services to you which we believe may help you with your property transaction. We wish to make you aware, that should you decide to use these services we will receive a referral fee. For full and detailed information please visit 'terms and conditions' on our website www.keithashton.co.uk

Property Ref: 34375034

Share:

Similar Properties

Burntwood Way, Brentwood

3 Bedroom Semi-Detached House | £575,000

GUIDE PRICE £575,000 - £600,000. Set in this quiet and peaceful cul-de-sac within the sought after area of West Brentwoo...

Hanging Hill Lane, Hutton, Brentwood

4 Bedroom Semi-Detached House | Guide Price £575,000

**Guide Price £575,000 - £600,000** We are pleased to present this well-proportioned four-bedroom family home, ideally l...

Ongar Road, Pilgrims Hatch, Brentwood

3 Bedroom Detached Bungalow | £575,000

We are pleased to offer this detached bungalow, situated in the popular Pilgrims Hatch area and available with No Onward...

Orchard Lane, Pilgrims Hatch, Brentwood

3 Bedroom Detached House | £585,000

We are delighted to bring to the market this well-presented detached family home, ideally located in the ever-popular Pi...

The Galleries, Warley, Brentwood

2 Bedroom Apartment | Guide Price £600,000

Being one of the finest in the sought-after Galleries Development with its beautifully maintained communal gardens, is t...

Station Road, West Horndon, Brentwood

3 Bedroom Detached Bungalow | Offers in excess of £600,000

We are pleased to offer this beautifully presented three-bedroom detached bungalow, perfectly situated in the heart of W...

Keith Ashton Estates - Brentwood Office (Brentwood)

26 St. Thomas Road, Brentwood, Essex, CM14 4DB

01277 260858

How much is your home worth?

Use our short form to request a valuation of your property.

Request a Valuation

Mortgage Calculator

Amount Borrowed: £
Total Amount Repayable: £
Total Monthly Payment: £
©2026 The Guild of Property Professionals. All rights reserved. Terms and Conditions | Privacy Policy | Cookie Policy | Complaints Policy | Members Login
The Guild of Property Professionals Trading Address: 121 Park Lane, London W1K 7AG. GPEA Limited. Registered in England & Wales.  Company No: 02819824.  Registered Office Address: 2 St. Stephen's Court, St. Stephen's Road, Bournemouth, Dorset, England, BH2 6LA.  VAT Registration No: 576 8795 61
Book a Property Valuation Update Cookies Preferences