Hook End Road, Hook End, Brentwood

Guide Price
£675,000

3 Bedroom Detached House for sale in Brentwood

2 3 1
  • THREE GOOD-SIZED BEDROOMS
  • SPACIOUS LOUNGE
  • SEPARATE DINING ROOM
  • OWN DRIVEWAY & GARAGE
  • 200' REAR GARDEN
  • POTENTIAL TO EXTEND (STPP)
  • WELL-FITTED KITCHEN / BREAKFAST ROOM
  • OVERLOOKING FIELDS TO THE FRONT

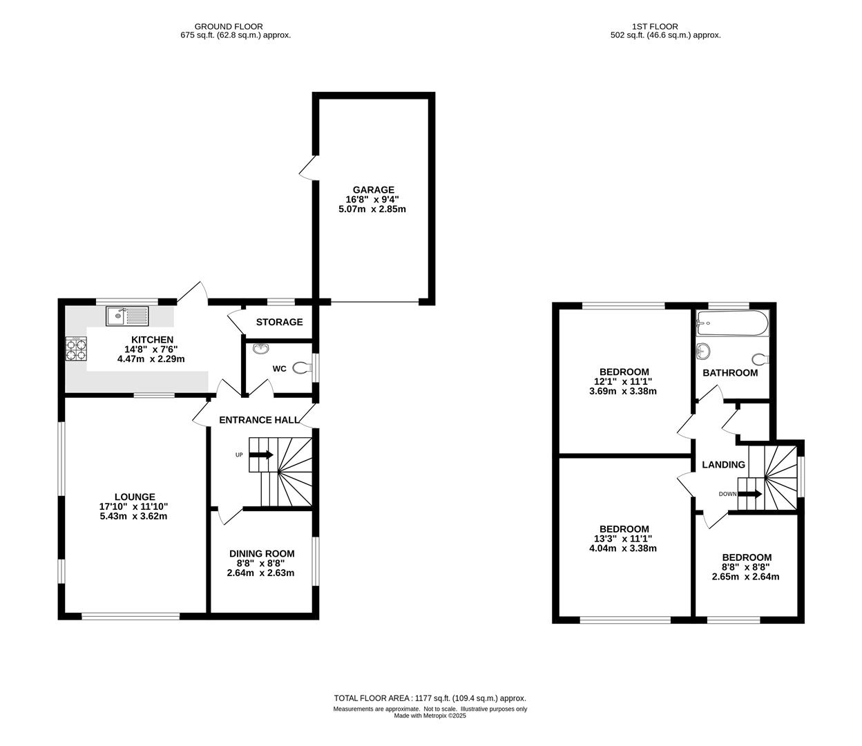
Offering excellent potential for extension (stpp) and sitting on a large plot of around 260' 'Elveden' is a detached family home in a semi-rural location with a pleasant outlook to the front elevation overlooking fields. Accommodation comprises of three good sized bedrooms, a modern family bathroom, a ground floor cloakroom, two separate reception rooms and a well fitted kitchen / breakfast room. To the rear of the property there is a mature garden which measures in the region of 200', and there is ample parking to the front on your own block paved driveway plus a detached brick-built garage.

Entering the property at the side you have access into a bright hallway with stairs rising to the first floor and doors to all rooms. Directly off the hallway is a is a modern cloakroom with a white suite which includes a space saver wash hand basin and w.c. The property benefits from having two separate reception rooms, a dining room and a large bright lounge with windows to the front and side. Sitting at the rear of the property you will find a well fitted kitchen with white wall and base units and wooden work surfaces over, and along with a spacious larder cupboard, you will find that there is ample storage. There are glass display cabinets and a breakfast bar with seating space, and a serving hatch open to the lounge. From the kitchen you have access into the garden. Viewers will note that the lounge and the main bedroom both have air conditioning units.

Rising to the first floor there are doors to all rooms and a useful airing/storage cupboard. There are three good-sized bedrooms all having ample space for fitted or freestanding furniture. Finishing the accommodation on this level is a modern family bathroom which comprises of a panelled L-shaped bath with shower over (handheld and rainfall overhead shower attachments), wash hand basin and w.c. In the bathroom there is an eaves storage cupboard.

As previously mentioned, the property has a large rear garden which measures in the region of 200' in length. The garden commences with a block paved patio leading into lawn with mature trees and shrubs to the borders. There is side access through to the front garden where a block paved driveway provides ample parking along with a brick-built garage. The remainder of the front is laid to lawn and could potentially provide additional parking if required.

Entrance Hall -

Ground Floor Cloakroom -

Lounge - 5.44m x 3.38m (17'10 x 11'1) -

Dining Room - 2.64m x 2.64m (8'8 x 8'8) -

Kitchen - 4.27m x 2.29m (14' x 7'6) -

First Floor Landing - Airing/storage cupboard.

Bedroom One - 3.99m x 3.35m (13'1 x 11) -

Bedroom Two - 3.63m x 3.38m (11'11 x 11'1) -

Bedroom Three - 2.64m x 2.64m (8'8 x 8'8) -

Family Bathroom - 1.96m x 2.34m (6'5 x 7'8) -

Exterior - Rear Garden - 60.96m approx (200' approx) - Predominantly laid to lawn. Block paved patio to the immediate rear of the property. Mature trees and shrubs. Pedestrian door into the garage and side access through to the front,

Exterior - Front Garden - Block paved driveway providing ample parking, remainder laid to lawn. Driveway leads to the side where you have access to the garage. Side pedestrian access through to the front.

Attached Brick Built Garage - Power and light connected.

Agents Note - Fee Disclosure - As part of the service we offer we may recommend ancillary services to you which we believe may help you with your property transaction. We wish to make you aware, that should you decide to use these services we will receive a referral fee. For full and detailed information please visit 'terms and conditions' on our website www.keithashton.co.uk

Property Ref: 59223_34144078

Share:

Similar Properties

Beehive Chase, Hook End, Brentwood

4 Bedroom Detached House | Guide Price £675,000

With generous room dimensions to both the ground and first floor levels measuring in the region of 1860 sq.ft, is this f...

Whitefield Way, Kelvedon Hatch, Brentwood

4 Bedroom Semi-Detached House | £675,000

Tucked away in a quiet turning off Ongar Road, Kelvedon Hatch we are delighted to offer for sale this well-maintained 4...

Tipps Cross Lane, Hook End, Brentwood

2 Bedroom Detached Bungalow | Guide Price £675,000

Situated in a sought-after village location, a little over 5 miles from Brentwood Town Centre with its high street shopp...

Fairfield, Ingatestone

4 Bedroom Detached House | Guide Price £680,000

Within a short walk of Ingatestone High Street is this detached family house which is offered for sale with VACANT POSSE...

Swallows Cross, Brentwood

4 Bedroom Detached Bungalow | Guide Price £680,000

Sitting on a wide corner plot in grounds of around a ? of an acre (stls) is this four, DOUBLE bedroom detached bungalow...

Ongar Road, Stondon Massey, Brentwood

4 Bedroom Detached House | Offers in excess of £685,000

Offering almost 1700 sq.ft of living space and with a tidy 65' rear garden which backs onto open farmland is this extend...

Keith Ashton Estates - Village Office (Kelvedon Hatch)

38 Blackmore Road, Kelvedon Hatch, Essex, CM15 0AT

01277 375757

How much is your home worth?

Use our short form to request a valuation of your property.

Request a Valuation

Mortgage Calculator

Amount Borrowed: £
Total Amount Repayable: £
Total Monthly Payment: £
©2025 The Guild of Property Professionals. All rights reserved. Terms and Conditions | Privacy Policy | Cookie Policy | Complaints Policy | Members Login
The Guild of Property Professionals Trading Address: 121 Park Lane, London W1K 7AG. GPEA Limited. Registered in England & Wales.  Company No: 02819824.  Registered Office Address: 2 St. Stephen's Court, St. Stephen's Road, Bournemouth, Dorset, England, BH2 6LA.  VAT Registration No: 576 8795 61
Book a Property Valuation Update Cookies Preferences