Spring Pond Meadow, Hook End, Brentwood

£725,000

3 Bedroom Semi-Detached House for sale in Brentwood

2 3 2
  • 3 BEDROOM SEMI DETACHED CHALET STYLE PROPERTY
  • WALK-IN DRESSING ROOMS TO BEDROOMS 1 & 2
  • 1ST FLOOR & GROUND FLOOR SHOWER ROOMS
  • POTENTIAL FOR EXTENSION (STPP)
  • LARGE KITCHEN / FAMILY ROOM TO THE REAR
  • SEPARATE LOUNGE
  • BEDROOM THREE / STUDY
  • QUIET VILLAGE LOCATION

Beautifully renovated and further extended by the current owners is this modern, three-bedroom semi-detached chalet style property which has a fabulous kitchen / family room spanning the width of the property to the rear, complimented by stylish d?cor throughout. Located in Spring Pond Meadow, a quiet turning in Hook End, you will find that this lovely home is within easy reach of local amenities with Doddinghurst & Blackmore villages in close proximity, and High Street shopping and mainline train services, being available in Brentwood & Shenfield Town, within a short drive of around 5 miles.

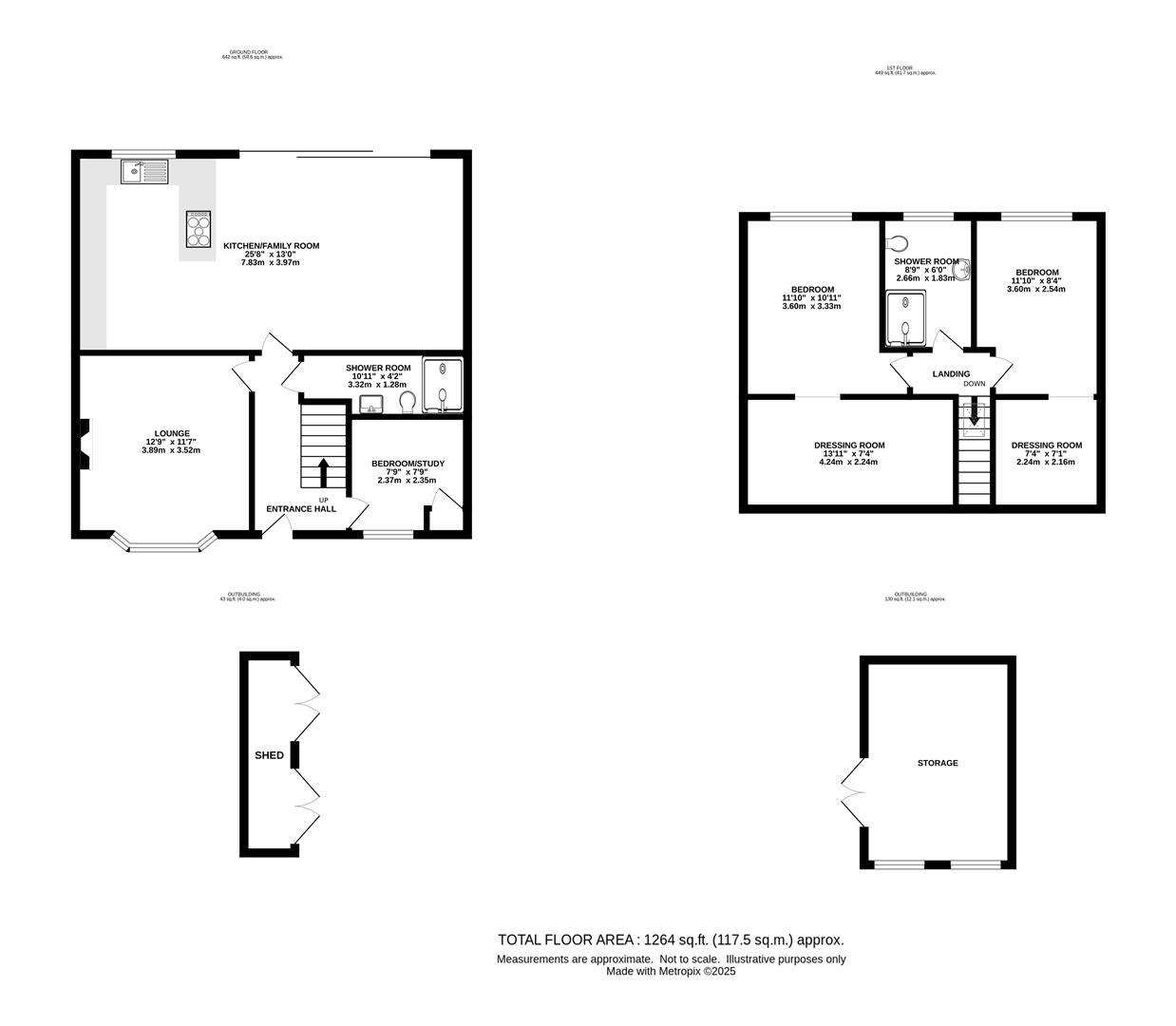
Entering the hallway, you have stairs rising to the first-floor level along with doors to all ground floor rooms. At the front of the property there is a cosy lounge with a large bay window to the front aspect allowing for plenty of natural lighting and a fireplace with log burning stove. There is a further room which is currently being used as a home study/office but could also be utilised as a third bedroom, depending on needs. The property has been extended to the rear to accommodate a fabulous kitchen / family room which has access, via sliding patio doors, into the garden. The kitchen has been fitted in a lovely range of floor to ceiling units providing excellent storage and there is a breakfast bar which has an inset hob with built-in extractor. There is seating to one side of the breakfast bar. Further integrated appliances include fridge/freezer and double ovens. Finishing the accommodation on the ground floor is a stylish shower room, with shower cubicle, wash hand basin and w.c.

Rising to the first floor you have two further double bedrooms along with the main family shower room. Both bedrooms have windows to the rear aspect and walk-in access into their own separate dressing rooms. If desired, there is the potential to create an additional bedroom from one of the walk-in dressing rooms (subject to the usual regulations)

A well-maintained rear garden has a raised decking area of good size, with steps which lead down to a neat lawn. Within the garden there are two spacious composite storage sheds and a composite gazebo. Within the garden there is a fully plumbed outside kitchen area with storage worktop space with hot and cold running water and electric supply. The rear garden is also fully lit with and has outside power supplies. To the front a shared driveway gives access to your own frontage where you have parking for two vehicles, and there is a side access through to the rear garden. The remainder of the front is laid to lawn and could offer additional parking space.

Entrance Hall - Doors to all ground floor rooms. Stairs to first floor.

Lounge - 3.89m x 3.53m (12'9 x 11'7) - Bay window to front window. Feature fireplace.

Kitchen / Family Room - 7.82m x 3.96m (25'8 x 13') - Sliding patio doors to rear aspect.

Ground Floor Shower Room - 3.33m x 1.30m (10'11 x 4'3) - Shower cubicle, wash hand basin and w.c.

Ground Floor Bedroom / Study - 2.36m x 2.36m (7'9 x 7'9) - Window to front aspect. Built-in storage cupboard.

First Floor Landing - Doors to all rooms.

Bedroom - 3.61m x 3.33m (11'10 x 10'11) - Window to rear aspect. Open to walk in dressing room.

Dressing Room - 4.24m x 2.24m (13'11 x 7'4) -

Bedroom - 3.61m x 2.54m (11'10 x 8'4) - Window to rear aspect. Open to dressing room.

Dressing Room - 2.24m x 2.16m (7'4 x 7'1) -

First Floor Shower Room - 2.67m x 1.83m (8'9 x 6') - Window to rear aspect. Shower cubicle, wash hand basin and w.c.

Exterior - Rear Garden - Within the garden there is a fully plumbed outside kitchen area with storage worktop space with hot and cold running water and electric supply. The garden is fully lit with and has outside power supplies.

Detached Storage Shed & Further Storage Shed -

Exterior - Front Garden -

Agents Note - Fee Disclosure - As part of the service we offer we may recommend ancillary services to you which we believe may help you with your property transaction. We wish to make you aware, that should you decide to use these services we will receive a referral fee. For full and detailed information please visit 'terms and conditions' on our website www.keithashton.co.uk

Property Ref: 34368911

Share:

Similar Properties

Hook End Road, Hook End, Brentwood

2 Bedroom Detached Bungalow | Guide Price £725,000

With pleasant farmland views to the front and rear elevations and with excellent potential for improvement and extension...

Orchard Piece, Blackmore

4 Bedroom Semi-Detached House | Guide Price £725,000

With NO ONWARD CHAIN and spacious living accommodation, we are delighted to bring to market this extended four-bedroom,...

(The White House) Willow Close, Doddinghurst, Brentwood

5 Bedroom Semi-Detached House | Guide Price £725,000

Situated on the outskirts of Doddinghurst Village a lovely corner plot at the end of a quiet cul-de-sac is this beautifu...

Ongar Road, Kelvedon Hatch, Brentwood

4 Bedroom Semi-Detached House | Offers in excess of £734,000

We are pleased to bring to market this four-bedroom, semi-detached character property which offers space of around 4699...

Spring Pond Meadow, Hook End, Brentwood

4 Bedroom Detached House | Guide Price £735,000

Situated in a pleasant cul-de-sac and set well back from the road is this four bedroom chalet style bungalow which enjoy...

Plot 32 The Mulberry, Stocks Lane, Kelvedon Hatch CM15 0BN

4 Bedroom Detached House | £740,000

No Fees, Just Keys!! Move for Free in 2026 - Stamp duty, Legal and Moving Fees Covered *** PLOT 32 - THE MULBERRY - SPRI...

Keith Ashton Estates - Village Office (Kelvedon Hatch)

38 Blackmore Road, Kelvedon Hatch, Essex, CM15 0AT

01277 375757

How much is your home worth?

Use our short form to request a valuation of your property.

Request a Valuation

Mortgage Calculator

Amount Borrowed: £
Total Amount Repayable: £
Total Monthly Payment: £
©2026 The Guild of Property Professionals. All rights reserved. Terms and Conditions | Privacy Policy | Cookie Policy | Complaints Policy | Members Login
The Guild of Property Professionals Trading Address: 121 Park Lane, London W1K 7AG. GPEA Limited. Registered in England & Wales.  Company No: 02819824.  Registered Office Address: 2 St. Stephen's Court, St. Stephen's Road, Bournemouth, Dorset, England, BH2 6LA.  VAT Registration No: 576 8795 61
Book a Property Valuation Update Cookies Preferences