Ongar Road, Kelvedon Hatch, Brentwood

Offers in excess of
£734,000

4 Bedroom Semi-Detached House for sale in Brentwood

4 4 2
  • FOUR BEDROOM CHARACTER PROPERTY
  • SPACIOUS 1ST FLOOR SUN TERRACE
  • LOFT ROOM WITH BALCONY
  • ANNEX POTENTIAL
  • 'VICTORIAN' STYLE BATHROOM & EN-SUITE SHOWER ROOM
  • EASY ACCESS TO BRENTWOOD & SHENFIELD TOWN CENTRES
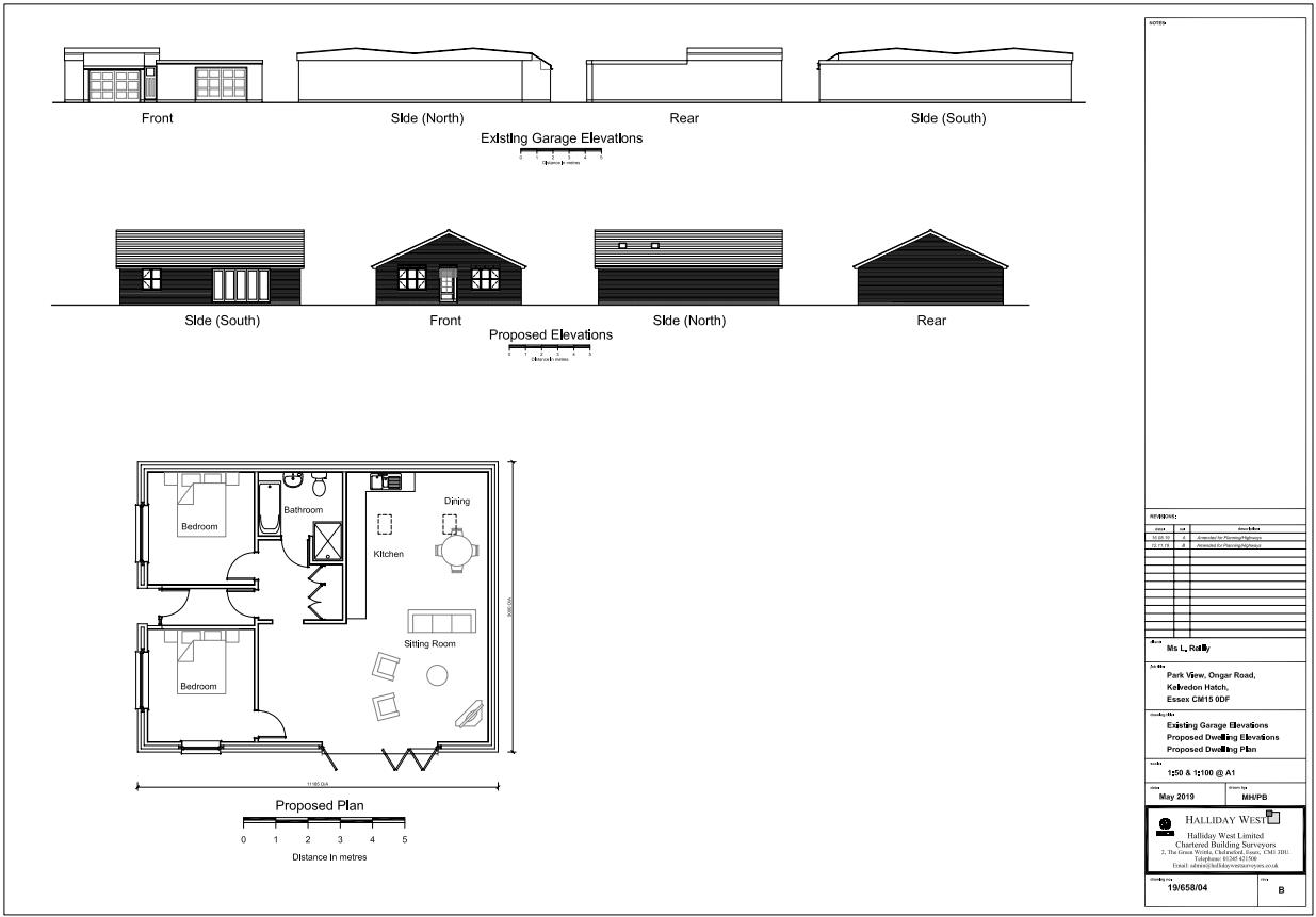
  • PLANS PASSED FOR ADDITIONAL DWELLING & TO REDEVELOP MAIN PROPERTY.
  • EXCELLENT PARKING

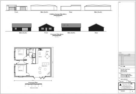
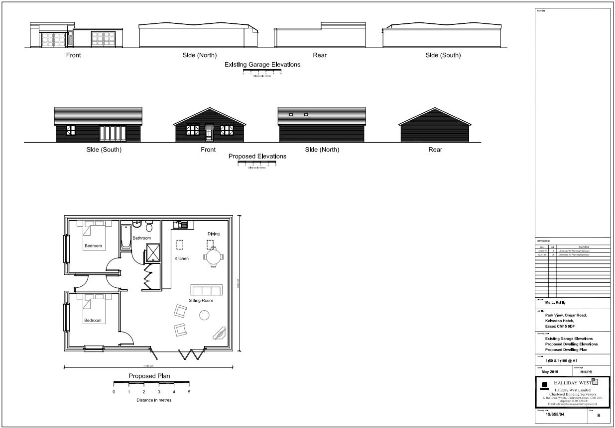
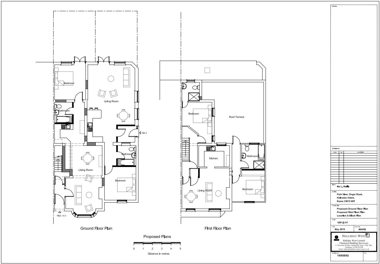
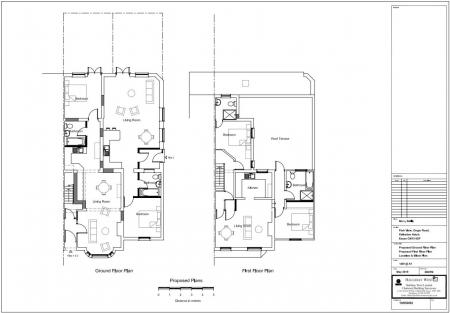
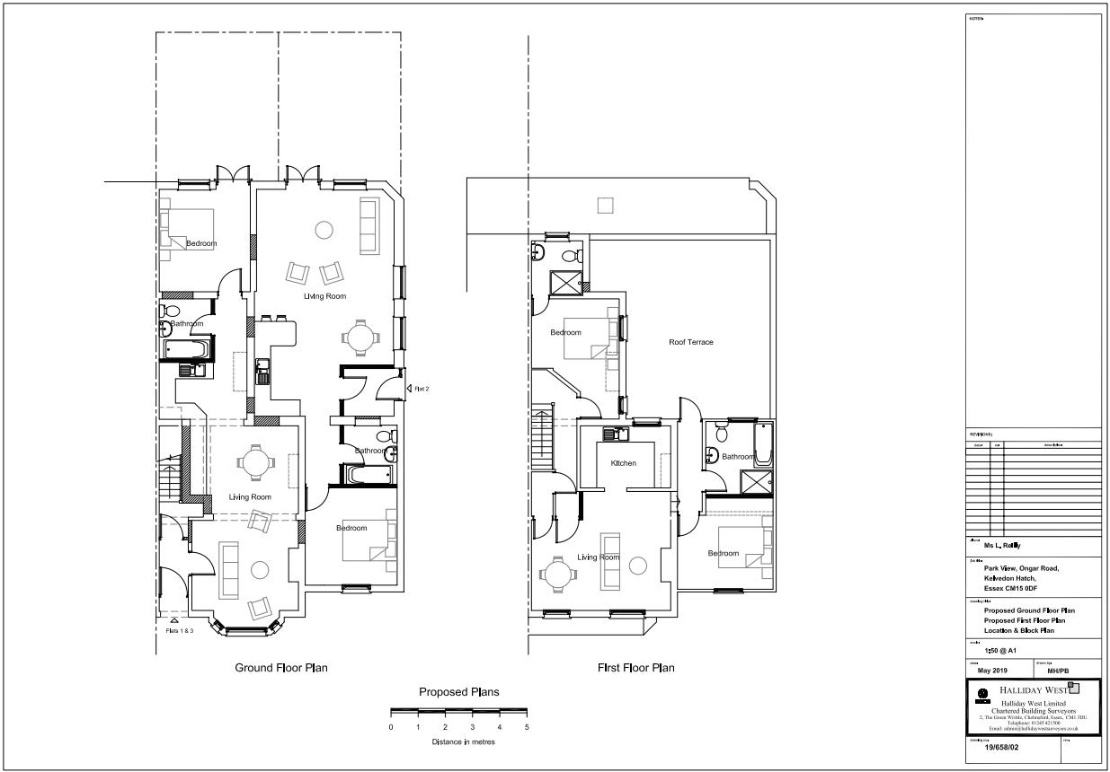
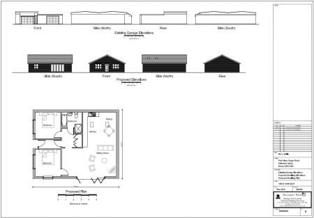
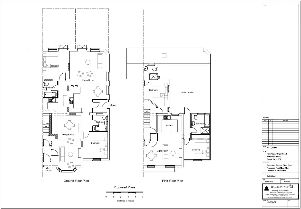
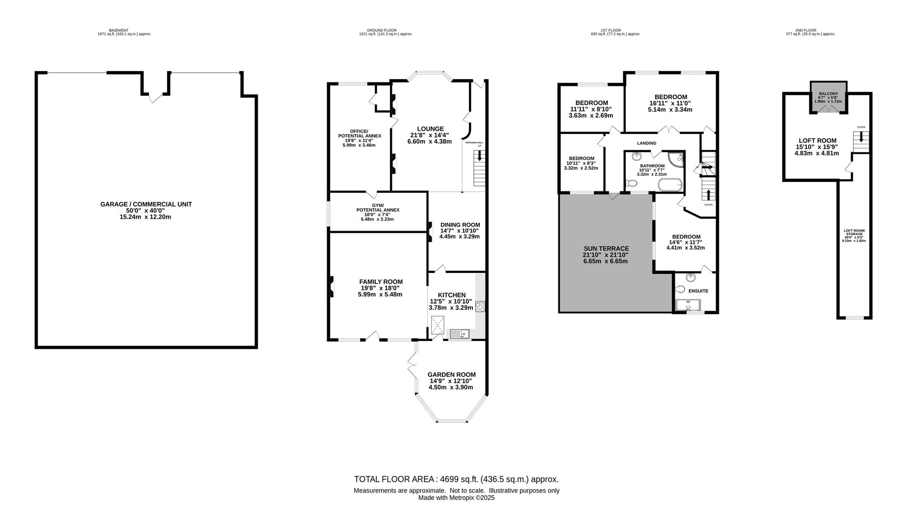
We are pleased to bring to market this four-bedroom, semi-detached character property which offers space of around 4699 sq.ft and an unmissable opportunity for improvement and redevelopment. The ground floor layout of the property is such that there is excellent potential for reconfiguration to create an annex set up, whilst to the rear a large garage/commercial unit has had plans passed to convert into a separate two-bedroom bungalow. Interested parties should also note that plans have also been passed for conversion of the main property to create three apartments (1 x 2 bedroom & 2 x 1 bedroom). Plans can be viewed via Brentwood Council planning website using the reference 19/00953/FUL. Located in the village of Kelvedon Hatch where you have easy access into Brentwood and Shenfield Town Centres and within walking distance of all local amenities.

As you enter the property you find yourself in a bright and spacious lounge with bay window to the front, half panelled walls and two 'Victorian' style fireplaces with ornate tiling. A door takes you through to an office where there is a further door which opens into a separate room, these two rooms offer excellent potential for the creation of an annex if desired (Viewers should note that these rooms do need some finishing works). Open plan from the lounge is a dining room, this too features a lovely feature fireplace. The modern kitchen has been fitted with 'Shaker' style wall and base units offering ample storage options including space appliances. The kitchen opens into a large family room with a door into the garden and a cosy log burning stove. From the kitchen you also have access into a conservatory/garden room with French doors which open to the rear garden.

Rising to the first floor you have four bedrooms, one of which has an en-suite shower room (requires some finishing works). There are windows from this room which overlook a large sun terrace, which can be accessed from the first-floor landing. A spacious 'Victorian' style bathroom is a characterful room with a lovely freestanding 'roll top' bath, corner shower cubicle, pedestal wash hand basin and w.c, and there is even an ornate fireplace which adds to the charm.

There is a further staircase rising from the first-floor landing which gives access to a useful loft room which has a balcony to the front elevation and there is a door leading to a large loft/storeroom measuring some 30' in length.

The front of the property offers ample parking on a loose stone driveway which leads down the side of the property and to the rear where you have a large garage/commercial unit measuring 50' x 40'. As previously mentioned, the garage/commercial unit has had plans passed for conversion to a separate two-bedroom bungalow. Passed plans, also include the potential for re-development of the main property to create three self-contained apartments. Planning reference 19/00953/FUL.

Entrance Hall - Stairs to first floor.

Lounge - 6.60m x 4.37m (21'8 x 14'4) - Bay window to front. Two ornate fireplaces. Stairs to first floor.

Office/Potential Annex - 5.99m x 3.45m (19'8 x 11'4) - Window to front. Requires finishing works. Door to:

Potential Annex / Gym - 5.49m x 2.24m (18'0 x 7'4) - Requires finishing works.

Dining Room - 4.45m x 3.30m (14'7 x 10'10) - Door to :

Kitchen - 3.78m x 3.30m (12'5 x 10'10) - Fitted with a range of 'Shaker' style wall and base units. Door to:

Garden Room - 4.50m x 3.91m (14'9 x 12'10) -

Family Room - 5.99m x 5.49m (19'8 x 18') -

First Floor Landing -

Bedroom One - 5.16m x 3.35m (16'11 x 11') - Windows to front.

Bedroom Two - 4.42m x 3.53m (14'6 x 11'7) - Doors to sun terrace and door to :

En-Suite Shower Room - Requires finishing works.

Bedroom Three - 3.63m x 2.69m (11'11 x 8'10) - Window to front.

Bedroom Four - 3.33m x 2.51m (10'11 x 8'3) - Door to sun terrace.

Bathroom - 3.33m x 2.31m (10'11 x 7'7) - Fitted with a four piece suite comprising: corner shower, roll top bath sink and wc. Victorian fireplace.

Large Sun Terrace - 6.65m x 6.65m (21'10 x 21'10) - With small retaining brick wall and being partially fenced.

Second Floor Loft Room - 4.83m x 4.80m (15'10 x 15'9) - With balcony to front and access to:

Loft Room/Storage Area - 9.14m x 2.03m (30' x 6'8) - Window to one end.

Exterior -

Garage / Commercial Unit - 15.24m x 12.19m (50' x 40') -

Rear Garden - Being laid to shingle.

Front - Being laid to pea shingle with ample parking and access to the garage/commercial unit at the rear.

Agents Note - Fee Disclosure - As part of the service we offer we may recommend ancillary services to you which we believe may help you with your property transaction. We wish to make you aware, that should you decide to use these services we will receive a referral fee. For full and detailed information please visit 'terms and conditions' on our website www.keithashton.co.uk

Property Ref: 59223_34071669

Share:

Similar Properties

Hook End Road, Hook End, Brentwood

2 Bedroom Detached Bungalow | Guide Price £725,000

With pleasant farmland views to the front and rear elevations and with excellent potential for improvement and extension...

Orchard Piece, Blackmore

4 Bedroom Semi-Detached House | Guide Price £725,000

With NO ONWARD CHAIN and spacious living accommodation, we are delighted to bring to market this extended four-bedroom,...

(The White House) Willow Close, Doddinghurst, Brentwood

5 Bedroom Semi-Detached House | Guide Price £725,000

Situated on the outskirts of Doddinghurst Village a lovely corner plot at the end of a quiet cul-de-sac is this beautifu...

Spring Pond Meadow, Hook End, Brentwood

4 Bedroom Detached House | Guide Price £735,000

Situated in a pleasant cul-de-sac and set well back from the road is this four bedroom chalet style bungalow which enjoy...

Plot 32 The Mulberry, Stocks Lane, Kelvedon Hatch CM15 0BN

4 Bedroom Detached House | £740,000

No Fees, Just Keys!! Move for Free in 2026 - Stamp duty, Legal and Moving Fees Covered *** PLOT 32 - THE MULBERRY - SPRI...

St. Georges Close, Hook End

3 Bedroom Detached House | Offers in excess of £744,000

With excellent parking by way of a large driveway which extends to the side of the property leading to a detached garage...

Keith Ashton Estates - Village Office (Kelvedon Hatch)

38 Blackmore Road, Kelvedon Hatch, Essex, CM15 0AT

01277 375757

How much is your home worth?

Use our short form to request a valuation of your property.

Request a Valuation

Mortgage Calculator

Amount Borrowed: £
Total Amount Repayable: £
Total Monthly Payment: £
©2026 The Guild of Property Professionals. All rights reserved. Terms and Conditions | Privacy Policy | Cookie Policy | Complaints Policy | Members Login
The Guild of Property Professionals Trading Address: 121 Park Lane, London W1K 7AG. GPEA Limited. Registered in England & Wales.  Company No: 02819824.  Registered Office Address: 2 St. Stephen's Court, St. Stephen's Road, Bournemouth, Dorset, England, BH2 6LA.  VAT Registration No: 576 8795 61
Book a Property Valuation Update Cookies Preferences