Headley Chase, Warley, Brentwood

Guide Price
£775,000

4 Bedroom Detached House for sale in Brentwood

2 4 2
  • DESIRABLE OLD HARTSWOOD AREA
  • FOUR BEDROOM DETACHED HOME
  • LOUNGE AND SEPARATE DINING ROOM
  • ENSUITE TO PRINCIPAL BEDROOM
  • WALKING DISTANCE OF BRENTWOOD TRAIN STATION
  • EXCELLENT SCHOOLING WITHIN EASY REACH
  • DETACHED GARAGE
  • WITHIN A MILE OF THE HIGH STREET

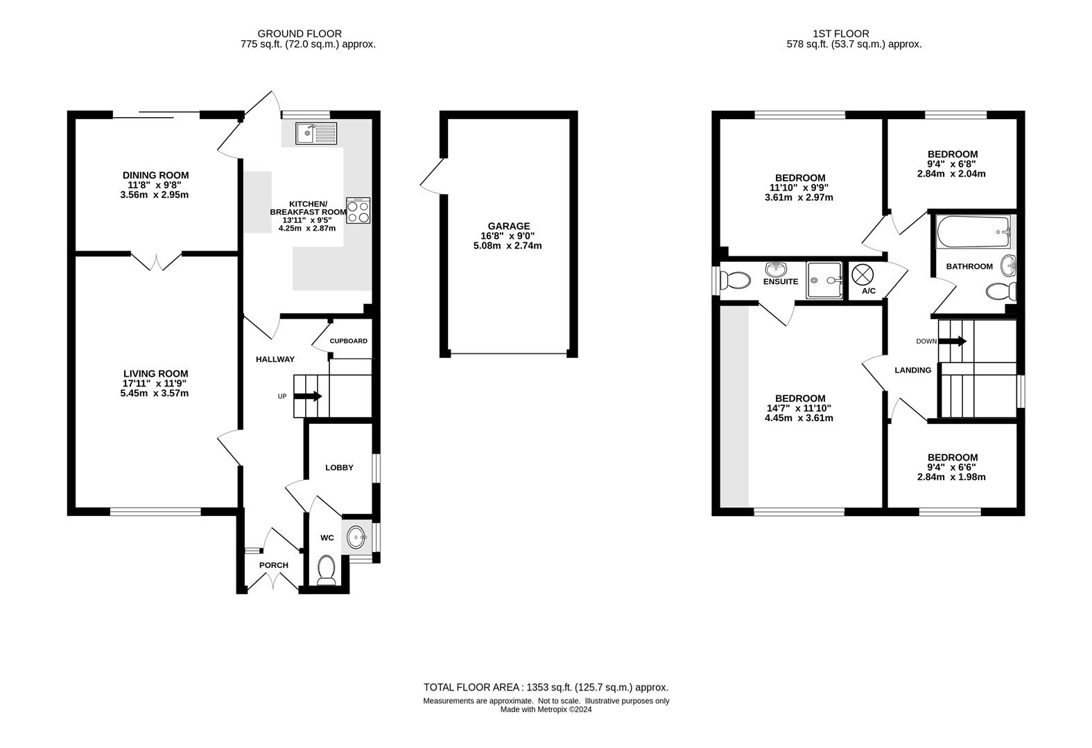
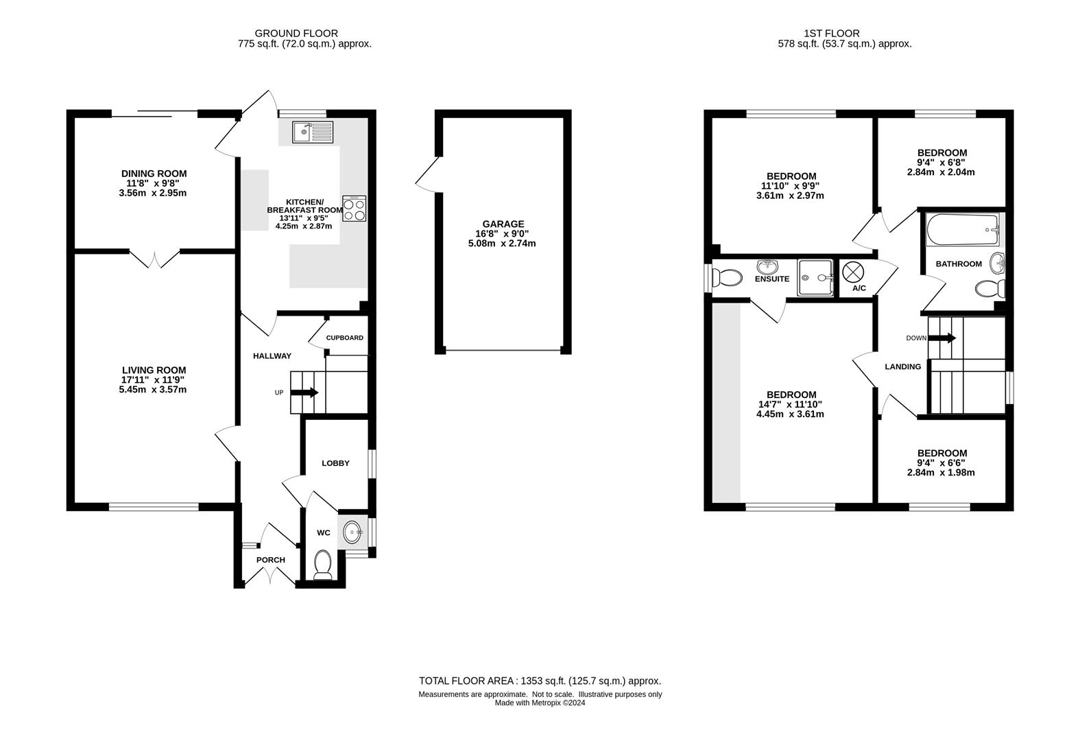
Situated in the highly desirable 'Old Hartswood' area, this detached family home in need of some modernisation, boasts four bedrooms, two versatile reception rooms and a detached garage. Offered with no onward chain, the property enjoys a prime location within walking distance of Brentwood train station, where the Elizabeth line provides seamless connections to London and beyond. Surrounded by excellent local schools and the expansive King George's playing fields, this spacious residence is ideal for families and commuters alike, combining convenience with an enviable setting.

The porch opens into a welcoming hallway, which includes a lobby area and a convenient ground-floor cloakroom. The bright and spacious living room features double doors leading seamlessly into the dining room, where sliding doors provide views and access to the rear garden. The generously sized kitchen, accessible from both the hallway and dining room, is equipped with eye and base level units, a practical breakfast bar, and a door to the rear garden.

Ascending to the first floor, you'll find four well-proportioned bedrooms, including a principal bedroom with its own ensuite shower room. A family bathroom is thoughtfully positioned to serve the remaining bedrooms.

Outside, the property benefits from a detached garage at the front, while the rear garden offers a blend of functionality and tranquillity, beginning with a paved patio and extending to a lawn bordered by mature shrubs and trees

Porch -

Hallway -

Living Room - 5.45 x 3.57 (17'10" x 11'8") -

Kitchen - 4.25 x 2.87 (13'11" x 9'4") -

Dining Room - 3.56 x 2.95 (11'8" x 9'8") -

Landing -

Bedroom - 4.45 x 3.61 (14'7" x 11'10") -

Bedroom - 3.61 x 2.97 (11'10" x 9'8") -

Bedroom - 2.84 x 2.04 (9'3" x 6'8") -

Bedroom - 2.84 x 1.98 (9'3" x 6'5") -

Bathroom -

Ensuite -

Garage - 5.08 x 2.74 (16'7" x 8'11") -

Agents Note - As part of the service we offer we may recommend ancillary services to you which we believe may help you with your property transaction. We wish to make you aware, that should you decide to use these services we will receive a referral fee. For full and detailed information please visit 'terms and conditions' on our website www.keithashton.co.uk

Property Ref: 8226_33574827

Share:

Similar Properties

Middle Road, Ingrave, Brentwood

4 Bedroom House | Guide Price £775,000

** GUIDE PRICE £775,000 - £800,000 ** With views to the front and rear, we are delighted to bring to market this beautif...

South Drive, Warley, Brentwood

4 Bedroom Semi-Detached House | Guide Price £750,000

**GUIDE PRICE £750,000 - £800,000** Set over three floors, offering an abundance of living space throughout, and with a...

Church Crescent, Mountnessing, Brentwood

4 Bedroom Semi-Detached House | Offers in excess of £750,000

We are pleased to present this stunning four-bedroom semi-detached family home, situated in the picturesque village of M...

Pittman Close, Ingrave, Brentwood

4 Bedroom Detached House | Offers in excess of £795,000

Offered with no onward chain comes this impressive four-bedroom detached family home, boasting approximately 1,850 squar...

Ingrave Road, Brentwood

3 Bedroom Detached Bungalow | Offers in excess of £795,000

Nestled along the sought-after Ingrave Road, this detached bungalow sits on a generous plot and boasts a spacious layout...

Talbrook, Brentwood

4 Bedroom Detached House | Guide Price £800,000

**Guide Price £800,000 - £850,000** We are delighted to bring to market this detached family home, ideally located on th...

Keith Ashton Estates - Brentwood Office (Brentwood)

26 St. Thomas Road, Brentwood, Essex, CM14 4DB

01277 260858

How much is your home worth?

Use our short form to request a valuation of your property.

Request a Valuation

Mortgage Calculator

Amount Borrowed: £
Total Amount Repayable: £
Total Monthly Payment: £
©2025 The Guild of Property Professionals. All rights reserved. Terms and Conditions | Privacy Policy | Cookie Policy | Complaints Policy | Members Login
The Guild of Property Professionals Trading Address: 121 Park Lane, London W1K 7AG. GPEA Limited. Registered in England & Wales.  Company No: 02819824.  Registered Office Address: 2 St. Stephen's Court, St. Stephen's Road, Bournemouth, Dorset, England, BH2 6LA.  VAT Registration No: 576 8795 61
Book a Property Valuation Update Cookies Preferences