Brocksparkwood, Brentwood

Guide Price
£525,000
SSTC
This property listing is now SSTC

3 Bedroom Semi-Detached House for sale in Brentwood

2 3 1
  • THREE BEDROOM FAMILY HOME
  • SPACIOUS GROUND FLOOR LIVING SPACE
  • BUILT-IN WARDROBES
  • ATTRACTIVE SECLUDED GARDEN
  • ST MARTINS HIGH SCHOOL CATCHMENT
  • GARAGE
  • EASY REACH OF BRENTWOOD HIGH STREET
  • COUNTRYSIDE PARKS NEARBY

** Guide Price £525,000 - £550,000 ** Situated in a popular cul-de-sac backing onto woodland, this well-maintained three-bedroom semi-detached family home offers convenient access to Shenfield and Brentwood town centres, as well as their mainline railway stations. Boasting generous ground floor living space, the property features off-street parking, an attached garage, and a delightful rear garden. Additionally, it falls within the catchment area of the highly regarded St Martins High School, making it an ideal choice for families.

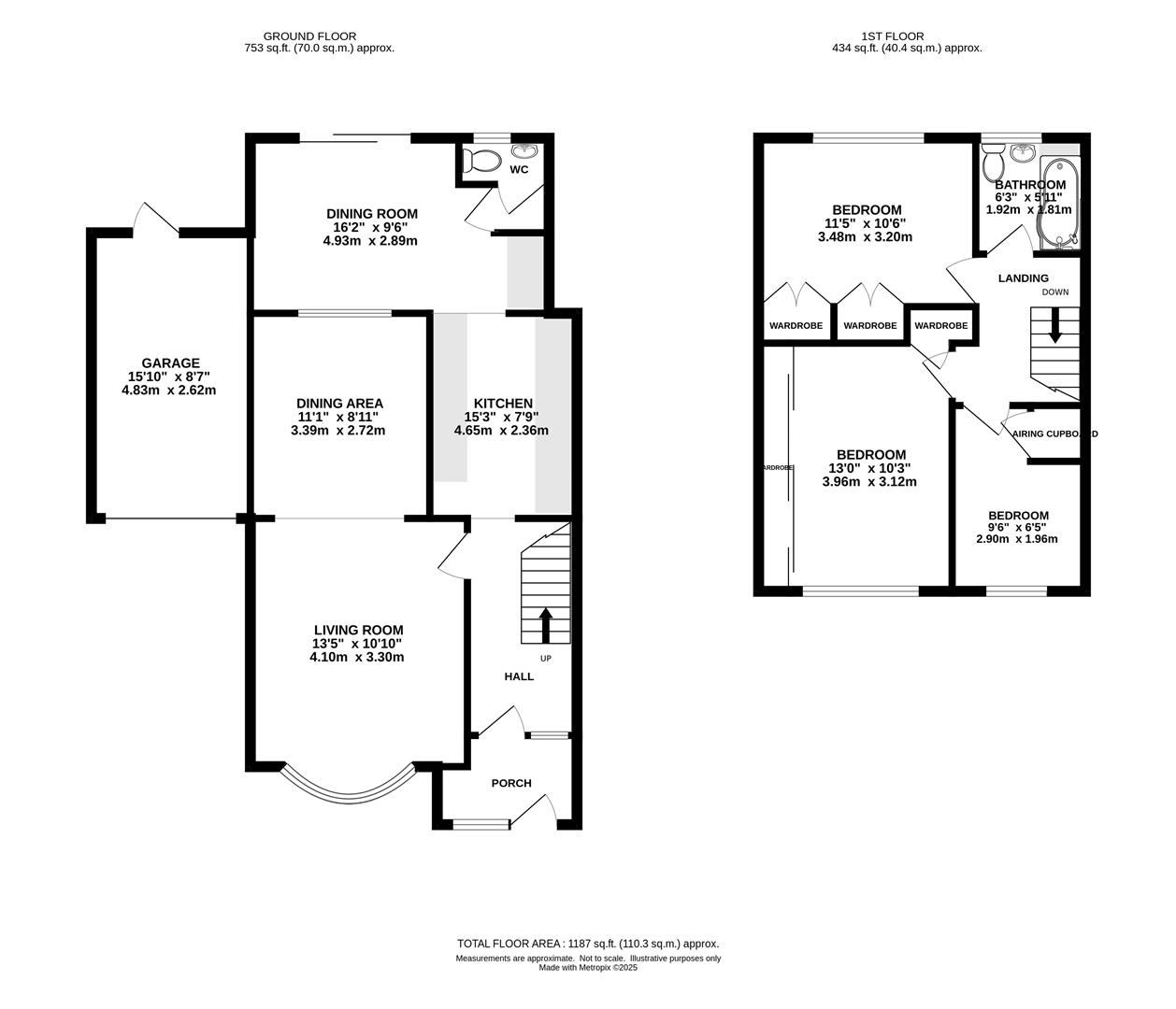
A porch opens into a welcoming hallway (with understairs cupboard), leading to a comfortable living room with a bay window to the front along with a side window that fills the space with natural light. This flows seamlessly into a well-proportioned dining area, ideal for both everyday living and entertaining. The galley kitchen is well-equipped with a range of eye and base-level units, a useful double sink and double upright oven, along with ample worktop space and a utility area with plumbing for washing machine and dishwasher. The bright and airy dining room features large sliding doors that offer views of the rear garden, and a convenient ground-floor WC completes this level.

Upstairs, the landing provides access to two generously sized double bedrooms. The principal bedroom has built-in wardrobes with shelf storage, drawer unit and shelves for home entertainment, along with an airing cupboard. The rear bedroom also features built-in wardrobes and offers views over the woodland, while the third bedroom is currently used as a spacious study. A modern family bathroom with fitted wall heater serves this floor.

The rear garden provides a private and tranquil outdoor space measuring approx.64' x 37', beginning with two paved seating areas that lead to a neatly maintained lawn, bordered by mature shrubs. The garden also features a useful storage shed with fitted worktop as well as exterior lighting and hot and cold-water supply. To the side of the property, an attached garage with power, light and extract for tumble dryer offers ample storage, with off-street parking for three vehicles available in front.

All mains' services are connected along with full fibre broadband to the property.

Porch -

Hall -

Living Room - 4.10 x 3.30 (13'5" x 10'9") -

Dining Area - 3.39 x 2.72 (11'1" x 8'11") -

Dining Room - 4.93 x 2.89 (16'2" x 9'5") -

Kitchen - 4.65 x 2.36 (15'3" x 7'8") -

Wc -

Landing -

Bedroom - 3.96 x 3.12 (12'11" x 10'2") -

Bedroom - 3.48 x 3.20 (11'5" x 10'5") -

Bedroom - 2.90 x 1.96 (9'6" x 6'5") -

Bathroom - 1.92 x 1.81 (6'3" x 5'11") -

Garage - 4.83 x 2.62 (15'10" x 8'7") -

Agents Note - As part of the service we offer we may recommend ancillary services to you which we believe may help you with your property transaction. We wish to make you aware, that should you decide to use these services we will receive a referral fee. For full and detailed information please visit 'terms and conditions' on our website www.keithashton.co.uk

Property Ref: 8226_33656107

Share:

Similar Properties

Robin Close, Billericay

3 Bedroom Semi-Detached Bungalow | Guide Price £525,000

**Guide Price £525,000 - £550,000** New to the market comes this immaculate three-bedroom bungalow, nestled in a peacefu...

Wendover Gardens, Brentwood

3 Bedroom Detached House | Guide Price £525,000

**Guide Price £525,000 - £550,000** We are pleased to present this detached family home, offered with No Onward Chain, n...

Victors Crescent, Hutton, Brentwood

4 Bedroom Semi-Detached House | Guide Price £525,000

** Guide Price £525,000 - £550,000 ** We are pleased to present this semi-detached family home, situated in a peaceful c...

Pennyfields, Warley, Brentwood

5 Bedroom Semi-Detached House | Guide Price £530,000

**Guide Price £530,000 - £545,000** We are delighted to present this spacious and versatile four-to-five-bedroom family...

Hanging Hill Lane, Brentwood

2 Bedroom Semi-Detached Bungalow | Guide Price £535,000

**GUIDE PRICE £535,000 - £550,000** We are pleased to offer for sale, this extended semi-detached bungalow in the sought...

Warley Mount, Warley, Brentwood

3 Bedroom Semi-Detached House | Guide Price £550,000

**Guide Price £550,000 - £575,000** We are delighted to present this semi-detached family home, ideally situated in the...

Keith Ashton Estates - Brentwood Office (Brentwood)

26 St. Thomas Road, Brentwood, Essex, CM14 4DB

01277 260858

How much is your home worth?

Use our short form to request a valuation of your property.

Request a Valuation

Mortgage Calculator

Amount Borrowed: £
Total Amount Repayable: £
Total Monthly Payment: £
©2025 The Guild of Property Professionals. All rights reserved. Terms and Conditions | Privacy Policy | Cookie Policy | Complaints Policy | Members Login
The Guild of Property Professionals Trading Address: 121 Park Lane, London W1K 7AG. GPEA Limited. Registered in England & Wales.  Company No: 02819824.  Registered Office Address: 2 St. Stephen's Court, St. Stephen's Road, Bournemouth, Dorset, England, BH2 6LA.  VAT Registration No: 576 8795 61
Book a Property Valuation Update Cookies Preferences