Mascalls Lane, Brentwood

Offers in excess of
£500,000
SSTC
This property listing is now SSTC

3 Bedroom Detached House for sale in Brentwood

1 3 1
  • NO ONWARD CHAIN
  • DETACHED FAMILY HOME
  • THREE BEDROOMS
  • INTEGRATED APPLIANCES
  • WELL PRESENTED THROUGHOUT
  • ATTACHED GARAGE WITH ELECTRIC DOOR
  • ST PETERS SCHOOL CATCHMENT
  • EASY REACH OF BRENTWOOD STATION

We are delighted to present this charming three-bedroom detached family home, ideally located on the popular west side of Brentwood. Well-presented throughout, this inviting property boasts a spacious ground floor living area, three well-proportioned bedrooms, and a modern family bathroom, perfectly suited to contemporary family living. Situated within the highly regarded St Peter's Primary School catchment area, this home is an excellent choice for families seeking access to top-tier education. For commuters, the property's prime location offers exceptional convenience, with the M25/A12 and Brentwood Train Station just a short distance away, ensuring seamless connectivity.

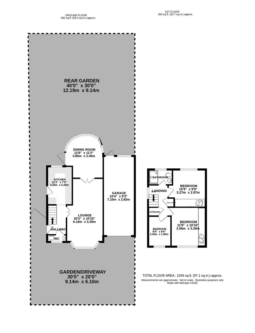
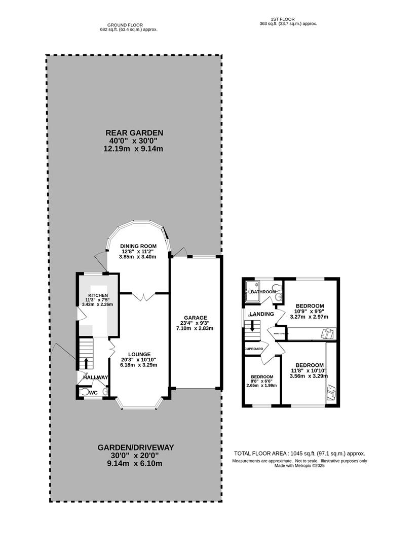
The internal layout begins with a welcoming hallway that leads into a bright and spacious lounge, beautifully illuminated by a large bay window that invites an abundance of natural light. Elegant folding double doors create a seamless connection to a stunning dining room, which serves as a true centrepiece of the home. This remarkable space features a striking semi-circular wall of floor-to-ceiling windows, offering views of the rear garden and providing direct access to the outdoor area, blending indoor and outdoor living effortlessly. The thoughtfully designed kitchen is a blend of style and functionality, featuring sleek eye and base level units, luxurious granite worktops, and a range of integrated appliances that cater to modern living. For added convenience, a well-placed WC completes the ground floor layout, ensuring practicality.

Ascending to the first floor, the landing provides access to all rooms. Two generously sized double bedrooms are equipped with fitted wardrobes, offering ample storage space, while a third single bedroom provides versatility for use as a child's room, guest space, or home office. The modern family bathroom benefits from underfloor heating and is beautifully finished with full tiling and features a walk-in shower, a sleek close-coupled WC, and a contemporary hand wash basin, combining style with practicality.

Externally, the rear garden begins with a paved patio, perfect for outdoor dining and entertaining, leading to a well-maintained lawn with bordering shrubs. At the front of the property, a block-paved driveway offers convenient off-street parking, while a flowerbed filled with established shrubs enhances the home's kerb appeal. The property also benefits from gated side access to the rear garden. The attached garage, featuring an up-and-over door, provides additional practicality and can also be accessed directly from the rear garden.

Hallway -

Lounge - 6.18 x 3.29 (20'3" x 10'9") -

Dining Room - 3.85 x 3.40 (12'7" x 11'1") -

Kitchen - 3.42 x 2.26 (11'2" x 7'4") -

Wc -

Landing -

Bedroom One - 3.56 x 3.29 (11'8" x 10'9") -

Bedroom Two - 3.27 x 2.97 (10'8" x 9'8") -

Bedroom Three - 2.65 x 1.99 (8'8" x 6'6") -

Bathroom -

Garage - 7.10 x 2.83 (23'3" x 9'3") -

Agents Note - As part of the service we offer we may recommend ancillary services to you which we believe may help you with your property transaction. We wish to make you aware, that should you decide to use these services we will receive a referral fee. For full and detailed information please visit 'terms and conditions' on our website www.keithashton.co.uk

Property Ref: 8226_33624104

Share:

Similar Properties

Hogarth Avenue, Brentwood

3 Bedroom Detached Bungalow | Offers in excess of £500,000

**OFFERS IN ACCESS OF £500,000** NO ONWARD CHAIN! A well-presented three-bedroom link detached bungalow located in a sou...

High Street, Brentwood

3 Bedroom Semi-Detached House | Offers in excess of £500,000

This spacious three bedroom semi detached family home is in need of full renovation but is located in a prime position w...

Hammonds Lane, Great Warley, Brentwood

3 Bedroom Semi-Detached House | Guide Price £500,000

**Guide Price £500,000 - £520,000** Situated in the ever-popular area of Great Warley is this extended three-bedroom sem...

Mayfield Gardens, Brentwood

3 Bedroom Semi-Detached House | Offers in excess of £525,000

We are pleased to present this charming three-bedroom semi-detached home, ideally located just moments from Brentwood Hi...

Linden Rise, Warley, Brentwood

3 Bedroom Semi-Detached House | Guide Price £525,000

**Guide Price £525,000 - £550,000** We are pleased to present this attractive semi-detached family home, ideally positio...

Victors Crescent, Hutton, Brentwood

4 Bedroom Semi-Detached House | Guide Price £525,000

** Guide Price £525,000 - £550,000 ** We are pleased to present this semi-detached family home, situated in a peaceful c...

Keith Ashton Estates - Brentwood Office (Brentwood)

26 St. Thomas Road, Brentwood, Essex, CM14 4DB

01277 260858

How much is your home worth?

Use our short form to request a valuation of your property.

Request a Valuation

Mortgage Calculator

Amount Borrowed: £
Total Amount Repayable: £
Total Monthly Payment: £
©2025 The Guild of Property Professionals. All rights reserved. Terms and Conditions | Privacy Policy | Cookie Policy | Complaints Policy | Members Login
The Guild of Property Professionals Trading Address: 121 Park Lane, London W1K 7AG. GPEA Limited. Registered in England & Wales.  Company No: 02819824.  Registered Office Address: 2 St. Stephen's Court, St. Stephen's Road, Bournemouth, Dorset, England, BH2 6LA.  VAT Registration No: 576 8795 61
Book a Property Valuation Update Cookies Preferences