Windrush Road, Keynsham

£395,000
SSTC
This property listing is now SSTC

3 Bedroom Semi-Detached House for sale in Bristol

2 3 1
  • Owned since new and well cared for with scope for updating
  • Scope to extend (subject to necessary consents)
  • Entrance hall
  • Living room with double doors to dining room
  • Kitchen
  • Side porch/utility and downstairs cloak/WC
  • 3 Bedrooms
  • Bathroom
  • Driveway and attached garage with electric roller entrance door
  • Good size south facing rear garden

This traditional Knox built semi detached house is of an ever popular design dating from the very end of the 1950's. It has been in the same ownership since new and has been well cared for, now available with no upward sales chain. It has double glazed windows and doors and gas fired central heating and is ready for a new owner to undertake updating and extension (if required) to suit their own requirements. The existing accommodation is well proportioned with an entrance hall, two reception rooms, kitchen, side porch/utility and cloakroom with WC on the ground floor and three bedrooms and bathroom on the first floor.

Externally the property has a mature front garden, driveway parking and an attached garage. A particularly good size south facing rear garden has a good degree of maturity and offers great scope for a keen gardener.

Windrush Road is a popular location on the Wellsway side of Keynsham within walking distance of the Wellsway School Complex and neighbourhood shops on Chandag Road which includes a Morrisons Daily and a pharmacy. The Town Centre with it's excellent range of day to day amenities is approximately 1 mile away with a shorter walking route via Dapps Hill and Memorial Park. Waitrose food store at Broadmead Lane is under a mile away.

In all, an excellent opportunity presents itself to acquire an ideal family home to place your own stamp on.

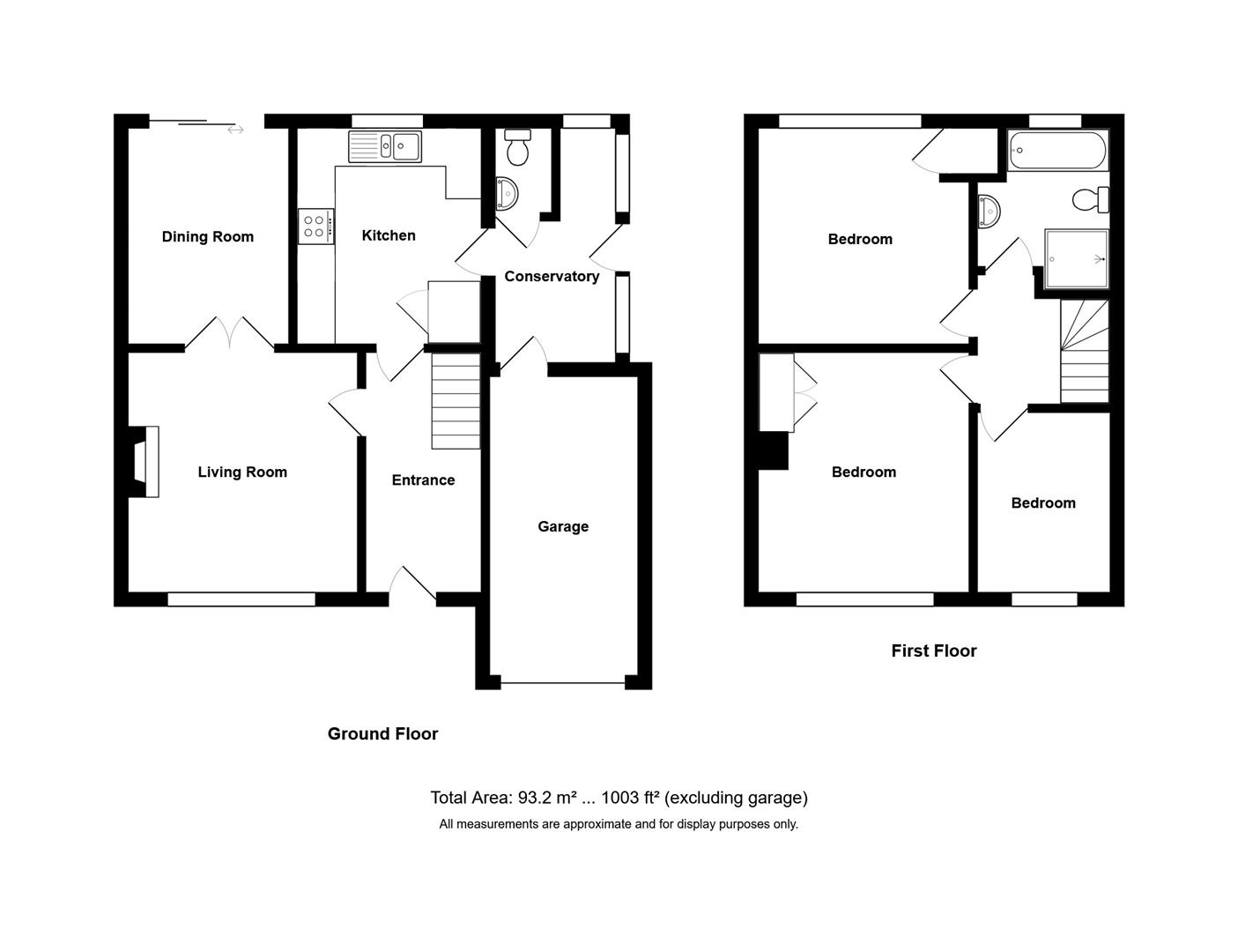
In fuller detail the accommodation comprises (all measurement are approximate):

Ground Floor -

Open Canopied Porch - Double glazed entrance door and side panel to

Entrance Hall - Staircase to first floor with cupboard beneath. Radiator.

Sitting Room - 3.85m x 3.68m (12'7" x 12'0") - Double glazed window to front aspect. Fireplace with electric fire. Radiator. Glazed double doors to

Dining Room - 3.43m x 2.60m (11'3" x 8'6") - Wood flooring, sliding double glazed patio door to rear garden. Radiator. Servery to kitchen.

Kitchen - 3.42m x 2.95m (11'2" x 9'8") - Tiled floor, radiator. Double glazed window overlooking the rear garden. Shelved pantry (included in measurements). Extensive range of oak fronted wall and floor units providing drawer and cupboard storage space with contrasting work surfaces and tiled surrounds. Inset one and quarter bowl stainless steel sink. Built in double oven, hob and hood. Plumbing for washing machine. Double glazed door to

Utility/Side Porch - 3.93m x 1.90m (12'10" x 6'2") - uPVC framed and double glazed. Tiled floor, electric panel heater. Door to garage and double glazed door to outside.

Cloak/Wc (Included In Porch Measurements) - Double glazed window to rear aspect, tiled floor and extensively tiled walls. WC and wash basin with cupboard beneath. Cupboard containing Potterton gas fired boiler.

First Floor -

Landing - Access to roof space with drop down ladder. Double glazed window to side aspect.

Bedroom One - 3.93m x 3.43m (12'10" x 11'3") - Double glazed window to front aspect. Radiator. Built in shelved cupboard (included in measurements).

Bedorom Two - 3.42m x 3.41m (11'2" x 11'2") - Double glazed window overlooking the rear garden. Shelved airing cupboard with hot water cylinder (included in measurements).

Bedroom Three - 2.90m x 2.19m (9'6" x 7'2") - Double glazed window to front aspect, radiator.

Bathroom - 2.60m x 2.14m (max) (8'6" x 7'0" (max)) - Double glazed window to rear aspect. Tiled floor and fully tiled walls, ceiling mounted downlighters. Heated towel rail. White suite comprising bath with mixer tap and hand held shower fitment, WC and wash basin with mixer tap set in vanity unit with cupboard beneath. Separate fully tiled shower enclosure with Triton independent electric shower head.

Outside -

Front - Stone walled boundary to Windrush Road with garden laid to lawn with surrounding flower and shrub borders.

A concrete driveway provides off street parking and the approach to the

Attached Garage - 4.78m x 2.36m (15'8" x 7'8") - Electric remote controlled roller entrance door. Power and light connected. Connecting internal door to side porch.

Rear Garden - 21.5m x 9m (70'6" x 29'6") - Southerly facing, approached via a side access from the front of the property. The garden comprises a paved patio terrace immediately to the rear, beyond which it is laid to lawn with flower and shrub borders. An outside tap is provided and there is a timber shed at the far end of the garden.

Tenure - Understood to be freehold. The title is unregistered.

Additional Information - All mains services. Local Authority - Bath & North East Somerset Council.

Council Tax - According to the Valuation Office Agency website, cti.voa.gov.uk the present Council Tax Band for the property is D. Please note that change of ownership is a 'relevant transaction' that can lead to the review of the existing council tax banding assessment.

Property Ref: 34200760

Share:

Similar Properties

Stephens Drive, Barrs Court, Bristol

3 Bedroom Semi-Detached House | £395,000

Nestled in a tucked away position within the sought after Bars Court area, this delightful semi detached home enjoys a p...

Taynton Close, Bitton, Bristol

3 Bedroom Detached House | Offers in region of £385,000

This well presented, three-bedroom detached home is tucked away in a quiet residential cul-de-sac and has been thoughtfu...

Champion Road, Bitton, Bristol

3 Bedroom End of Terrace House | Offers in excess of £385,000

This excellent modern three bedroom end terrace house was constructed by Linden Homes and is part of the redevelopment o...

St. Anthonys Drive, Wick, Bristol

2 Bedroom Detached Bungalow | £400,000

This beautiful detached bungalow is well, located in a popular and tucked away location whilst still offering good acces...

Ludlow Close, Willsbridge, Bristol

4 Bedroom Detached House | Offers Over £400,000

A 1980's detached house of a very popular style with an attractive Neo Tudor fa?ade offering well balanced accommodation...

Rectory Lane, Timsbury, Bath

3 Bedroom Cottage | Offers in excess of £400,000

This attractive stone built terraced village house is a unique property of charm and character with a 'T' shape configur...

Davies & Way (Saltford)

489 Bath Road, Saltford, Bristol, BS31 3BA

01225 400400

How much is your home worth?

Use our short form to request a valuation of your property.

Request a Valuation

Mortgage Calculator

Amount Borrowed: £
Total Amount Repayable: £
Total Monthly Payment: £
©2026 The Guild of Property Professionals. All rights reserved. Terms and Conditions | Privacy Policy | Cookie Policy | Complaints Policy | Members Login
The Guild of Property Professionals Trading Address: 121 Park Lane, London W1K 7AG. GPEA Limited. Registered in England & Wales.  Company No: 02819824.  Registered Office Address: 2 St. Stephen's Court, St. Stephen's Road, Bournemouth, Dorset, England, BH2 6LA.  VAT Registration No: 576 8795 61
Book a Property Valuation Update Cookies Preferences