South Hill, Callington

£399,950

4 Bedroom Detached House for sale in Callington

1 4 3
  • New build detached family home
  • Superb rural location with lovely countryside views
  • Entrance hall
  • Downstairs cloakroom/wc
  • Open-plan living room & kitchen
  • 4 bedrooms
  • 2 ensuites & family bathroom
  • Front & rear level gardens
  • Drive, garage & additional parking
  • Double-glazing & central heating

Superbly-presented & beautifully situated brand new detached house enjoying fabulous countryside views. Briefly, the accommodation comprises an entrance hall, downstairs cloakroom/wc, open-plan living room & kitchen, whilst on the first floor are 4 bedrooms, 2 with ensuite facilities & family bathroom. Externally, there are level gardens to the front and rear together with a 2-car drive, garage plus additional parking. Double-glazing, including under-floor heating to the ground floor & central heating.

Valley View, South Hill, Callington, Pl17 7Ey -

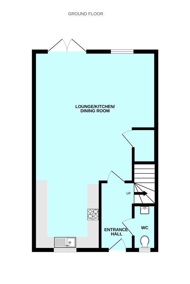
Accommodation - Front door opening into the entrance hall.

Entrance Hall - 3.23m x 1.42m (10'7 x 4'8) - Providing access to the ground floor accommodation. Stairs ascending to the first floor.

Open-Plan Living Room - 5.51m x 5.41m (18'1 x 17'9) - Ample space for seating and dining. Cupboard housing the hot water cylinder. Window to the rear elevation overlooking the garden. French doors leading to outside. Open-plan access through into the kitchen.

Kitchen - 3.33m x 2.69m (10'11 x 8'10) - Fitted with a range of modern base and wall-mounted cabinets with contrasting fascias, polished Quartz-style work surfaces and a matching splash-back. Stainless-steel one-&-a-half bowl single drainer sink unit. Inset NEFF hob. Built-in NEFF oven and microwave. Integral fridge and freezer. Integral dishwasher. Inset ceiling spotlights. Window to the front elevation with lovely countryside views.

Downstairs Cloakroom/Wc - 1.98m x 1.12m (6'6 x 3'8) - Fitted with a wall-mounted wc with a push-button flush and a wall-mounted basin with drawer storage. Towel rail/radiator. Tiled floor. Partly-tiled walls. Obscured window to the front elevation.

First Floor Landing - 4.29m x 1.98m (14'1 x 6'6) - Providing access to the first floor accommodation. Hard wood rail and glass balustrade. Recessed cupboard. Loft hatch.

Bedroom One - 4.93m x 3.02m (16'2 x 9'11) - Window to the front elevation providing lovely countryside views. Inset ceiling spotlights. Doorway opening into the ensuite shower room.

Ensuite Shower Room - 2.84m x 1.37m (9'4 x 4'6) - Comprising a double-sized enclosed tiled shower with wall-mounted controls, wall-mounted basin with drawer storage and wall-mounted wc with a push-button flush. Wall-mounted chrome towel rail/radiator. Partly-tiled walls. Inset ceiling spotlights.

Bedroom Two - 3.76m x 3.33m at widest point (12'4 x 10'11 at wid - Built-in double wardrobe. Window to the rear elevation. Inset ceiling spotlights. Doorway opening into the ensuite shower room.

Ensuite Shower Room - 2.49m x 1.60m (8'2 x 5'3) - Comprising an enclosed tiled shower with wall-mounted controls, wall-mounted basin with drawer storage and a wall-mounted wc with a push-button flush. Wall-mounted chrome towel rail/radiator. Partly-tiled walls. Inset ceiling spotlights.

Bedroom Three - 3.33m x 3.25m (10'11 x 10'8) - Window to the front elevation with lovely countryside views. Inset ceiling spotlights.

Bedroom Four - 2.46m x 2.16m (8'1 x 7'1) - Window to the rear elevation with views over the garden. Inset ceiling spotlights.

Bathroom - 2.16m x 1.91m (7'1 x 6'3) - Comprising a bath with a tiled area surround, shower over and wall-mounted controls, wall-mounted basin with drawer storage and a wall-mounted mirror with integral lighting over and a wall-mounted wc with a push-button flush. Wall-mounted chrome towel rail/radiator. Partly-tiled walls. Inset ceiling spotlights. Obscured window to the front elevation.

Garage - 6.50m x 3.12m (21'4 x 10'3) - Up-&-over door to the front elevation. Rear access door. Power and lighting.

Outside - There are level gardens laid to lawn to both the front and rear elevations. There is a paved patio area to the rear.

Agent's Note - The ground floor has under-floor heating and the first floor has radiators.
Private drainage.

Property Ref: 11002660_34222819

Share:

Similar Properties

Brixton, Plymouth

3 Bedroom Detached Bungalow | £399,950

A wonderful detached bungalow located in the very popular South Hams village of Brixton. The accommodation has been exte...

Elburton, Plymouth

3 Bedroom Bungalow | £399,950

Link detached dormer bungalow occupying a level plot situated in this highly sought-after location in Elburton. The acco...

Elburton, Plymouth

3 Bedroom Detached House | £399,950

Being sold with no onward chain is this lovely extended detached family residence. It is located on the edge of Elburton...

Elburton, Plymouth

3 Bedroom Detached House | Offers in excess of £400,000

Superbly-presented detached family house in a popular cul-de-sac location. The accommodation briefly comprises an entran...

Plymstock, Plymouth

3 Bedroom Detached Bungalow | £400,000

Located in central Plymstock and benefitting from the local amenities and schools is this extended detached bungalow. Th...

Sherford, Plymouth

4 Bedroom End of Terrace House | £400,000

Beautifully-presented end-terraced 3-storey townhouse being sold with no onward chain. The accommodation is laid out ove...

Julian Marks Estate Agents (Plymstock)

2 The Broadway, Plymstock, Plymstock, Devon, PL9 7AW

01752 401128

How much is your home worth?

Use our short form to request a valuation of your property.

Request a Valuation

Mortgage Calculator

Amount Borrowed: £
Total Amount Repayable: £
Total Monthly Payment: £
©2025 The Guild of Property Professionals. All rights reserved. Terms and Conditions | Privacy Policy | Cookie Policy | Complaints Policy | Members Login
The Guild of Property Professionals Trading Address: 121 Park Lane, London W1K 7AG. GPEA Limited. Registered in England & Wales.  Company No: 02819824.  Registered Office Address: 2 St. Stephen's Court, St. Stephen's Road, Bournemouth, Dorset, England, BH2 6LA.  VAT Registration No: 576 8795 61
Book a Property Valuation Update Cookies Preferences