Sherford, Plymouth

£400,000
SSTC
This property listing is now SSTC

4 Bedroom End of Terrace House for sale in Plymouth

1 4 3
  • Beautifully-presented 3-storey end-terraced townhouse
  • Entrance hall with downstairs cloakroom/wc
  • Open-plan kitchen/dining room & adjoining utility
  • First floor lounge/optional 5th bedroom
  • 4 bedrooms
  • Family bathroom, ensuite shower room & additional shower room
  • Enclosed level garden
  • Garage
  • Double-glazing
  • Central heating

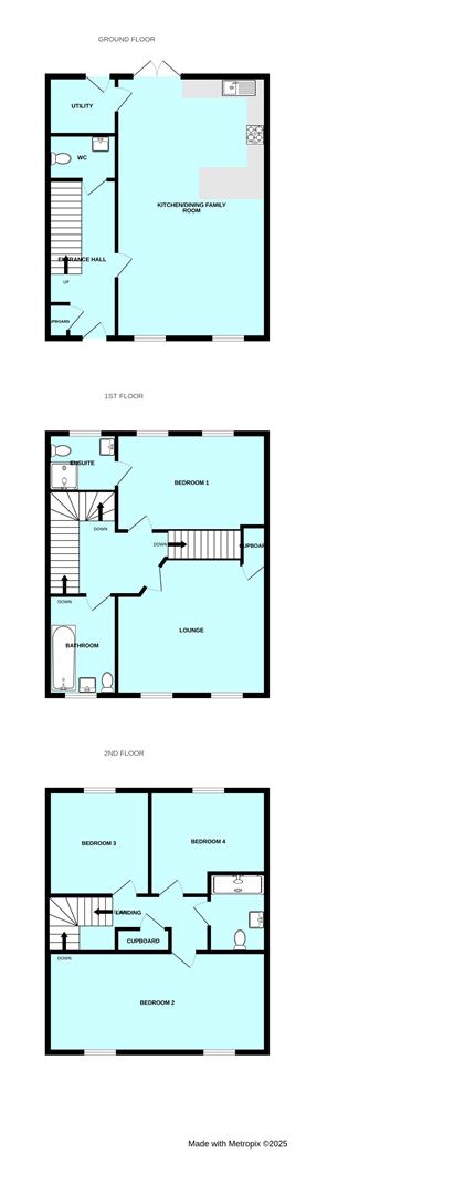
Beautifully-presented end-terraced 3-storey townhouse being sold with no onward chain. The accommodation is laid out over 3 levels & comprises an entrance hall with downstairs cloakroom/wc & open-plan kitchen/dining room on the ground floor. There is a first floor lounge, master bedroom with ensuite & bathroom on the first floor whilst on the top floor there are 3 further bedroom & shower room.

Ursa Gardens, Sherford, Pl9 8Gs -

Accommodation - Access to the property is gained via the entrance door leading into the entrance hall.

Entrance Hall - Built-in storage cupboard. Stairs rising to the first floor. Doors providing access to the ground floor accommodation.

Downstairs Cloakroom/Wc - 1.76 x 1.42 (5'9" x 4'7") - Fitted with a low level wc and sink unit.

Kitchen/Dining/Living Room - 8.26 x 4.75 (27'1" x 15'7") - A dual aspect room with 2 double-glazed sash-style windows to the front elevation and double doors leading out onto the rear garden. Within the kitchen area this is a series of matching contemporary-style eye-level and base units with work surfaces. Built-in 4-ring gas hob with a canopied extractor hood above. Door leading to the utility room.

Utility Room - 2.12 x 1.82 (6'11" x 5'11") - Work surface with storage beneath. Part-glazed door leading to the rear.

First Floor Landing - Providing access to the first floor accommodation. Staircase rising to the top floor.

Lounge - 4.77 x 4.138 (15'7" x 13'6") - 2 double-glazed sash-style windows to the front elevation. Feature panelling to one wall.

Bedroom One - 4.73 x 2.85 (15'6" x 9'4") - 2 double-glazed windows to the rear elevation. Doorway leading into the ensuite shower room.

Ensuite Shower Room - 1.90 x 1.83 (6'2" x 6'0") - Comprising a corner shower cubicle with a folding shower screen door, tiled area surround and shower unit with spray attachment, sink unit with mixer tap and a low level toilet with a boxed-in cistern. Vertical towel rail/radiator. Obscured double-glazed window to the rear elevation.

Family Bathroom - 2.11 x 1.76 (6'11" x 5'9") - White modern suite comprising a bath with a shower screen and shower unit with spray attachment over, sink unit and a low level toilet with a boxed-in cistern. Vertical towel rail/radiator. Fully-tiled walls. Obscured double-glazed window to the rear elevation.

Second Floor Landing - Providing access to the second floor accommodation.

Bedroom Two - 4.78 x 2.86 (15'8" x 9'4") - 2 double-glazed windows to the rear elevation.

Bedroom Three - 3.32 x 2.41 (10'10" x 7'10") - Double-glazed window to the front elevation.

Bedroom Four - 3.30 x 2.28 max dimensions (10'9" x 7'5" max dimen - Double-glazed window to the front elevation.

Shower Room - 2.22 x 1.18 (7'3" x 3'10") - Comprising a good-sized shower cubicle with tiled area surround and shower unit with spray attachment, sink unit and low level toilet with boxed-in cistern. Vertical towel rail/radiator. Partly-tiled walls.

Terrace - 6.75 x 1.87 (22'1" x 6'1") - Leading from the landing a doorway leads out to a terrace.

Garage - Up-&-over door to the front elevation.

Outside - To the rear of the property there is a fenced and walled enclosed garden, which has been paved. There is a central artificial grassed area and good-sized decked area across the rear. There are raised planters, an outside cold tap and a gate leading to the gated drive and separate garage.

Council Tax - South Hams District Council
Council tax band E

Services - The property is connected to all the mains services: gas, electricity, water and drainage.

Property Ref: 11002660_33880175

Share:

Similar Properties

Elburton, Plymouth

3 Bedroom Detached House | Offers in excess of £400,000

Superbly-presented detached family house in a popular cul-de-sac location. The accommodation briefly comprises an entran...

Plymstock, Plymouth

3 Bedroom Detached Bungalow | £400,000

Located in central Plymstock and benefitting from the local amenities and schools is this extended detached bungalow. Th...

Brixton, Plymouth

3 Bedroom Detached Bungalow | £399,950

A wonderful detached bungalow located in the very popular South Hams village of Brixton. The accommodation has been exte...

Hooe, Plymouth

4 Bedroom Detached House | £415,000

Detached house situated in this highly popular position close to Hooe Lake with a driveway & garage. The accommodation b...

Plymstock, Plymouth

5 Bedroom Semi-Detached House | £415,000

Superbly-presented semi-detached house offering generous family accommodation. Briefly the accommodation comprises a por...

Plymstock, Plymouth

3 Bedroom Detached Bungalow | £415,000

Wonderful detached level-sited extended bungalow location in a very popular private & peaceful cul-de-sac. The accommoda...

Julian Marks Estate Agents (Plymstock)

2 The Broadway, Plymstock, Plymstock, Devon, PL9 7AW

01752 401128

How much is your home worth?

Use our short form to request a valuation of your property.

Request a Valuation

Mortgage Calculator

Amount Borrowed: £
Total Amount Repayable: £
Total Monthly Payment: £
©2025 The Guild of Property Professionals. All rights reserved. Terms and Conditions | Privacy Policy | Cookie Policy | Complaints Policy | Members Login
The Guild of Property Professionals Trading Address: 121 Park Lane, London W1K 7AG. GPEA Limited. Registered in England & Wales.  Company No: 02819824.  Registered Office Address: 2 St. Stephen's Court, St. Stephen's Road, Bournemouth, Dorset, England, BH2 6LA.  VAT Registration No: 576 8795 61
Book a Property Valuation Update Cookies Preferences