Hooe, Plymouth

£415,000
SSTC
This property listing is now SSTC

4 Bedroom Detached House for sale in Plymouth

1 4 3
  • Detached house in a highly popular location close to Hooe Lake
  • Entrance hall with downstairs cloakroom/wc
  • Lounge & open-plan full-width kitchen/dining room
  • 4 bedrooms
  • Top floor master suite with ensuite shower room
  • Second ensuite & family bathroom
  • Westerly-facing rear garden, enclosed driveway & garage
  • Double-glazing & central heating
  • Views towards Hooe Lake
  • No onward chain

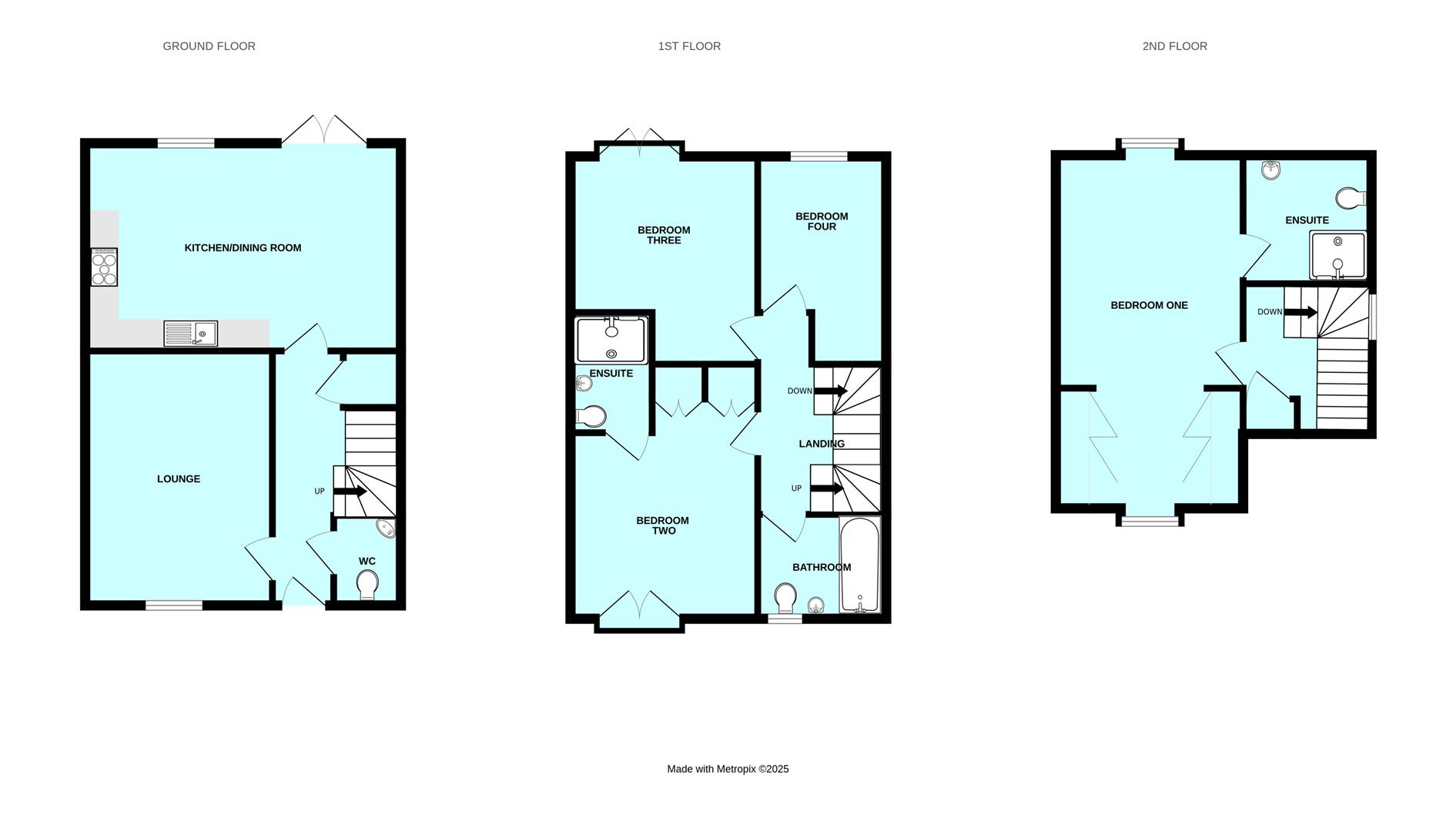
Detached house situated in this highly popular position close to Hooe Lake with a driveway & garage. The accommodation briefly comprises an entrance hall with downstairs cloakroom/wc, lounge, open-plan full-width kitchen/dining room leading onto the enclosed westerly-facing garden. The upper floors of the property host 4 bedrooms, 2 ensuites & a family bathroom. Views towards Hooe Lake. Double-glazing & central heating. Being sold with no onward chain.

Causeway View, Hooe, Pl9 9Fq -

Accommodation - Front door opening into the entrance hall.

Entrance Hall - 4.47m x 1.32m (14'8 x 4'4) - Providing access to the ground floor accommodation. Staircase ascending to the first floor. Under-stairs cupboard.

Lounge - 4.50m x 3.28m (14'9 x 10'9) - Window with a fitted blind to the front elevation.

Kitchen/Dining Room - 5.61m x 3.66m (18'5 x 12') - An open-plan room with a window to the rear elevation overlooking the garden and French doors leading to outside. Polished floor tiles throughout. Ample space for seating and dining. Range of base and wall-mounted cabinets with matching fascias, work surfaces and splash-backs. Built-in double oven and grill. Inset 6-burner gas hob with a stainless-steel splash-back and cooker hood. Stainless-steel one-&-a-half bowl single drainer sink unit. Space for free-standing American-style fridge-freezer. Built-in washing machine and dishwasher.

Downstairs Cloakroom/Wc - 1.68m x 0.99m (5'6 x 3'3) - Comprising a wc and a pedestal basin with a tiled splash-back.

First Floor Landing - Providing access to the first floor accommodation. Staircase ascending to the top floor.

Bedroom Two - 3.91m x 3.33m (12'10 x 10'11) - French windows to the front elevation opening onto a stainless-steel and glass Juliette-style balcony. Built-in wardrobes. Doorway opening to the ensuite shower room.

Ensuite Shower Room - 2.13m x 1.35m (7' x 4'5) - Comprising an enclosed double-sized shower with sliding glass screen and a built-in shower system, pedestal basin and wc. Towel rail/radiator. Mirrored bathroom cabinet. Partly-tiled walls.

Bedroom Three - 3.68m x 3.33m (12'1 x 10'11) - French windows to the rear elevation opening onto a stainless-steel and glass Juliette-style balcony providing views over the garden.

Bedroom Four - 3.68m x 2.18m (12'1 x 7'2) - Window with fitted blind to the rear elevation.

Bathroom - 2.18m x 1.70m (7'2 x 5'7) - Comprising a bath, pedestal basin and wc. Towel rail/radiator. Mirrored cabinet. Polished floor tiles. Obscured window to the front elevation.

Top Floor Landing - Cupboard housing the hot water cylinder. Obscured window to the side elevation.

Bedroom One - 5.64m x 3.40m (18'6 x 11'2) - A dual aspect room with windows to the front and rear elevations. Views towards Hooe Lake from the front window. Built-in wardrobes. Doorway opening into the ensuite shower room.

Ensuite Shower Room - 2.11m x 2.03m (6'11 x 6'8) - Comprising a double-sized enclosed tiled shower, pedestal basin and wc. Towel rail/radiator. Partly-tiled walls. Velux-style skylight to the rear.

Garage - 5.92m x 3.18m (19'5 x 10'5) - Up-&-over door to the front elevation. Pitched roof providing some over-head storage. Power and lighting.

Outside - To the front there is a small garden laid to lawn and some chippings. A pathway leads around the side of the property through a timber gate accessing the rear garden. The rear garden enjoys a westerly aspect and features timber gates which open onto an enclosed driveway providing parking and access to the garage. The garden itself is laid to lawn and patio together with shrub and flower beds.

Council Tax - Plymouth City Council
Council tax band E

Services - The property is connected to all the mains services: gas, electricity, water and drainage.

Agent's Note - There is an annual service charge of approximately �330 to cover the maintenance of the communal areas.

Property Ref: 11002660_33957585

Share:

Similar Properties

Plymstock, Plymouth

3 Bedroom Detached Bungalow | £415,000

Wonderful detached level-sited extended bungalow location in a very popular private & peaceful cul-de-sac. The accommoda...

Sherford, Plymouth

4 Bedroom End of Terrace House | £400,000

Beautifully-presented end-terraced 3-storey townhouse being sold with no onward chain. The accommodation is laid out ove...

Plymstock, Plymouth

3 Bedroom Detached Bungalow | Offers Over £400,000

An extremely spacious detached bungalow in a lovely position enjoying a beautiful mature southerly-facing rear garden. B...

Maidenwell Road, Plympton, Plymouth

5 Bedroom Detached House | Guide Price £425,000

Beautifully-presented detached house, individually designed & built by the current owners. The accommodation is well-pre...

Plymstock, Plymouth

4 Bedroom Detached House | £425,000

Detached house situated in a highly sought-after position enjoying a secluded west-facing rear garden backing onto woodl...

Plymstock, Plymouth

3 Bedroom Semi-Detached House | £425,000

An older-style semi-detached house in a highly sought-after location offering a wealth of characterful features, high ce...

Julian Marks Estate Agents (Plymstock)

2 The Broadway, Plymstock, Plymstock, Devon, PL9 7AW

01752 401128

How much is your home worth?

Use our short form to request a valuation of your property.

Request a Valuation

Mortgage Calculator

Amount Borrowed: £
Total Amount Repayable: £
Total Monthly Payment: £
©2026 The Guild of Property Professionals. All rights reserved. Terms and Conditions | Privacy Policy | Cookie Policy | Complaints Policy | Members Login
The Guild of Property Professionals Trading Address: 121 Park Lane, London W1K 7AG. GPEA Limited. Registered in England & Wales.  Company No: 02819824.  Registered Office Address: 2 St. Stephen's Court, St. Stephen's Road, Bournemouth, Dorset, England, BH2 6LA.  VAT Registration No: 576 8795 61
Book a Property Valuation Update Cookies Preferences