Plymstock, Plymouth

Offers Over
£400,000

3 Bedroom Detached Bungalow for sale in Plymouth

1 3 1
  • Detached bungalow
  • Extremely spacious accommodation
  • Beautiful mature southerly-facing rear garden
  • Entrance hall
  • Lounge/dining room & additional split-level sitting room
  • Kitchen
  • 3 double bedrooms & bathroom
  • Basement rooms
  • Driveway & garage
  • Double-glazing & gas central heating

An extremely spacious detached bungalow in a lovely position enjoying a beautiful mature southerly-facing rear garden. Briefly, the accommodation comprises an entrance hall, feature open-plan lounge/dining room with central stone chimney breast, additional split-level sunken sitting room, kitchen, side porchway & to the rear a conservatory enjoying views over the garden. There are 2 double bedrooms and a bathroom on the ground floor, whilst built within the roof space is a third double bedroom. Paved driveway & garage. Double-glazing & central heating.

Shute Park Road, Plymstock, Pl9 8Re -

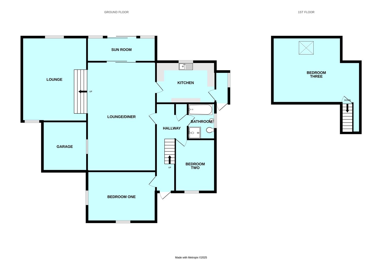
Accommodation - Front door opening into the entrance hall.

Entrance Hall - 5.77m x 1.80m (18'11 x 5'11) - Staircase ascending to bedroom three. Doors providing access to the ground floor accommodation. Recessed cloak cupboard with coat hooks and consumer unit.

Open-Plan Lounge/Dining Room - 7.52m x 4.75m (24'8 x 15'7) - A spacious room providing ample space for seating and dining. Nature stone-built chimney breast in the middle of the room. Beamed ceilings. Window to the side elevation. Sliding double-glazed doors to the rear opening into the conservatory.

Conservatory - 4.80m x 1.42m (15'9 x 4'8) - Glazing to 2 sides. Tiled floor. Lovely views over the mature south-facing garden.

Sitting Room - 5.59m x 4.52m (18'4 x 14'10) - An extremely spacious dual aspect sitting room with an obscured window to the front elevation and a window to the rear enjoying views over the garden.

Kitchen - 4.09m x 2.67m (13'5 x 8'9) - Range of matching base and wall-mounted cabinets with work surfaces and tiled splash-backs. Breakfast bar. 2 separate inset stainless-steel sinks. Built-in oven. 4-burner gas hob with a cooker hood above. Recess for fridge-freezer. Window over the sinks enjoying views over the garden. Doorway to the side opening into the porch.

Side Porchway - 2.84m x 0.84m (9'4 x 2'9) - Space and plumbing for washing machine. Single glazed windows to 2 elevations. Obscured glazed door leading to outside.

Bedroom One - 4.39m x 3.68m (14'5 x 12'1) - Dual aspect with windows to the front and side elevations. Range of built-in wardrobes and cupboards.

Bedroom Two - 3.18m x 3.48m (10'5 x 11'5) - Window to the front elevation.

Bathroom - 2.87m x 2.18m (9'5 x 7'2) - Comprising a bath, separate tiled shower, wc and pedestal basin. Wall-mounted mirror. Recessed bathroom cabinet. Partly-tiled walls. 2 obscured windows to the side elevation.

Bedroom Three - 4.88m x 4.55m (16' x 14'11) - Situated within the roof space. Velux-style roof window to the rear elevation. Beamed ceiling. Built-in wardrobe with sliding doors.

Basement Room One - 4.14m x 2.69m (13'7 x 8'10) - Window to the front elevation. Belfast-style sink with taps above. Gas meter. Doorway opening into basement room two.

Basement Room Two - 4.78m x 4.17m (15'8 x 13'8) - Wall-mounted Worcester gas boiler.

Basement Room Three - 3.56m x 1.40m (11'8 x 4'7) - Shelving.

Basement Room Four - 5.38m x 4.57m (17'8 x 15') - Very limited head height.

Garage - 4.67m x 2.24m (15'4 x 7'4) - Remote door to the front elevation.

Outside - The bungalow is approached via a brick-paved driveway providing off-road parking and access to the garage. There is also pedestrian access with a pathway leading to the main front door. The front garden is laid to lawn with bordering shrubs. There are also gardens to the side laid to lawn. To the rear, there is a beautiful garden mainly laid to lawn with inset and bordering shrubs. There is an outside pond, outside wc and a little stream at the bottom of the garden.

Council Tax - Plymouth City Council
Council tax band E

Property Ref: 34278149

Share:

Similar Properties

Sherford, Plymouth

4 Bedroom End of Terrace House | £400,000

Beautifully-presented end-terraced 3-storey townhouse being sold with no onward chain. The accommodation is laid out ove...

Elburton, Plymouth

4 Bedroom Detached Bungalow | £400,000

Superbly-positioned detached dormer bungalow situated at the head of this highly sought-after cul-de-sac on a generous p...

Hooe, Plymouth

4 Bedroom Terraced House | £399,950

Superbly-presented waterside townhouse in an incredible position enjoying fantastic views over Hooe Lake. The accommodat...

Raneleigh Barns, Down Thomas, Plymouth

3 Bedroom Barn Conversion | £415,000

Sleepy Hollow is a delightful barn conversion located in the ever popular Raneleigh development in Down Thomas. It is se...

Hooe, Plymouth

4 Bedroom Detached House | £415,000

Detached house situated in this highly popular position close to Hooe Lake with a driveway & garage. The accommodation b...

Elburton, Plymouth

Barn Conversion | £425,000

An exceedingly rare opportunity to acquire a development site within the heart of Elburton village, including one large,...

Julian Marks Estate Agents (Plymstock)

2 The Broadway, Plymstock, Plymstock, Devon, PL9 7AW

01752 401128

How much is your home worth?

Use our short form to request a valuation of your property.

Request a Valuation

Mortgage Calculator

Amount Borrowed: £
Total Amount Repayable: £
Total Monthly Payment: £
©2026 The Guild of Property Professionals. All rights reserved. Terms and Conditions | Privacy Policy | Cookie Policy | Complaints Policy | Members Login
The Guild of Property Professionals Trading Address: 121 Park Lane, London W1K 7AG. GPEA Limited. Registered in England & Wales.  Company No: 02819824.  Registered Office Address: 2 St. Stephen's Court, St. Stephen's Road, Bournemouth, Dorset, England, BH2 6LA.  VAT Registration No: 576 8795 61
Book a Property Valuation Update Cookies Preferences