The Windmills, South Hill, Callington

Guide Price
£150,000
SSTC
This property listing is now SSTC

Land for sale in Callington

  • Individual level building plot.
  • Located in a popular and attractive Parish.
  • Planning consent for a detached four bedroom bungalow.
  • Provisions for on-site garden
  • parking and drainage.
  • Some services connected nearby.
  • Good access to Bodmin Moor and road networks.
  • Commercial opportunity or self-build.
  • Viewing highly recommended.

Individual level building plot.
Located in a popular and attractive Parish.
Planning consent for a detached four bedroom bungalow.
Provisions for on-site garden, parking and drainage.
Some services connected nearby.
Good access to Bodmin Moor and road networks.
Commercial opportunity or self-build.
Viewing highly recommended.

This site forms part of the garden belonging to a substantial neighbouring property and adjoins the historic South Hill Parish Church. The plot is predominantly level and will benefit from its own private access onto the public highway. Our client will remove the existing sheds on site.
   
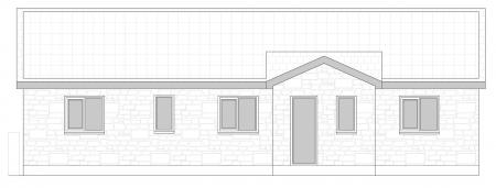
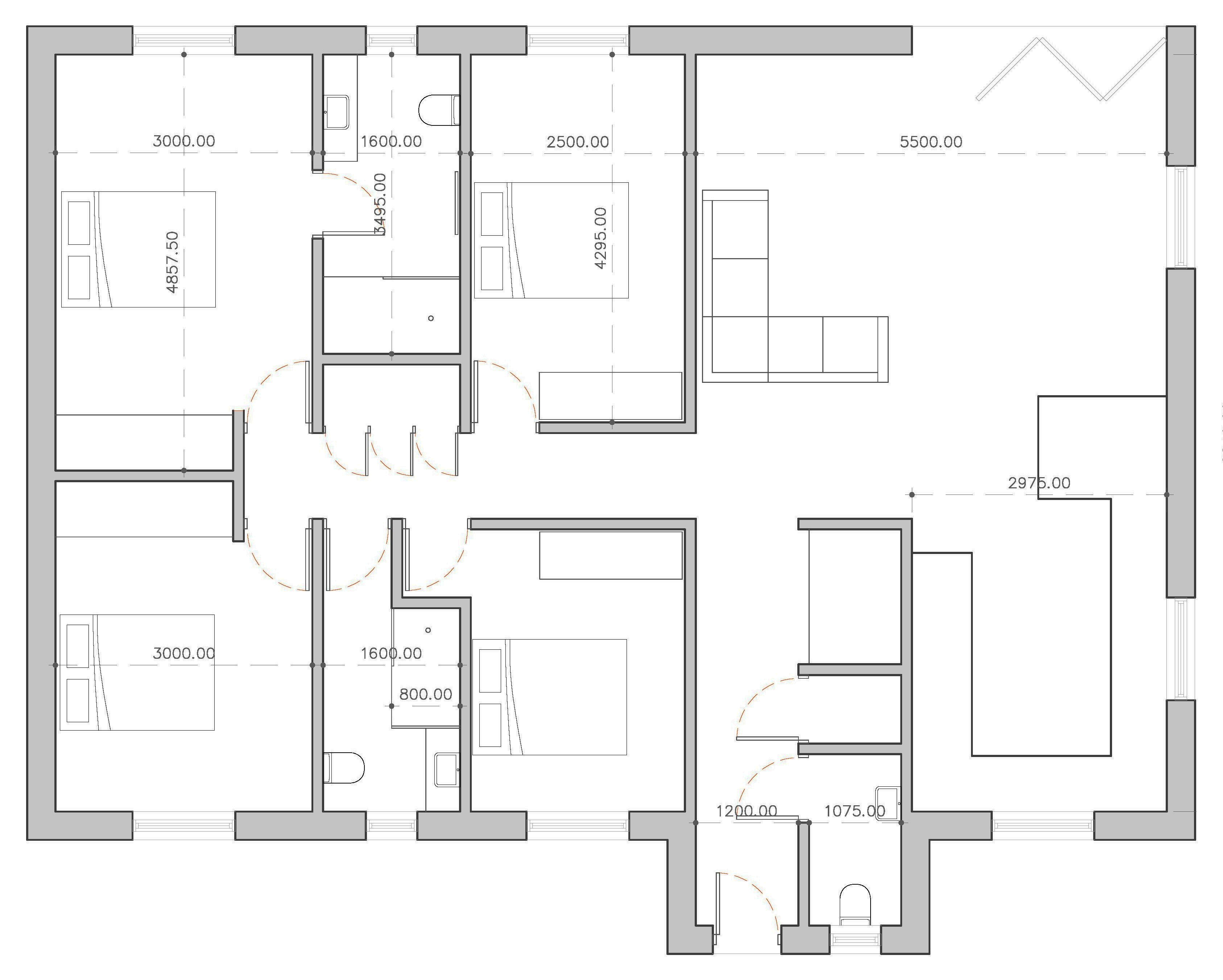
On 26th August 2025, conditional planning permission was granted by Cornwall Council for the construction of a four bedroom detached bungalow (Application Number: PA24/05087). The proposed accommodation includes a spacious, open plan lounge/kitchen/dining area, along with four double bedrooms, the master of which features an en-suite shower room.
   
The external design incorporates attractive stone finishes, well suited to the sensitive and historic setting. The site enjoys views towards Bodmin Moor to the west and would appeal to those interested in a self-build project or exploring a commercial development opportunity.
   
The building plot is located in the centre of the village of South Hill and a short drive from the town of Callington which has a range of shopping, educational, recreational and commercial facilities. It is about a 10 minute drive from Kit Hill Country Park, which is known for its fresh air, open space, walking and outstanding views. The city of Plymouth is within 17 miles and has more extensive facilities and a Continental Ferryport. The ancient market town of Launceston is 11 miles away and is on the A30 trunk road giving access to Truro and West Cornwall in one direction and Exeter and beyond in the opposite direction. Exeter airport is a 60 minute drive from South Hill.

SERVICES    We understand that there are some mains services located within the vicinity but any prospective purchaser will need to check with the relevant utility companies to prepare for the necessary connections.

COUNCIL    Cornwall Council.

TENURE    Freehold.

VIEWING ARRANGEMENTS    Strictly by appointment with the selling agent.

Proceed from Callington Town heading north towards Kelly Bray on the A388. Take the left hand turning into South Hill Road and proceed for 1.3 miles heading through Maders. Continue along this road for just over another mile and you will enter South Hill. The building plot will be identified on the right hand side before the staggered junction at St. Sampson’s Church marked with a Webbers For Sale Board.
   
what3words.com - ///asteroid.slowly.remarried

Important Information

  • This is a Freehold property.

Property Ref: 55816_LAU250267

Share:

Similar Properties

Western Road, Launceston, Cornwall

2 Bedroom Terraced House | Guide Price £139,950

An opportunity to purchase a two double bedroom home with outstanding far reaching views over surrounding countryside to...

Okehampton Road, Launceston, Cornwall

2 Bedroom Apartment | £120,000

A well presented top floor apartment offering a refurbished kitchen, a large lounge/dining room and two double bedrooms....

Manaton Court, Dunheved Road, Launceston

2 Bedroom Apartment | £120,000

A spacious two bedroom top floor retirement apartment for the over 60's benefitting from a private balcony situated clos...

St. Marys Road, Lanstephan, Launceston

3 Bedroom House | £157,500

This three bedroom end-terrace ex-local authority house is positioned on a corner plot, with good sized gardens and far...

Prince Philip Road, Launceston, Cornwall

2 Bedroom House | £159,000

This two double bedroom, end-terrace home has been recently renovated and refurbished. Brand new kitchen and appliances,...

Campion Close, Launceston, Cornwall

2 Bedroom Detached House | £175,000

Located in a tucked away position is this well presented two bedroom detached coach house apartment which has the advant...

Webbers Launceston (Launceston)

Launceston, Cornwall, PL15 8AD

01566 776211

How much is your home worth?

Use our short form to request a valuation of your property.

Request a Valuation

Mortgage Calculator

Amount Borrowed: £
Total Amount Repayable: £
Total Monthly Payment: £
©2025 The Guild of Property Professionals. All rights reserved. Terms and Conditions | Privacy Policy | Cookie Policy | Complaints Policy | Members Login
The Guild of Property Professionals Trading Address: 121 Park Lane, London W1K 7AG. GPEA Limited. Registered in England & Wales.  Company No: 02819824.  Registered Office Address: 2 St. Stephen's Court, St. Stephen's Road, Bournemouth, Dorset, England, BH2 6LA.  VAT Registration No: 576 8795 61
Book a Property Valuation Update Cookies Preferences