Carnkie, Helston

Guide Price
£650,000
SSTC
This property listing is now SSTC

4 Bedroom Country House for sale in Carnkie, Helston

2 4 2
  • FOUR BEDROOMS
  • FORMER FARMHOUSE
  • CIRCA 3 ACRES
  • RURAL SETTING
  • FURTHER LAND OF CIRCA 3 ACRES, AVAILABLE BY SEPARATE NEGOTIATION
  • VIEWS OVER OPEN COUNTRYSIDE
  • FREEHOLD
  • COUNCIL TAX BAND C
  • EPC - E50

Enjoying a discrete rural setting near the end of a private country lane, is this deceptively spacious four bedroom former farmhouse with land and gardens of circa 2.74 acres.

Carnkie Farm has been much improved during the current owners tenure to provide spacious and versatile living accommodation that is likely to find favour with a wide range of prospective purchasers.

Currently, informally arranged as two separate areas of accommodation the residence may appeal, in its current configuration to those seeking to house a dependent relative or those wishing to generate an additional income (subject to any necessary permissions or consents).

For those seeking a slice of the 'good life' there are circa 2.74 acres of pasture land which are likely to appeal to those with equestrian interests, those looking for a suitable smallholding or a combination of both. Should prospective purchasers require more land or equestrian facilities then a further parcel of land is available by separate negotiation (see Agents Note below).

Enjoying striking views over open fields, woodland and countryside beyond, the property provides well proportioned family accommodation and benefits from double glazing and oil fired central heating.

Particular highlights internally include a stunning oak framed conservatory to the rear with exposed timber beams, a vaulted ceiling, a log burning stove and an impressive rural outlook, a nicely appointed modern kitchen and a stylish fitted shower room.

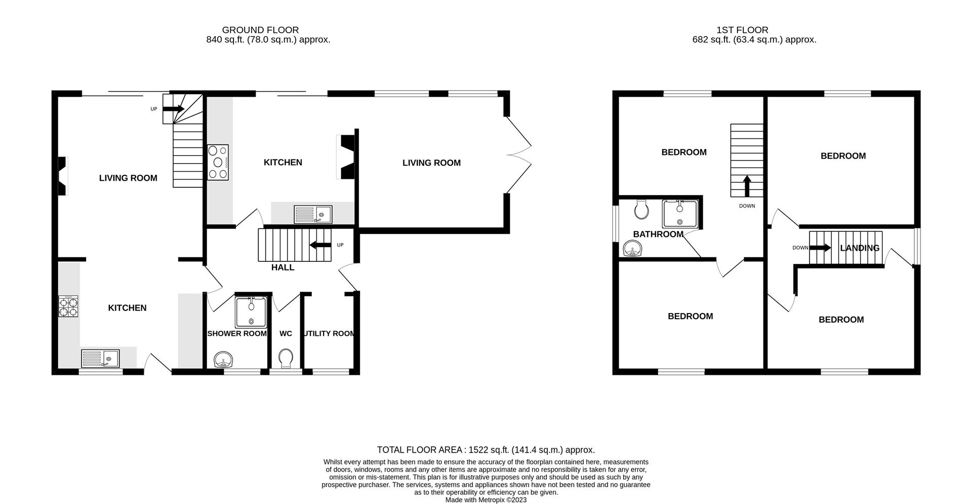
In brief the accommodation comprises a front kitchen, lounge, conservatory, rear kitchen/dining room, cloakroom, two shower rooms, four bedrooms and a utility room.

Outside there is parking for a number of vehicles whilst there are areas of garden to the front, rear and side of the residence together with parcels of land of circa three acres in total.

Carnkie is a rural hamlet conveniently situated for both the towns of Helston and Falmouth with all the amenities they have to offer. Within the hamlet there is a village hall and Wendron Sports Club which provides sports facilities, and a clubhouse with a bar. In the nearby hamlet of Porkellis there is the well regarded Star Inn public house whilst a short distance away is the primary school of Halwin. Secondary education can be found in both Helston and Falmouth with the latter also having a university campus.

Stithians Reservoir is situated a short drive away and offers a range of watersports activities and lakeside walks to visitors together with the Golden Lion public house & restaurant.

A mainline railway station can be found approximately seven miles away in Redruth with the A30 arterial road into Cornwall being a similar distance away.

The Accommodation Comprises (Dimensions Appprox) -

Upvc Part Glazed Door To -

Front Kitchen - 4.06m x 3.05m (13'4" x 10') - Comprising a modern fitted kitchen with grey working top surfaces incorporating a stainless steel sink with a one and a half bowl drainer with a mixer tap over, and an electric hob with hood over. There are a complimentary range of light grey base units and drawers under with matching wall units over. Spaces are provided for an under counter fridge, a washing machine and a tumble dryer, whilst there is an integrated electric oven. Twin windows look out over the front garden of the property whilst there is a polished concrete floor, recessed spotlighting, an electric consumer unit, an internal door to the inner hallway and an opening to the

Lounge - 4.50m x 4.09m (maximum measurements) (14'9" x 13'5 - Enjoying a sunny outlook beyond the sliding patio door towards the rear garden, the room has a distinctive polished concrete floor, with a feature fireplace housing a log burning stove with a polished granite hearth and surround and a wooden mantle. There is recessed spotlighting whilst a bespoke wooden rear staircase ascends to the first floor.

First Floor - With a loft hatch to the roof space, an opening to the mezzanine bedroom and doors off to the shower room and

Bedroom One - 4.09m x 3.05m (13'5" x 10') - A comfortable double bedroom with picture rails, stripped wooden flooring and a large window to the front aspect and the pleasant rural outlook beyond.

Bedroom Two/Study - Mezzanine - 2.84m x 2.67m (maximum measurements) (9'4" x 8'9" - With stripped wooden floorboards and a picture window with side panels enjoying a fine outlook over the rear garden and countryside beyond.

Shower Room - 2.31m x 1.68m (7'7" x 5'6") - Well appointed with grey wood-effect flooring and a white suite comprising a large walk-in shower cubicle with a sliding glass door, easy clean splash-backs and a thermostatic shower with attachment and rain forest style drencher head, a low level w.c and a corner wash handbasin with a mixer tap over and a vanity cupboard under. There is an obscure glazed window to the side aspect, an extractor and an LED circular feature light.

Inner Hallway - With luxury vinyl floor tiling, a door to an under stairs cupboard, an opening to the utility room, a front staircase to bedrooms three and four, an external door to the side aspect, doors leading off to the cloakroom, shower room, front kitchen and an opening to the rear kitchen / dining room.

Utility Room - With vinyl flooring, a Worcester oil fired boiler, a window to the front aspect and a working top surface with space under for a washing machine.

Cloak Room - With a low-level w.c, vinyl flooring and a glazed window to the front aspect.

Shower Room - Comprising a shower cubicle with easy clean surfaces, a thermostatic shower with rain shower head and a corner wash hand basin with a tiled splash back and vanity cupboard beneath. There is an obscure glazed window to the front aspect, an extractor fan, a shaving point and vinyl flooring.

Rear Kitchen / Dining Room - 4.09m x 3.58m (maximum measurements) (13'5" x 11'9 - Enjoying a light and sunny aspect with a sliding patio door out to the rear garden and playing host to a stylish, well appointed, grey 'high gloss' contemporary fitted kitchen.

Comprising granite working top surfaces incorporating a Butler sink with a granite drainer and flexible mixer tap over together with a comprehensive range of base units under with hinged wall units over and including an integrated sliding refuse bin unit and pull out shelving. There is an integrated dishwasher, whilst spaces are provided for a Rangemaster style cooker (with chimney style hood over), and an upright American style fridge freezer. There is recessed spotlighting, luxury vinyl flooring and an opening to

Conservatory - A spacious, light and welcoming room with an attractive vaulted ceiling with exposed oak beams, an array of windows and French doors (with bespoke shaped windows above) opening out into the side garden with lovely rural views across the fields and beyond. A real focal point of the room is the Contura wood burning stove set atop a granite hearth with an attractive wooden mantle over for those cosy nights in. The room is complimented by Travertine tumbled tiling to the floor and attractive pendant lighting.

The front staircase rises to the first floor.

First Floor Landing - Landing area with doors off to bedrooms three and four.

Bedroom Three - 4.06m x 3.58m (maximum measurements) (13'4" x 11'9 - A comfortable double bedroom with a contemporary radiator, picture rails and a large window with glazed side panels looking out over the gardens and land to the rear and the rural scene beyond.

Bedroom Four - 4.11m x 2.87m (maximum measurements) (13'6" x 9'5" - A double bedroom with a window to the front aspect enjoying an elevated outlook over the front garden and rural outlook beyond towards Halwin.

Outside - The area opposite the front of the residence and across the lane provides parking for a number of vehicles.

A pair of wrought iron gates with attractive granite pillars to each side, lead on to the front entrance path with attractive raised lawns to either side and Cornish hedging to the front. A side gate leads around to a side garden which is laid with bark chippings and flagstones and houses the oil tank and a recycling store. There is an outside tap and electric point. An alternative side gate leads around to an attached outside store beyond which there is a rear patio area and steps leading up to the rear garden and smallholding.

The rear garden is currently divided into two but could easily be returned to its former use. Enjoying a sunny aspect the rear garden is laid largely to lawn with flowers and shrubs at the borders. There is a garden shed and a gate which leads out to an enclosure with a shed, greenhouse, and a gate to the paddock beyond.

A further side garden, which has been designed with ease of maintenance in mind, has stone chippings and a further shed and enjoys a lovely sunny outlook over adjoining fields, woodland and countryside beyond.

A five bar gate opens out from the access lane into the parcel of land which is currently arranged in approximately five enclosures with an outside tap, a further greenhouse and an outside store / shelter. The pasture land could suit a variety of uses including as a smallholding and / or an equestrian holding.

Services - Mains electricity, water and private drainage.

Agents Note One - The property has a right of way over the first part of the access lane up to a pair of granite pillars beyond which it owns the lane that runs to the parking area and over which a neighbouring property enjoys a right of access to their residence. Further details are available upon request.

Agents Note Two - An adjacent parcel of land, woodland and stream of circa 3 acres in total together with two large field shelters / stabling are available to purchase by separate negotiation. These form an enclosed yard area. The parcel abuts the western boundary of the residence and has a public right of way along part of it. Further details are available upon request.

Council Tax Band - Band C

Mobile And Broadband - To check the broadband coverage for this property please visit -
https://www.openreach.com/fibre-broadband
To check the mobile phone coverage please visit -
https://checker.ofcom.org.uk/

Anti Money Laundering Regulations - Purchaser - We are required by law to ask all purchasers for verified ID prior to instructing a sale.

Proof Of Funds - Purchasers - Prior to agreeing a sale, we will require proof of financial ability to purchase which will include an agreement in principle for a mortgage and/or proof of cash funds.

Date Details Prepared - 24th April 2025

Property Ref: 453323_33854273

Share:

Similar Properties

Helston Road, Germoe, Penzance

3 Bedroom Country House | Guide Price £650,000

This fantastic home has so much to offer, the property offers wonderfully spacious and versatile living space with two b...

Laflouder Lane, Mullion

5 Bedroom Detached House | Guide Price £650,000

We are advised by our clients that this handsome Edwardian home was built by a ship's captain, thoughtfully positioned s...

Lower Hillcrest, Helston

6 Bedroom Detached House | Guide Price £630,000

Tucked away in one of Helston's most sought after residential areas this wonderful home offers space, style, and versati...

Church Lane, Helston

6 Bedroom Detached House | Guide Price £675,000

A unique opportunity to purchase a 4/5 bedroom, beautifully presented barn conversion, along with an inter connecting on...

Skyburriow Lane, Garras

4 Bedroom Detached Bungalow | Guide Price £675,000

An opportunity to purchase a nicely presented dormer bungalow of generous proportions combining spacious versatile accom...

Parc Halligey, Coverack

3 Bedroom Detached House | Guide Price £675,000

One of only two of its kind on this exciting new development - and the only one now available - this stunning three doub...

Christophers Estate Agents Porthleven (Porthleven)

Fore St, Porthleven, Cornwall, TR13 9HJ

01326 573737

How much is your home worth?

Use our short form to request a valuation of your property.

Request a Valuation

Mortgage Calculator

Amount Borrowed: £
Total Amount Repayable: £
Total Monthly Payment: £
©2025 The Guild of Property Professionals. All rights reserved. Terms and Conditions | Privacy Policy | Cookie Policy | Complaints Policy | Members Login
The Guild of Property Professionals Trading Address: 121 Park Lane, London W1K 7AG. GPEA Limited. Registered in England & Wales.  Company No: 02819824.  Registered Office Address: 2 St. Stephen's Court, St. Stephen's Road, Bournemouth, Dorset, England, BH2 6LA.  VAT Registration No: 576 8795 61
Book a Property Valuation Update Cookies Preferences