Highwold - Woldingham

Guide Price
£2,950,000

5 Bedroom Detached House for sale in Caterham

5 5 5
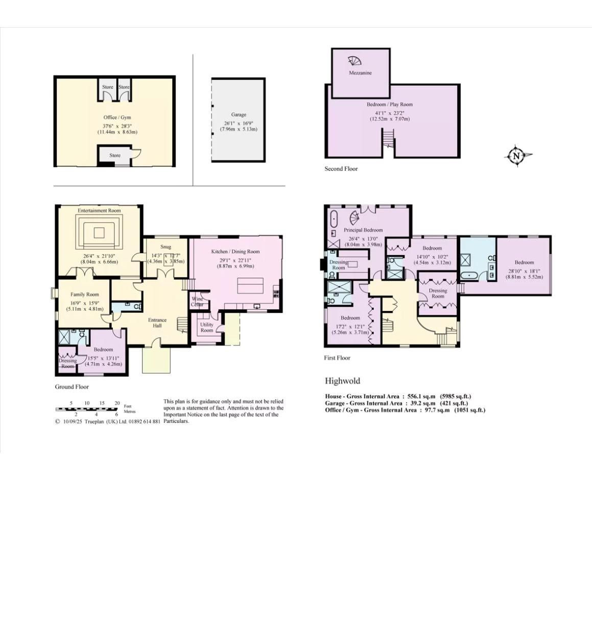
  • Existing 2 storey house - 3,465sf including garage and workshop.
  • Access from Station Road via private residential lane.
  • Acess from Park View Road with 80m road frontage.
  • Far reaching views from the house.
  • Stunning contemporary architecture.
  • Prestigious residential location.
  • 10 year build warrenty.
  • Quiet surroundings.
  • Close to village centre.
  • Private park-like gardens.

To be built by TP Construction, London, an exceptional contemporary family house extending to approximately 6000sf. In addition to the main house, there will be a separate detached office/gym (approx. 1,000sf) and SWIMMING POOL, all set on a beautiful mature plot of around 1.2 acres of private park-like gardens. The property will have an 80m road frontage and impressive gated main entrance from Park View Road, one of the most sought-after private roads in Woldingham. There will be a secondary entrance to Station Road via a private residential lane, only 2-3 minutes walk from Woldingham Village centre, where there is a small selection of shops as well as tennis and cricket clubs, church and school. 

Set within the Surrey Hills Area of Outstanding Natural Beauty, Woldingham is renowned for its picturesque scenery, outstanding schools, community spirit and easy access to London and major transport hubs. Woldingham is one of Surrey’s most exclusive and affluent residential areas.

- Woldingham Station: served by Southern and Thameslink is approximately a 10 - 15 minute walk.
- London Victoria and London Bridge: Under 40 minutes by train from Woldingham Station.
- Gatwick Airport: 20-minute drive.
- Heathrow Airport: 45-minute drive.
- M25 and M23 Motorways are easily accessible - approximately a 10 minutes drive away.

Oxted town centre is just a 10 minute drive away and offers a range of shopping including major supermarkets, independent shops and a very good choice of restaurants, cafes and pubs. There is a cinema, sports centre and other recreational facilities and sports clubs including several nearby golf courses.

Woldingham village offers two golf clubs — North Downs and Woldingham Golf Club — and is ideal for outdoor enthusiasts, with excellent walking, cycling, and riding trails across the Surrey Hills AONB and the North Downs Way.

A very good choice of local schools include some of the South East's most prestigious:

Woldingham School (Independent day/boarding for girls, 11–18)
- Caterham School (Independent School of the Year Award TES 2024 day/boarding co-educational, 4–18)
- Hazelwood School and Nursery (Prep school, 9 months–13 years)
- Sevenoaks School (World-renowned independent school, 11–18)
APPROVED PLANNING PERMISSION

Planning permission has been approved to substantially develop the existing house to create a fabulous 6000sf luxury home (planning no. 2025/472) with the addition of a separate 1,000sf single storey building to provide an office/gym (planning no. 2025/510).

The 1.2 acre plot provides a high degree privacy and is landscaped to create a park like feel with many beautiful mature trees, planting and lawns. OUTDOOR SWIMMING POOL.

Please talk to Robert Leech Land & New Homes department for more information.

Please note CGI images have been used in this listing and are for representation only and subject to change.

 

 

Important Information

  • This is a Freehold property.

Property Ref: 1213726

Share:

Similar Properties

Clayton, Park View Road, Woldingham, Caterham, CR3 7DJ

5 Bedroom Detached House | Guide Price £2,800,000

Situated in an Exceptional Location in the Heart of the Surrey Hills, a Brand New 5,139sf Luxury Family Home Close to Wo...

Icehouse Wood, Oxted, RH8 9DW

5 Bedroom Detached House | Guide Price £2,500,000

Located within the highly sought after and peaceful private road of Icehouse Wood, Oxted, this 5-bedroom contemporary fa...

Hosey Hill, Westerham, TN16 1TA

5 Bedroom Detached House | Guide Price £2,350,000

Set in the highly desirable and historic village of Westerham, this exceptional detached home offers a perfect blend of...

The Walpole, Park View Road, Woldingham, CR3 7DJ

6 Bedroom Detached House | Guide Price £3,150,000

Show Home Available to View -  Situated in an Exceptional Location in the Heart of the Surrey Hills, a Brand New 5,046sf...

Robert Leech (Oxted)

72 Station Road East, Oxted, Surrey, RH8 0PG

01883 717272

How much is your home worth?

Use our short form to request a valuation of your property.

Request a Valuation

Mortgage Calculator

Amount Borrowed: £
Total Amount Repayable: £
Total Monthly Payment: £
©2026 The Guild of Property Professionals. All rights reserved. Terms and Conditions | Privacy Policy | Cookie Policy | Complaints Policy | Members Login
The Guild of Property Professionals Trading Address: 121 Park Lane, London W1K 7AG. GPEA Limited. Registered in England & Wales.  Company No: 02819824.  Registered Office Address: 2 St. Stephen's Court, St. Stephen's Road, Bournemouth, Dorset, England, BH2 6LA.  VAT Registration No: 576 8795 61
Book a Property Valuation Update Cookies Preferences