Tolefrey Gardens, Knightwood Park, Chandler's Ford

£295,000
SSTC
This property listing is now SSTC

2 Bedroom Terraced House for sale in Chandler's Ford

1 2 1

Located in the quiet cul-de-sac of Tolefrey Gardens, this delightful two-bedroom terraced house in Knightwood Park offers a perfect blend of comfort and convenience. The property features a welcoming reception room, ideal for relaxation or entertaining guests together with a kitchen on the ground floor. With two well-proportioned bedrooms and adjacent bathroom, this home is perfect for, couples, or individuals seeking a peaceful retreat. One of the standout features of this property is the rear garden, which enjoys a lovely southerly aspect, providing ample sunlight throughout the day. It is an excellent space for outdoor activities, gardening, or simply unwinding in the fresh air. Additionally, the property boasts two dedicated parking spaces, ensuring that you and your guests will always have a convenient place to park. Situated in the heart of Knightwood Park, this home is surrounded by beautiful woodland walks and parks, making it an ideal location with local amenities, including shops at Pilgrims Close and reputable schools, just a short distance away, enhancing the appeal. This property presents a wonderful opportunity for those looking to settle in a peaceful yet well-connected area.

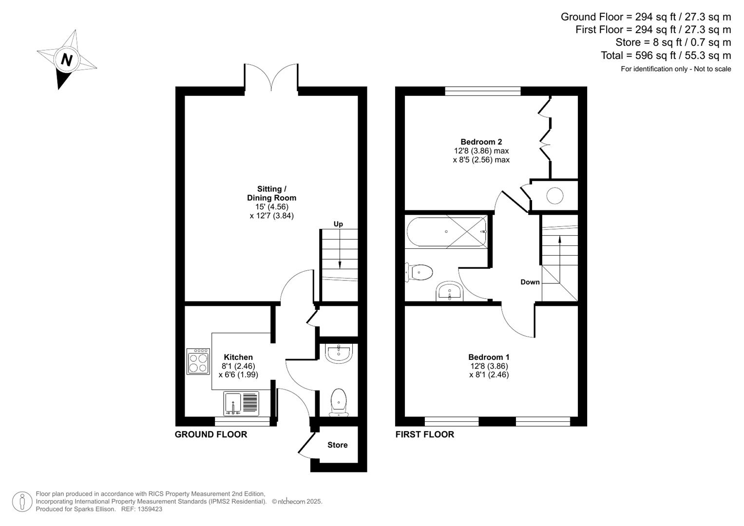
Accommodation -

Ground Floor -

Open Porch: - Storage cupboard.

Reception Hall: - Storage cupboard.

Cloakroom: - Wash basin, wc.

Living Room: - 15'0" x 12'7" (4.57 x 3.84) Double doors to rear garden, stairs to first floor.

Kitchen: - 8'1" x 6'6" (2.46m x 1.99m) Range of units, electric oven and gas hob with extractor hood over, space and plumbing for appliances, cupboard housing boiler.

First Floor -

Landing: - Hatch to loft space.

Bedroom 1: - 12'8" x 8'1" (3.86m X 2.46m)

Bedroom 2: - 12'8" x 8'5" (3.86m x 2.56m) Airing cupboard, fitted wardrobes.

Bathroom: - 6'2" x 6'0" (1.88 x 1.83) White suite with chrome fitments comprising bath with electric shower unit over and glazed screen, wash basin, wc.

Outside -

Rear Garden: - Approximately 33' x 13'6" The rear garden enjoys a pleasant southerly aspect with a deck adjoining the property leading on to a lawned area surrounded by flower and shrub borders and enclosed by fencing, garden shed.

Parking: - There are two allocated parking spaces.

Other Information -

Tenure: - Freehold

Approximate Age: - 1999

Approximate Area: - 596sqft/55.3sqm (Including store)

Sellers Position: - Looking for forward purchase

Heating: - Gas central heating

Windows: - UPVC double glazed windows

Infant/Junior School: - Knightwood Primary School

Secondary School: - Thornden Secondary School

Local Council: - Test Valley Borough Council - 01264 368000

Council Tax: - Band C

Agents Note: - If you have an offer accepted on a property we will need to, by law, conduct Anti Money Laundering Checks. There is a charge of £60 including vat for these checks regardless of the number of buyers involved.

Property Ref: 6224678_34200243

Share:

Similar Properties

Milford Gardens, Chandler's Ford, Eastleigh

3 Bedroom End of Terrace House | £280,000

A three bedroom end of terrace home constructed in the 1960s and conveniently situated in the centre of Chandler's Ford...

Oaktree Close, Colden Common, Winchester

2 Bedroom Terraced House | £280,000

Situated in a popular cul de sac location in Colden Common, Winchester, this beautifully presented terraced house offers...

Coach Hill Close, South Millers Dale, Chandler's Ford

2 Bedroom End of Terrace House | £275,000

Situated in the popular cul-de-sac of Coach Hill Close in South Millers Dale, this modern end-terrace house presents an...

Tadburn Close, Chandler's Ford

3 Bedroom End of Terrace House | £299,950

A well presented three bedroom end of terrace family home situated in a cul-de-sac location within close proximity to th...

Larkspur Drive, Knightwood Park, Chandler's Ford

2 Bedroom Terraced House | £299,995

A modern two bedroom terraced home presented in excellent condition, situated in a popular cul-de-sac location within th...

Doncaster Road, Eastleigh

3 Bedroom End of Terrace House | £300,000

A three bedroom end of terrace house situated close to Eastleigh Town Centre, which boasts an array of hight street shop...

Sparks Ellison (Chandler's Ford)

Chandler's Ford, Hampshire, SO53 2GJ

02380 255333

How much is your home worth?

Use our short form to request a valuation of your property.

Request a Valuation

Mortgage Calculator

Amount Borrowed: £
Total Amount Repayable: £
Total Monthly Payment: £
©2025 The Guild of Property Professionals. All rights reserved. Terms and Conditions | Privacy Policy | Cookie Policy | Complaints Policy | Members Login
The Guild of Property Professionals Trading Address: 121 Park Lane, London W1K 7AG. GPEA Limited. Registered in England & Wales.  Company No: 02819824.  Registered Office Address: 2 St. Stephen's Court, St. Stephen's Road, Bournemouth, Dorset, England, BH2 6LA.  VAT Registration No: 576 8795 61
Book a Property Valuation Update Cookies Preferences