Pantheon Road, Scantabout, Chandler's Ford

£425,000
SSTC
This property listing is now SSTC

3 Bedroom Detached House for sale in Chandler's Ford

1 3 1

A well presented three bedroom family home situated on the popular Scantabout development and within walking distance and catchment for both Scantabout and Thornden schools. All three double bedrooms have built in wardrobes and share the family bathroom. There is an open plan sitting/dining room running from front to rear and a kitchen/breakfast room across the back of the property. The driveway provides parking for approximately three vehicles and leads to the garage. The property is offered for sale with no forward chain.

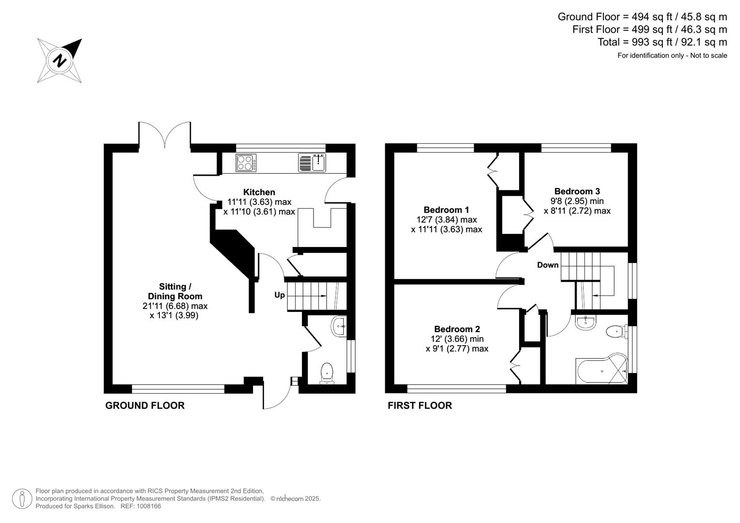
Accommodation -

Ground Floor -

Entrance Hall: - Stairs to first floor.

Sitting/Dining Room: - 21'11" x 13'1" (6.68m x 3.99m)

Kitchen/Breakfast Room: - 11'11" x 11'10" (3.63m x 3.61m) Space and point for cooker, fitted extractor hood, space and plumbing for washing machine, space and plumbing for dishwasher, space for tumble dryer, space for fridge freezer, fitted breakfast bar, under stairs storage cupboard.

First Floor -

Landing: -

Bedroom 1: - 12'7" x 11'11" (3.84m x 3.63m) Built in double wardrobe.

Bedroom 2: - 12' x 9'1" (3.66m x 2.77m) Built in double wardrobe.

Bedroom 3: - 9'8" x 8'11" (2.95m x 2.72m) Built in double wardrobe.

Bathroom: - White suite with chrome fitments comprising bath with shower attachment, wash hand basin, WC.

Outside -

Front: - Area laid to lawn enclosed by hedgerow, driveway providing off-road parking, access to rear garden.

Rear Garden: - Measures approximately 36' x 26' and comprises area laid to lawn, planted beds, paved patio area, outside tap.

Garage: - 17'1" x 8'2". With up and over door, power and light.

Other Information -

Tenure: - Freehold

Approximate Age: - 1970's

Approximate Area: - 92.1sqm/993sqft

Sellers Position: - No forward chain

Heating: - Gas central heating

Windows: - UPVC double glazed windows

Loft Space: - Partially boarded with ladder and light connected

Infant/Junior School: - Scantabout Primary School

Secondary School: - Thornden Secondary School

Council Tax: - Band D

Local Council: - Eastleigh Borough Council - 02380 688000

Agents Note: - If you have an offer accepted on a property we will need to, by law, conduct Anti Money Laundering Checks. There is a charge of £60 including vat for these checks regardless of the number of buyers involved.

Property Ref: 34050857

Share:

Similar Properties

Ormesby Drive, North Millers Dale, Chandlers Ford

3 Bedroom Link Detached House | £425,000

Located in the sought-after area of North Millers Dale, Chandlers Ford, this three-bedroom link-detached home offers a p...

Pine Crescent, Hiltingbury, Chandlers Ford

4 Bedroom Terraced House | Offers in excess of £425,000

A particularly spacious four/five bedroom three storey home situated in a quiet crescent within the heart of Hiltingbury...

Bodycoats Road, Chandler's Ford

4 Bedroom Semi-Detached House | £425,000

Situated Bodycoats Road in Chandler's Ford, this three bedroom semi-detached house offers an excellent opportunity for t...

Pine Road, Hiltingbury, Chandler's Ford

3 Bedroom Semi-Detached House | £435,000

Situated in the highly sought-after area of Hiltingbury, this charming semi-detached house on Pine Road offers an ideal...

Broomhill Way, Boyatt Wood, Eastleigh

4 Bedroom House | £435,000

Located in Boyatt Wood, Eastleigh, this Georgian style semi detached house on Broomhill Way offers spacious and practica...

Boyatt Lane, Otterbourne, Winchester

2 Bedroom Terraced House | £435,000

Located in the picturesque village of Otterbourne, Winchester, this charming terraced cottage, built in 1885, offers a d...

Sparks Ellison (Chandler's Ford)

Chandler's Ford, Hampshire, SO53 2GJ

02380 255333

How much is your home worth?

Use our short form to request a valuation of your property.

Request a Valuation

Mortgage Calculator

Amount Borrowed: £
Total Amount Repayable: £
Total Monthly Payment: £
©2026 The Guild of Property Professionals. All rights reserved. Terms and Conditions | Privacy Policy | Cookie Policy | Complaints Policy | Members Login
The Guild of Property Professionals Trading Address: 121 Park Lane, London W1K 7AG. GPEA Limited. Registered in England & Wales.  Company No: 02819824.  Registered Office Address: 2 St. Stephen's Court, St. Stephen's Road, Bournemouth, Dorset, England, BH2 6LA.  VAT Registration No: 576 8795 61
Book a Property Valuation Update Cookies Preferences