Tadburn Close, Chandler's Ford

£315,000
SSTC
This property listing is now SSTC

3 Bedroom Terraced House for sale in Chandler's Ford

1 3 1

Situated in the popular Tadburn Close in Chandler's Ford, this well-presented three-bed end-terrace home offers generous space throughout and is ideal for anyone looking to move straight in. The ground floor features a bright and welcoming sitting/dining area along with a modern kitchen. Upstairs, you'll find three spacious bedrooms and a well-kept family bathroom. Externally, the property benefits from a garage with a parking space directly in front, along with an attractive frontage and a South/Westerley facing rear garden. To make things even easier, the home is offered with no forward chain.

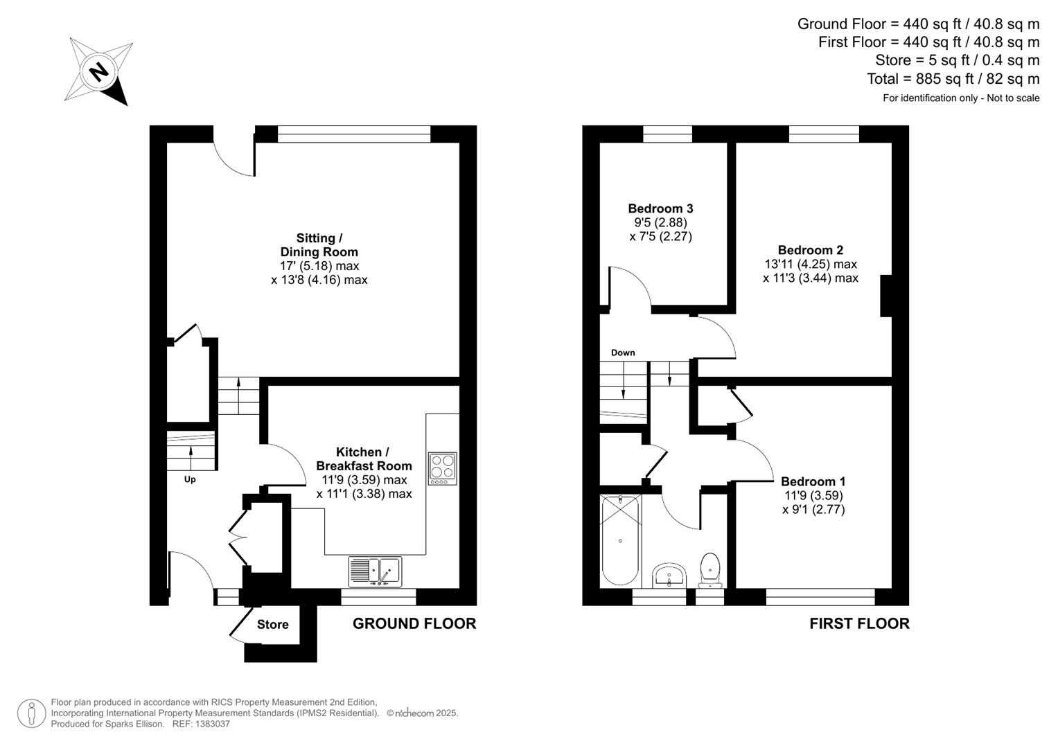
Accommodation -

Ground Floor -

Entrance Hall: - Built in storage cupboard.

Upper Ground Floor -

Kitchen/Dining Room: - 11'9" x 11'1" (3.59m x 3.38m) Range of units including integrated oven and hob, space for fridge/freezer, washing machine, dishwasher.

Lower Ground Floor -

Sitting/Dining Room: - 17' x 13'8" (5.18m x 4.16m) Understairs cupboard and access onto rear garden.

Lower First Floor -

Bedroom 1: - 11'9" x 9'1" (3.59m x 2.77m)

Bedroom 3: - 9'5" x 7'5" (2.88m x 2.27m)

Upper First Floor -

Bedroom 2: - 13'11" x 11'3" (4.25m x 3.44m) Built in cupboard.

Bathroom: - White suite with bath with shower over, wash basin, wc.

Outside -

Rear Garden: - Patio and lawn area with rear access.

Garage: - Parking in front for one car.

Other Information -

Tenure: - Freehold

Approximate Age: - 1970

Approximate Area: - 885sqft/82sqm (Including store)

Sellers Position: - No forward chain

Heating: - Gas central heating

Windows: - UPVC double glazing

Infant/Junior School: - Fryern Infant/Junior School

Secondary School: - Toynbee Secondary School

Local Council: - Eastleigh Borough Council - 02380 688000

Council Tax: - Band C

Agents Note: - If you have an offer accepted on a property we will need to, by law, conduct Anti Money Laundering Checks. There is a charge of £60 including vat for these checks regardless of the number of buyers involved.

Property Ref: 6224678_34319511

Share:

Similar Properties

Peverells Wood Avenue, Peverells Wood, Chandlers Ford

3 Bedroom Terraced House | £300,000

Located in the highly sought-after area of Peverells Wood, this delightful terraced house boasts three well-proportioned...

Doncaster Road, Eastleigh

3 Bedroom End of Terrace House | £300,000

A three bedroom end of terrace house situated close to Eastleigh Town Centre, which boasts an array of hight street shop...

Larkspur Drive, Knightwood Park, Chandler's Ford

2 Bedroom Terraced House | £299,995

A modern two bedroom terraced home presented in excellent condition, situated in a popular cul-de-sac location within th...

Oakmount Road, Chandler's Ford

3 Bedroom Semi-Detached House | £325,000

A conveniently situated three bedroom semi-detached home offered for sale with no forward chain, that would also benefit...

Claudius Gardens, Chandler's Ford

3 Bedroom End of Terrace House | £325,000

A three bedroom end of terrace home offered for sale with no forward chain. The property is conveniently situated within...

Mead Road, Chandler's Ford, Eastleigh

2 Bedroom Semi-Detached Bungalow | £325,000

This delightful two-bedroom semi-detached bungalow presents an excellent opportunity for those seeking a comfortable and...

Sparks Ellison (Chandler's Ford)

Chandler's Ford, Hampshire, SO53 2GJ

02380 255333

How much is your home worth?

Use our short form to request a valuation of your property.

Request a Valuation

Mortgage Calculator

Amount Borrowed: £
Total Amount Repayable: £
Total Monthly Payment: £
©2025 The Guild of Property Professionals. All rights reserved. Terms and Conditions | Privacy Policy | Cookie Policy | Complaints Policy | Members Login
The Guild of Property Professionals Trading Address: 121 Park Lane, London W1K 7AG. GPEA Limited. Registered in England & Wales.  Company No: 02819824.  Registered Office Address: 2 St. Stephen's Court, St. Stephen's Road, Bournemouth, Dorset, England, BH2 6LA.  VAT Registration No: 576 8795 61
Book a Property Valuation Update Cookies Preferences