Saracens Road, Chandler's Ford

£575,000

4 Bedroom Detached House for sale in Chandler's Ford

4 2

Located on Saracens Road in Chandler's Ford, this delightful four-bedroom detached home offers well-balanced accommodation ideal for family living. The ground floor features a spacious open-plan kitchen and breakfast room, designed for everyday use and entertaining, along with a large utility room which accommodates a downstairs shower room with a WC for added practicality. Upstairs, there are four well-proportioned bedrooms arranged to provide comfort and privacy. Outside, the property benefits from a well-maintained, private, landscaped rear garden, suitable for both relaxation and family use. The house is well positioned for local schools, amenities and green spaces, this home has been beautifully presented throughout and ready for any buyer to move straight in.

Accommodation -

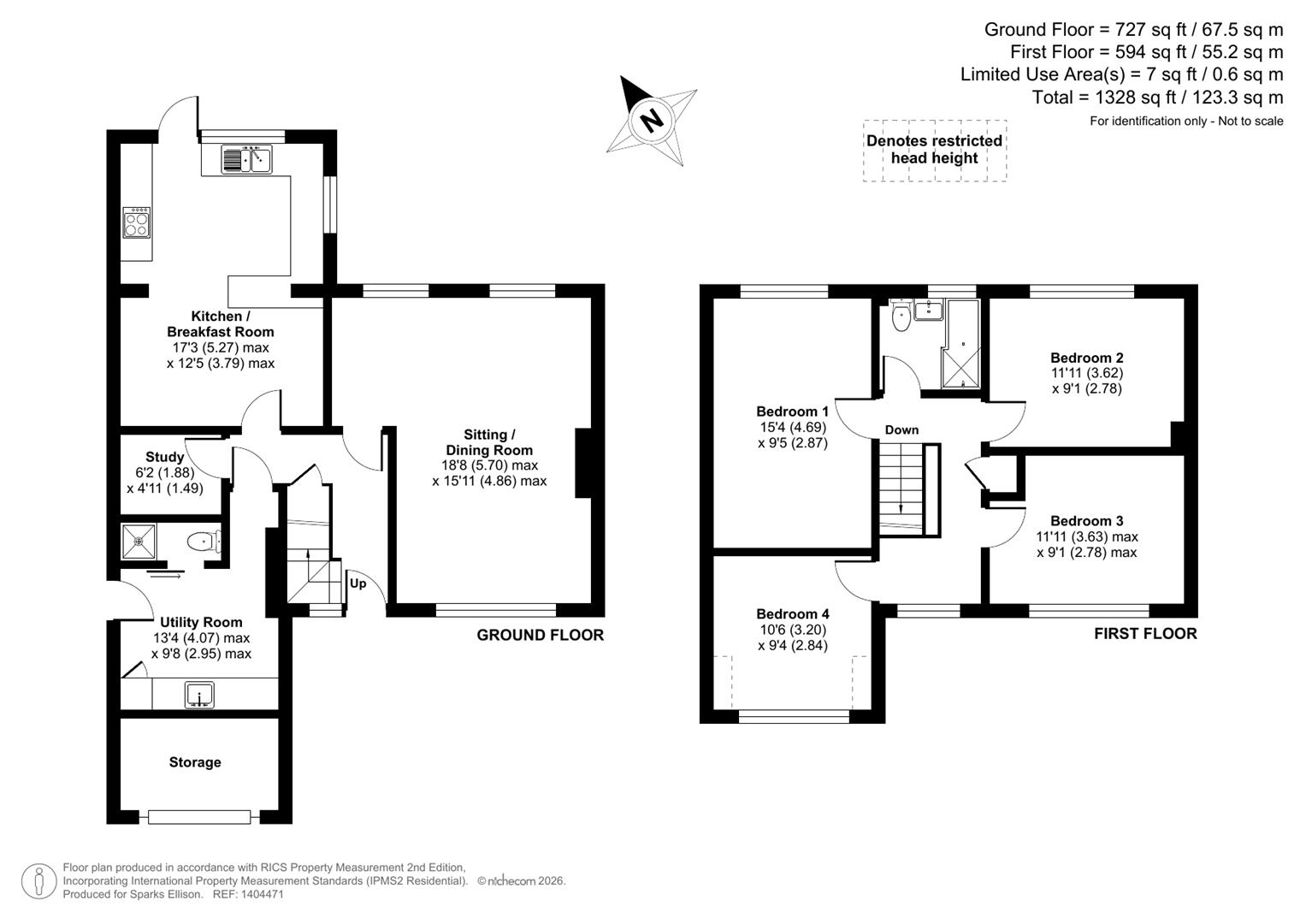
Ground Floor -

Entrance Hall: - Stairs to first floor, with cupboard under.

Sitting/Dining Room: - 18'8" x 15'11" (5.70m x 4.86m) Feature fireplace, built in shelving and cupboards, dual aspect windows.

Kitchen/Breakfast Room: - 17'3" x 12'5" (5.27m x 3.79m) Range of units with space for cooker/hob with extractor hood over, space and plumbing for dishwasher, space for fridge/freezer, sink and breakfast bar, space for sofa or dining table and chairs., door to rear garden

Study: - 6'2" x 4'11" (1.88m x 1.49m)

Utility Room: - 13'4" x 9'8" (4.07m x 2.95m) Range of built in units with sink, space for washing machine and tumble dryer, door to outside.

Shower Room: - White suite comprising a shower cubicle, WC and wash basin.

Storage: -

First Floor -

Landing: - Access to loft space and airing cupboard.

Bedroom 1: - 15'4" x 9'5" (4.69m x 2.87m)

Bedroom 2: - 11'11" x 9'1" (3.62m x 2.78m)

Bedroom 3: - 11'11" x 9'1" (3.63m x 2.78m)

Bedroom 4: - 10'6" x 9'4" (3.20m x 2.84m)

Family Bathroom: - White suite comprising bath with shower over, wash basin with cupboard under and WC.

Outside -

Front: - Paved driveway affording parking for two cars and lawn area.

Rear Garden: - Paved path leading to a barked area at the rear of the property, a raised decking area for entertaining, lawned area leading to a patio area ideal for outdoor furniture, raised flower bed, enclosed by fencing, shed.

Other Information -

Tenure: - Freehold

Approximate Age: - 1970's

Approximate Area: - 123.3sqm/1328sqft

Sellers Position: - Found forward purchase with no onward chain

Heating: - Gas central heating

Windows: - UPVC double glazing

Loft Space: - Partially boarded with light connected

Infant/Junior School: - Scantabout Primary School

Secondary School: - Thornden Secondary School

Local Council: - Eastleigh Borough Council - 02380 688000

Council Tax: - Band E

Agents Note: - If you have an offer accepted on a property we will need to, by law, conduct Anti Money Laundering Checks. There is a charge of £60 including vat for these checks regardless of the number of buyers involved.

Property Ref: 34440886

Share:

Similar Properties

Merrick Way, Valley Park, Chandler's Ford

4 Bedroom Detached House | £575,000

Located in the highly sought-after cul-de-sac of Merrick Way, Valley Park, this charming detached house offers a perfect...

Pennard Way, Valley Park, Chandler's Ford

4 Bedroom Detached House | £565,000

This charming four-bedroom detached family home presents an excellent opportunity for those seeking a comfortable and sp...

Medway Drive, Valley Park, Chandler's Ford

4 Bedroom Detached House | £565,000

Located in a cul-de-sac on the edge of Valley Park, this impressive detached house on Medway Drive offers a perfect blen...

Kenilworth Drive, Eastleigh

4 Bedroom Detached House | £595,000

An immaculate four bedroom detached family home presented in good order throughout. The ground floor comprises a conveni...

Highcliffe Drive, Eastleigh

5 Bedroom Detached House | £595,000

Nestled in the corner of a quiet cul-de-sac location, this well presented five bedroom family home has an adjoining self...

Stourvale Gardens, Chandler's Ford

4 Bedroom Detached House | £600,000

Located in Stourvale Gardens on the south side of Chandler's Ford, this stunning detached house offers a perfect blend o...

Sparks Ellison (Chandler's Ford)

Chandler's Ford, Hampshire, SO53 2GJ

02380 255333

How much is your home worth?

Use our short form to request a valuation of your property.

Request a Valuation

Mortgage Calculator

Amount Borrowed: £
Total Amount Repayable: £
Total Monthly Payment: £
©2026 The Guild of Property Professionals. All rights reserved. Terms and Conditions | Privacy Policy | Cookie Policy | Complaints Policy | Members Login
The Guild of Property Professionals Trading Address: 121 Park Lane, London W1K 7AG. GPEA Limited. Registered in England & Wales.  Company No: 02819824.  Registered Office Address: 2 St. Stephen's Court, St. Stephen's Road, Bournemouth, Dorset, England, BH2 6LA.  VAT Registration No: 576 8795 61
Book a Property Valuation Update Cookies Preferences