Highcliffe Drive, Eastleigh

£595,000
SSTC
This property listing is now SSTC

5 Bedroom Detached House for sale in Eastleigh

2 5 2

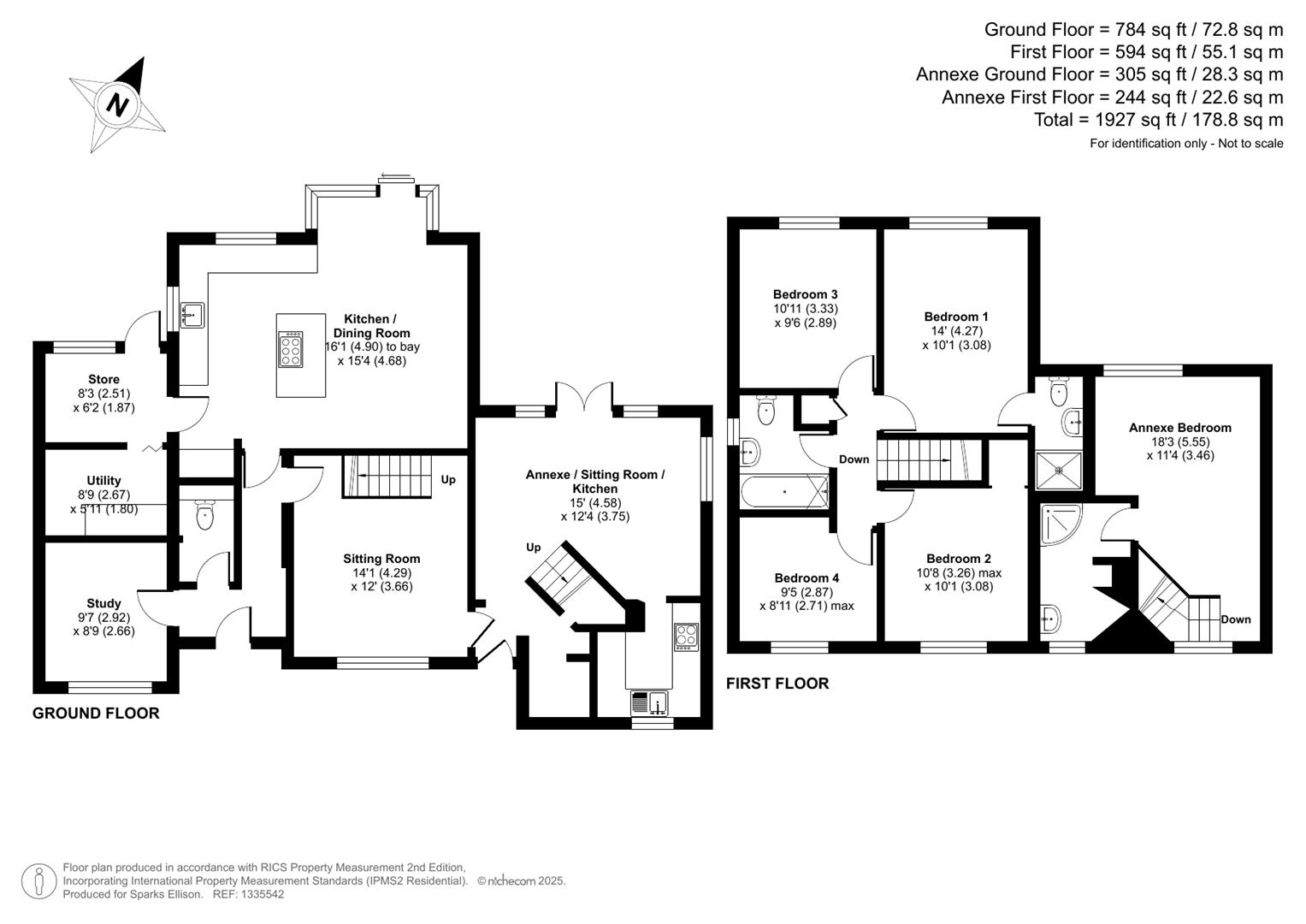
Nestled in the corner of a quiet cul-de-sac location, this well presented five bedroom family home has an adjoining self contained two storey annexe which provides a large sitting room, kitchen, master bedroom and shower room. The main house benefits from spacious living accommodation throughout including a wonderful kitchen/dining/living space overlooking the rear garden, four great sized bedrooms with an additional fifth bedroom downstairs, a study and sizable lounge. Externally the property is very secluded and also benefits from plentiful parking and a double garage. The home would suit multi generational living although the annexe could quite easily be incorporated into the main house if required.

Accommodation -

Ground Floor -

Entrance Hall: -

Cloakroom: - Wc, wash basin.

Sitting Room: - 14'1" x 12' (4.29m x 3.66m) Access to annexe and stairs to first floor.

Kitchen/Dining/Living Space: - 16'1" x 15'4" (4.90m x 4.68m) Modern kitchen comprising range of units, hob and electric oven, integrated dishwasher, integrated fridge., space for dining and sitting area.

Study: - 9'7" x 8'9" (2.92m x 2.66m) Doors to garden and access to loft space.

Utility: - 8'9" x 5'11" ) Space for washing machine and tumble dryer, boiler.

Store: - 8'3" x 6'2" (2.51m x 1.87m)

First Floor -

Landing: - Airing Cupboard.

Bedroom 1: - 14' x 10'1" (4.27m x 3.08m) Access to loft space.

En-Suite: - Suite comprising shower cubicle, wc, wash basin and extractor fan.

Bedroom 2: - 10'8" max x 10'1" (3.26m x 3.08m) Built in wardrobe.

Bedroom 3: - 10'11" x 9'6" (3.33m x 2.89m)

Bedroom 4: - 9'5" x 8'11" (2.87m x 2.71m)

Family Bathroom: - Modern bathroom with ample storage, wc, wash basin, bath with shower over and extractor fan.

Annexe -

Ground Floor -

Entrance Hall: -

Kitchen/Sitting Room: - 15' x 12'4" (4.58m x 3.75m) Sitting Area; Double doors to rear garden. Kitchen Area: Range of units, integrated fridge/freezer, electric hob with extractor hood over, oven.

First Floor -

Annexe Bedroom: - 18'3" x 11'4" (5.55m x 3.46m) Access to loft space.

Shower Room: - Shower cubicle, heated towel rail, wash hand basin with cupboard under, wc.

Bedroom 5: -

Rear Garden: - Approximately 67'8" x 44'5". Adjoining the property is a patio area which leads to area laid to lawn, there is side access on both sides of the property. There is access to wooded area and walkways via rear gate.

Other Information -

Tenure: - Freehold

Approximate Age: - 1970's

Approximate Area: - 1927sqft/178.8sqm (Including annexe)

Sellers Position: - Looking for forward purchase

Heating: - Gas central heating

Windows: - UPVC double glazing

Infant/Junior School: - Shakespeare Infant/Junior School

Secondary School: - Crestwood Community School

Local Council: - Eastleigh Borough Council - 02380 688000

Council Tax: - Band E

Agents Note: - If you have an offer accepted on a property we will need to, by law, conduct Anti Money Laundering Checks. There is a charge of £60 including vat for these checks regardless of the number of buyers involved.

Property Ref: 6224678_34114659

Share:

Similar Properties

Charlecote Drive, North Millers Dale, Chandlers Ford

4 Bedroom Detached House | £565,000

An impressive four bedroom detached family home affording a host of wonderful attributes set within a quiet cul-de-sac i...

Pennard Way, Valley Park, Chandler's Ford

4 Bedroom Detached House | £565,000

This charming four-bedroom detached family home presents an excellent opportunity for those seeking a comfortable and sp...

Sandringham Close, Knightwood Park, Chandler's Ford

4 Bedroom Detached House | £550,000

A modern four bedroom detached family home situated in a popular location on the edge of Knightwood Park benefitting fro...

Stourvale Gardens, Chandler's Ford

4 Bedroom Detached House | £600,000

Located in Stourvale Gardens on the south side of Chandler's Ford, this stunning detached house offers a perfect blend o...

Cranford Gardens, Chandler's Ford

4 Bedroom Detached House | £600,000

Situated in a popular cul-de-sac, this impressive detached house offers a perfect blend of comfort and style. Built in 1...

Pine Road, Chandler's Ford, Eastleigh

4 Bedroom Detached House | £600,000

Located in the desirable area of Pine Road, Hiltingbury, this impressive detached house offers a perfect blend of space,...

Sparks Ellison (Chandler's Ford)

Chandler's Ford, Hampshire, SO53 2GJ

02380 255333

How much is your home worth?

Use our short form to request a valuation of your property.

Request a Valuation

Mortgage Calculator

Amount Borrowed: £
Total Amount Repayable: £
Total Monthly Payment: £
©2025 The Guild of Property Professionals. All rights reserved. Terms and Conditions | Privacy Policy | Cookie Policy | Complaints Policy | Members Login
The Guild of Property Professionals Trading Address: 121 Park Lane, London W1K 7AG. GPEA Limited. Registered in England & Wales.  Company No: 02819824.  Registered Office Address: 2 St. Stephen's Court, St. Stephen's Road, Bournemouth, Dorset, England, BH2 6LA.  VAT Registration No: 576 8795 61
Book a Property Valuation Update Cookies Preferences