The Crossways, Chandler's Ford, Eastleigh

£365,000
SSTC
This property listing is now SSTC

3 Bedroom Semi-Detached House for sale in Chandler's Ford

1 3 2

Located in a popular quiet cul-de-sac on the southern side of Chandler's Ford, this delightful three-bedroom semi-detached house offers a perfect blend of comfort and convenience. The property is well presented throughout, making it an ideal choice for families or those seeking a peaceful retreat. Upon entering, you are welcomed into a spacious sitting room that provides a warm and inviting atmosphere, perfect for relaxation or entertaining guests. The kitchen and dining room are thoughtfully designed, leading seamlessly into a charming conservatory that overlooks the rear garden, allowing for an abundance of natural light and a lovely view of the outdoor space. The first floor comprises three well-proportioned bedrooms, providing ample space for family or guests. The master bedroom benefits from an en-suite, ensuring privacy and convenience, while a well-appointed bathroom serves the other two bedrooms. Additionally, the property features a downstairs cloakroom, enhancing the practicality of the home. Parking is a breeze with space for two cars at the front, making it easy for residents and visitors alike. This semi-detached house is situated in a desirable area with local amenities and excellent transport links nearby. Whether you are looking to settle down or invest, this property is a wonderful opportunity not to be missed.

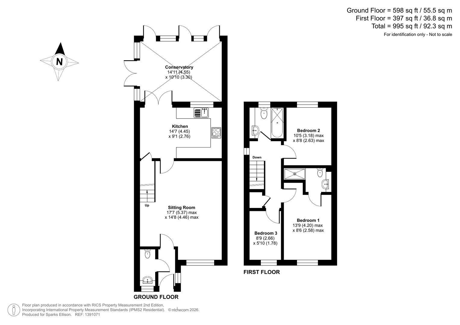
Accommodation -

Ground Floor -

Entrance Hall: -

Cloakroom: - White suite with chrome fitments comprising wash hand basin, w.c.

Sitting Room: - 17'7" x 14'8" (5.37m x 4.46m) Stairs to first floor.

Kitchen/Breakfast Room: - 14'7" x 9'1" (4.45m x 2.76m) Range of units, built in oven, built in four ring gas hob, integrated extractor hood, space and plumbing for washing machine, space and plumbing for dishwasher, space for fridge freezer, space for table and chairs, boiler in cupboard, understairs storage cupboard.

Conservatory: - 14'11" x 10'10" (4.55m x 3.30m) Door to rear garden.

First Floor -

Landing: - Access to loft space, built in airing cupboard.

Bedroom 1: - 13'9"max x 8'6"max (4.20m x 2.58m)

En-Suite: - White suite with chrome fitments comprising shower in cubicle, wash hand basin, w.c.

Bedroom 2: - 10'5" x 8'8" (3.18m x 2.63m)

Bedroom 3: - 8'9" x 5'10" (2.66m x 1.78m)

Bathroom: - White suite with chrome fitments comprising bath with shower over, wash hand basin with cupboard under, w.c.

Outside -

Front: - Side pedestrian access to rear garden, driveway providing off road parking for approximately two vehicles, area laid to lawn.

Rear Garden: - Measures approximately 22' x 21' from conservatory and comprises area laid to timber deck, area laid to lawn, further area laid to timber deck, garden shed with power and entry to front and rear.

Agents Note: - The Crossways is a private road and as such the residents contribute approximately £300 Per annum (25/26) for its upkeep.

Other Information -

Tenure: - Freehold

Approximate Age: - 2006

Approximate Area: - 995sqft/92.3sqm

Sellers Position: - Looking for forward purchase

Heating: - Gas central heating

Windows: - UPVC double glazing

Loft Space: - Partially board with ladder and light connected

Infant/Junior School: - Fryern Infant/Junior School

Secondary School: - Toynbee Secondary School

Local Council: - Eastleigh Borough Council - 02380 688000

Council Tax: - Band D

Agents Note: - There is a payment of approximate £300 per annum for the upkeep of the private road.

Agents Notes: - If you have an offer accepted on a property we will need to, by law, conduct Anti Money Laundering Checks. There is a charge of £20 + vat per person for these checks.

Property Ref: 34452757

Share:

Similar Properties

Ringwood Drive, North Baddesley

3 Bedroom Semi-Detached House | £365,000

Situated on the charming Ringwood Drive in North Baddesley, this beautifully presented semi-detached house offers a deli...

Hut Farm Place, Chandler's Ford

3 Bedroom Terraced House | £365,000

Welcome to this exceptionally spacious three-storey townhouse located in Hut Farm Place, Chandler's Ford. This impressiv...

Barn Piece, Knightwood Park, Chandler's Ford

3 Bedroom End of Terrace House | £365,000

This well presented end terrace house offers a delightful blend of comfort and convenience. With three spacious bedrooms...

Fircroft Drive, Chandler's Ford

3 Bedroom Link Detached House | £369,950

Located in a desirable area of Chandler's Ford, this charming house on Fircroft Drive offers a delightful blend of comfo...

Windsor Gate, Eastleigh

3 Bedroom Link Detached House | £375,000

A delightful 3 bedroom detached family home presented in excellent condition throughout affording a number of wonderful...

Bodycoats Road, Chandler's Ford

3 Bedroom Semi-Detached House | £375,000

Located on Bodycoats Road, this delightful semi-detached family home benefits from three well-proportioned bedrooms alon...

Sparks Ellison (Chandler's Ford)

Chandler's Ford, Hampshire, SO53 2GJ

02380 255333

How much is your home worth?

Use our short form to request a valuation of your property.

Request a Valuation

Mortgage Calculator

Amount Borrowed: £
Total Amount Repayable: £
Total Monthly Payment: £
©2026 The Guild of Property Professionals. All rights reserved. Terms and Conditions | Privacy Policy | Cookie Policy | Complaints Policy | Members Login
The Guild of Property Professionals Trading Address: 121 Park Lane, London W1K 7AG. GPEA Limited. Registered in England & Wales.  Company No: 02819824.  Registered Office Address: 2 St. Stephen's Court, St. Stephen's Road, Bournemouth, Dorset, England, BH2 6LA.  VAT Registration No: 576 8795 61
Book a Property Valuation Update Cookies Preferences