Hut Farm Place, Chandler's Ford

£365,000
SSTC
This property listing is now SSTC

3 Bedroom Terraced House for sale in Chandler's Ford

1 3 2

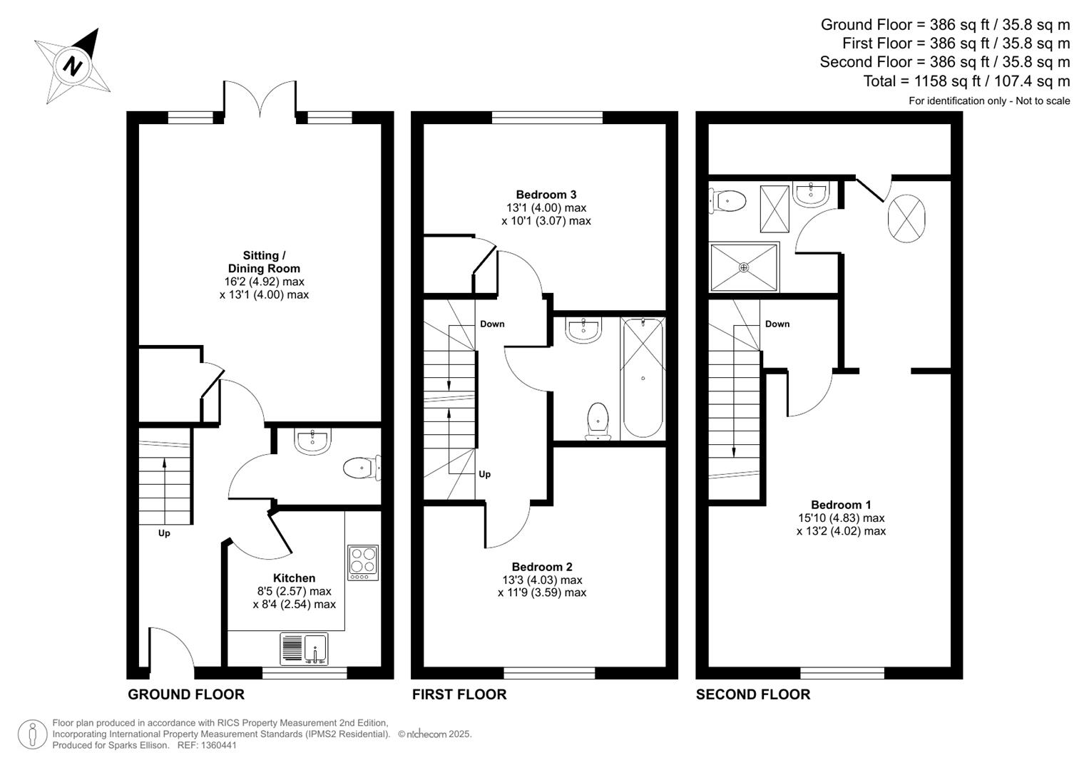
Welcome to this exceptionally spacious three-storey townhouse located in Hut Farm Place, Chandler's Ford. This impressive property boasts three generously sized double bedrooms, providing ample space for family living or accommodating guests. The master bedroom features a dressing room and en-suite bathroom, ensuring privacy and convenience, while a further well-appointed bathroom serves the other bedrooms. On the ground floor, you will find a welcoming sitting room, perfect for relaxation and entertaining, alongside a fully fitted kitchen that is both functional and stylish. This space is ideal for those who enjoy cooking and socialising, making it the heart of the home. The property also benefits from a driveway and two additional allocated parking spaces, a rare find in such a convenient location. Residents will appreciate the ease of access to local shops, as well as bus services that connect to Southampton and Winchester, making commuting and daily errands a breeze. This townhouse is not only a very comfortable family home but also offers a lifestyle of convenience, with everything you need within walking distance.

Accommodation -

Ground Floor -

Reception Hall: - Stairs to first floor.

Sitting Room: - 16'2" max x 13'1" max (4.92m x 4.00m)

Kitchen: - 8'5"max x 8'4"max (2.57m x 2.54m) Range of fitted units, built in electric double oven and electric hob with extractor hood over, integrated fridge/freezer, dishwasher and washing machine, boiler.

Cloakroom: - Wash basin, wc.

First Floor -

Landing: - Stairs to 2nd floor.

Bedroom 2: - 13'3"max x 11'9"max (4.03m x 3.59m)

Bedroom 3: - 13'1"max x 10'1"max (4.00m x 3.07m) Airing cupboard

Bathroom: - Suite comprising bath with mixer tap and shower attachment, wash basin, WC.

Second Floor -

Landing: -

Bedroom 1: - 15'10"max x 13'2"max (4.83m x 4.02m)

Dressing Room: - Ample space for wardrobes, access to eaves storage.

En-Suite Shower Room: - Suite comprising shower cubicle, wash basin, WC, tiled floor.

Outside -

Front: - To the front of the property is parking for one vehicle with pathway to front door.

Rear Garden: - Approximately 36' x 14'. Adjoining the house is a patio leading onto a lawned area enclosed by fencing, rear pedestrian access to further parking.

Parking: - There are two further allocated parking spaces at the end of the terrace.

Other Information -

Tenure: - Freehold

Approximate Age: - 2011

Approximate Area: - 1158sqft/107.4sqm

Sellers Position: - Looking for forward purchase

Heating: - Gas central heating

Windows: - UPVC double glazing

Infant/Junior School: - Fryern Infant/Junior School

Secondary School: - Toynbee Secondary School

Local Council: - Eastleigh Borough Council - 02380 688000

Council Tax: - Band C

Agents Note: - If you have an offer accepted on a property we will need to, by law, conduct Anti Money Laundering Checks. There is a charge of £60 including vat for these checks regardless of the number of buyers involved.

Property Ref: 34207105

Share:

Similar Properties

The Crossways, Chandler's Ford, Eastleigh

3 Bedroom Semi-Detached House | £365,000

Located in a popular quiet cul-de-sac on the southern side of Chandler's Ford, this delightful three-bedroom semi-detach...

Ringwood Drive, North Baddesley

3 Bedroom Semi-Detached House | £365,000

Situated on the charming Ringwood Drive in North Baddesley, this beautifully presented semi-detached house offers a deli...

Barn Piece, Knightwood Park, Chandler's Ford

3 Bedroom End of Terrace House | £365,000

This well presented end terrace house offers a delightful blend of comfort and convenience. With three spacious bedrooms...

Fircroft Drive, Chandler's Ford

3 Bedroom Link Detached House | £369,950

Located in a desirable area of Chandler's Ford, this charming house on Fircroft Drive offers a delightful blend of comfo...

Windsor Gate, Eastleigh

3 Bedroom Link Detached House | £375,000

A delightful 3 bedroom detached family home presented in excellent condition throughout affording a number of wonderful...

Bodycoats Road, Chandler's Ford

3 Bedroom Semi-Detached House | £375,000

Located on Bodycoats Road, this delightful semi-detached family home benefits from three well-proportioned bedrooms alon...

Sparks Ellison (Chandler's Ford)

Chandler's Ford, Hampshire, SO53 2GJ

02380 255333

How much is your home worth?

Use our short form to request a valuation of your property.

Request a Valuation

Mortgage Calculator

Amount Borrowed: £
Total Amount Repayable: £
Total Monthly Payment: £
©2026 The Guild of Property Professionals. All rights reserved. Terms and Conditions | Privacy Policy | Cookie Policy | Complaints Policy | Members Login
The Guild of Property Professionals Trading Address: 121 Park Lane, London W1K 7AG. GPEA Limited. Registered in England & Wales.  Company No: 02819824.  Registered Office Address: 2 St. Stephen's Court, St. Stephen's Road, Bournemouth, Dorset, England, BH2 6LA.  VAT Registration No: 576 8795 61
Book a Property Valuation Update Cookies Preferences