Primrose Close, Chandler's Ford, Eastleigh

£450,000
SSTC
This property listing is now SSTC

3 Bedroom Detached House for sale in Chandler's Ford

2 3 2

Located in the highly sought-after location of Primrose Close in Valley Park, this attractively designed detached house offers a perfect blend of comfort and convenience. Situated in a quiet cul-de-sac, this property is ideal for families and is within walking distance of essential amenities. The home boasts two spacious reception rooms, providing excellent living space with three comfortable bedrooms and two bathrooms. One of the standout features of this delightful home is its west-facing garden, which invites plenty of natural light throughout and offers a lovely outdoor space. The property is ideally situated for local schools, leisure facilities, woodland walks and nearby shops with access to the motorway and train stations within easy reach.

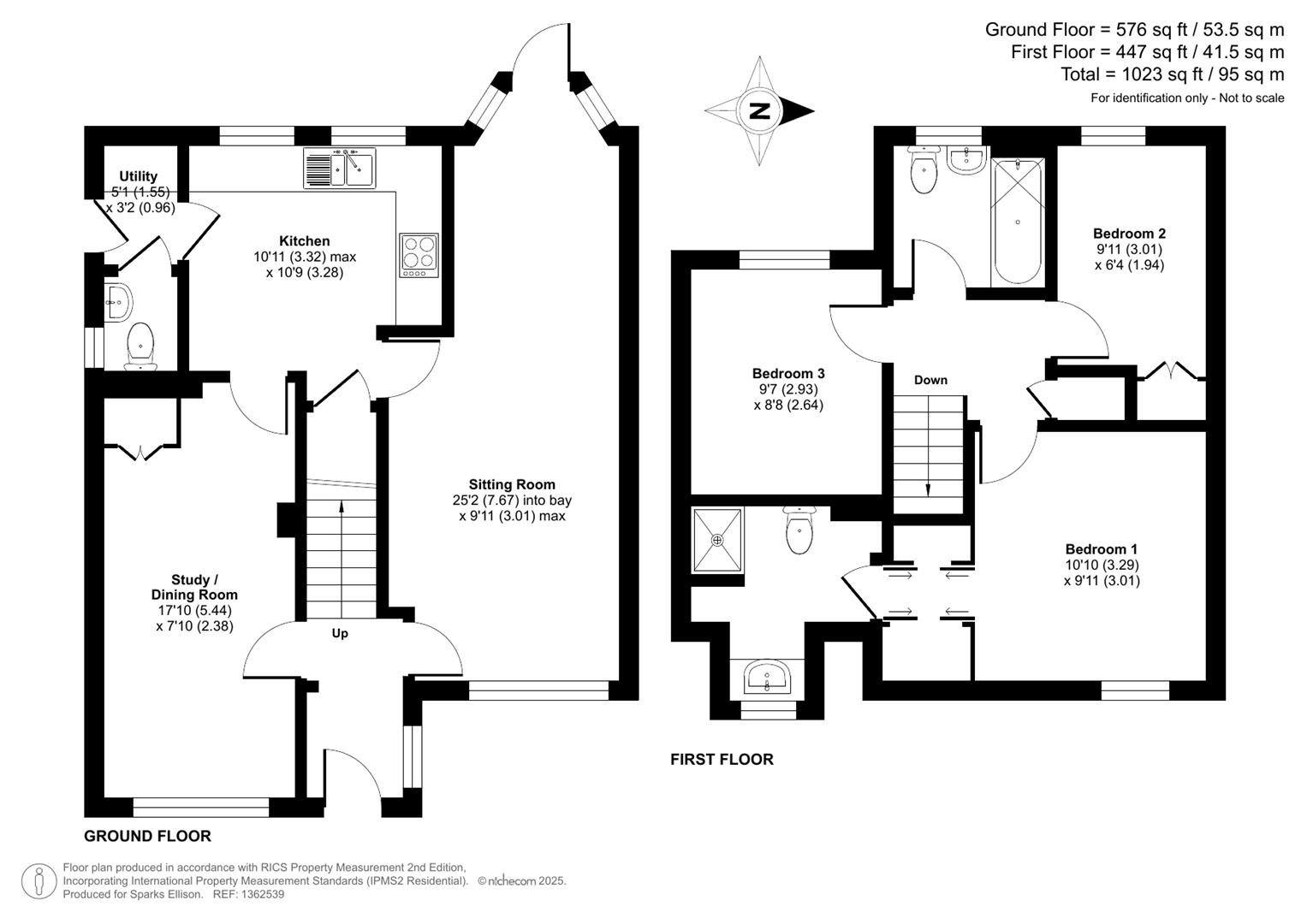
Accommodation -

Ground Floor -

Reception Hall: - Stairs to first floor.

Sitting/Dining Room: - 25'2" x 9'11" (7.67m x 3.01m) Bay window and door to rear garden.

Kitchen: - 10'11" x 10'9" (3.32m x 3.28m) Range of units, electric oven, gas hob with extractor hood over, space and plumbing for appliances.

Utility Room: - 5'1" x 3'2" (1.55m x 0.96) Space and plumbing for washing machine, boiler door to outside.

Cloakroom: - Wash basin, WC.

Dining Room/Study: - 17'10" x 7'10" (5.44m x 2.38m) Storage cupboard.

First Floor -

Landing: - Hatch to loft space, airing cupboard.

Bedroom 1: - 10'10" x 9'11" (3.29m x 3.01m) Two fitted wardrobes.

En-Suite Shower Room: - Suite comprising shower cubicle, wash basin with cupboard under, WC.

Bedroom 2: - 9'11" x 6'4" (3.01m x 1.94m)

Bedroom 3: - 9'7" x 8'8" (2.93m x 2.64m) Built in wardrobe.

Bathroom: - suite comprising bath with mixer tap and shower attachment, wash basin, WC.

Outside -

Front: - Double width driveway affording parking for two vehicles with adjacent paved area enclosed by hedging, side access to rear garden.

Rear Garden: - An attractive feature of the property measuring approximately 34' x 27' affording a pleasant westerly aspect. A patio joins the house leading onto a lawned area enclosed by walling and fencing, garden shed.

Other Information -

Tenure: - Freehold

Approximate Age: - 1996

Approximate Area: - 95sqm/1023sqft

Sellers Position: - Looking for forward purchase

Heating: - Gas central heating

Windows: - UPVC double glazed windows

Primary Loft Space: - Partially boarded with ladder and light connected.

Secondary Loft Space: - Boarded for additional storage

Infant/Junior School: - St. Francis CE Primary/Knightwood Primary School

Secondary School: - Toynbee Secondary School

Council Tax: - Band E

Local Council: - Test Valley Borough Council - 01264 368000

Agents Note: - If you have an offer accepted on a property we will need to, by law, conduct Anti Money Laundering Checks. There is a charge of £60 including vat for these checks regardless of the number of buyers involved.

Property Ref: 6224678_34231420

Share:

Similar Properties

Thirlstane Firs, Valley Park, Chandler's Ford

3 Bedroom Detached House | £450,000

An excellent three bedroom detached home offered for sale with no forward chain, situated within a quiet cul-de-sac off...

Brownhill Road, Chandler's Ford

3 Bedroom Semi-Detached House | Offers in excess of £450,000

A stunning three bedroom semi-detached house presented in excellent condition throughout and pleasantly situated in an e...

Thirlstane Firs, Valley Park, Chandler's Ford

3 Bedroom Detached House | £450,000

A delightful three bedroom detached home situated in a quiet cul-de-sac on the edge of Valley Park offered for sale with...

Flexford Close, Parish Of Ampfield, Chandler's Ford

4 Bedroom Detached House | £465,000

A well proportioned four bedroom detached family home situated in a popular cul de sac location and located within catch...

Highcliffe Drive, Boyatt Wood, Eastleigh

4 Bedroom House | £465,000

Constructed in 1980, this wonderful four bedroom detached family home is situated in a pleasant cul de sac location and...

George Raymond Road, Eastleigh

4 Bedroom Detached House | £465,000

Situated in George Raymond Road, Eastleigh, this splendid four-bedroom detached house offers the perfect blend of comfor...

Sparks Ellison (Chandler's Ford)

Chandler's Ford, Hampshire, SO53 2GJ

02380 255333

How much is your home worth?

Use our short form to request a valuation of your property.

Request a Valuation

Mortgage Calculator

Amount Borrowed: £
Total Amount Repayable: £
Total Monthly Payment: £
©2025 The Guild of Property Professionals. All rights reserved. Terms and Conditions | Privacy Policy | Cookie Policy | Complaints Policy | Members Login
The Guild of Property Professionals Trading Address: 121 Park Lane, London W1K 7AG. GPEA Limited. Registered in England & Wales.  Company No: 02819824.  Registered Office Address: 2 St. Stephen's Court, St. Stephen's Road, Bournemouth, Dorset, England, BH2 6LA.  VAT Registration No: 576 8795 61
Book a Property Valuation Update Cookies Preferences