Charter Street, Chatham, ME4

£200,000
SSTC
This property listing is now SSTC

2 Bedroom Terraced House for sale in Chatham

1 2 1
  • No Onward Chain
  • Ideal for investment or First Time Buyer
  • Two Reception Rooms
  • New Fitted Kitchen
  • Two Double Bedrooms
  • Walking Distance to Chatham Station
  • Cellar

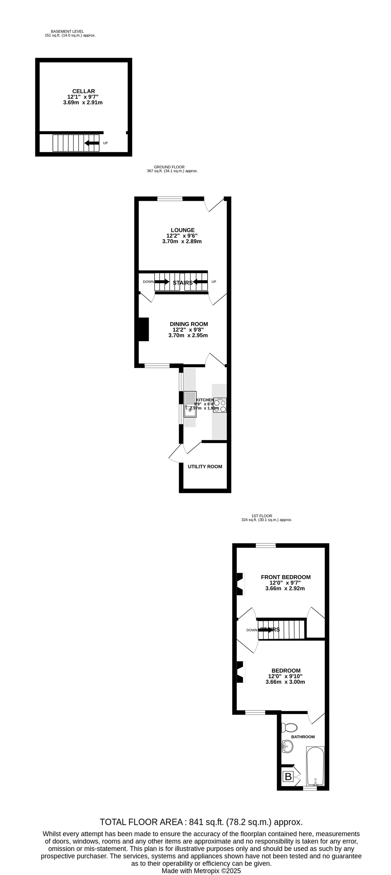
An opportunity for the first time buyer or investor is this two double bedroom terraced home within walking distance to the Chatham Train Station and Town Centre. The property has been refurbished with new kitchen and carpets throughout and is ready to move into.

Stepping inside you are welcomed to the lounge which continues through to the dining area, with a door leading to the cellar which is an ideal place for storage. The kitchen is fitted with modern wall and base units to include integrated oven and hob and integrated fridge freezer. Moving upstairs you have two double bedrooms with feature wrought iron fireplaces. Also with a family bathroom. Outside is an enclosed rear garden with fence surround. Please call the Walderslade Sales Team for further details.Basement Level

Cellar
12' 1" x 9' 7" (3.68m x 2.92m)

Ground Floor

Lounge
12' 2" x 9' 6" (3.71m x 2.90m)

Dining Room
12' 2" x 9' 8" (3.71m x 2.95m)

Kitchen
9' 9" x 6' 4" (2.97m x 1.93m)

Utility Room

First Floor

Bedroom 1
12' 0" x 9' 7" (3.66m x 2.92m)

Bedroom 2
12' 0" x 9' 10" (3.66m x 3.00m)

Bathroom

Important Information

  • This is a Freehold property.

Property Ref: 28936149

Share:

Similar Properties

Hero Walk, Rochester, ME1

3 Bedroom Terraced House | £200,000

A rare opportunity to purchase a house in Rochester requiring significant refurbishment but when done would make a lovel...

Gordon Road, Chatham, ME4

1 Bedroom Semi-Detached Bungalow | £200,000

Being offered with no forward chain is this well maintained one bedroom semi detached bungalow. This is a great opportun...

Rudge Close, Lordswood, Chatham, ME5

1 Bedroom Maisonette | Offers in excess of £185,000

A great opportunity for the first time buyer or investor is this one bedroom first floor maisonette. Upon entering the p...

Tay Close, Lordswood , ME5

1 Bedroom Semi-Detached House | £210,000

Being offered with no forward chain and presents an excellent opportunity for the first time buyer or those looking to d...

Bright Road, Chatham, ME4

3 Bedroom Terraced House | £220,000

Being offered with no onward chain is this opportunity for the investor or first time buyer. On entering the first floor...

Silverweed Road, Chatham, ME5

2 Bedroom Terraced House | £245,000

Being offered with no forward chain is this two double bedroom extended house. This is an opportunity to put your own cr...

Greyfox Sales & Lettings (Walderslade)

Walderslade Village Centre, Walderslade, Walderslade, Kent, ME5 9LR

01634 672227

How much is your home worth?

Use our short form to request a valuation of your property.

Request a Valuation

Mortgage Calculator

Amount Borrowed: £
Total Amount Repayable: £
Total Monthly Payment: £
©2026 The Guild of Property Professionals. All rights reserved. Terms and Conditions | Privacy Policy | Cookie Policy | Complaints Policy | Members Login
The Guild of Property Professionals Trading Address: 121 Park Lane, London W1K 7AG. GPEA Limited. Registered in England & Wales.  Company No: 02819824.  Registered Office Address: 2 St. Stephen's Court, St. Stephen's Road, Bournemouth, Dorset, England, BH2 6LA.  VAT Registration No: 576 8795 61
Book a Property Valuation Update Cookies Preferences