Bright Road, Chatham, ME4

£220,000
SSTC
This property listing is now SSTC

3 Bedroom Terraced House for sale in Chatham

1 3 1
  • No Onward Chain
  • Three Double Bedrooms
  • New Fitted Kitchen
  • Downstairs Bathroom
  • Close to local Amenities
  • Cellar
  • Separate Dining Room
  • Lounge

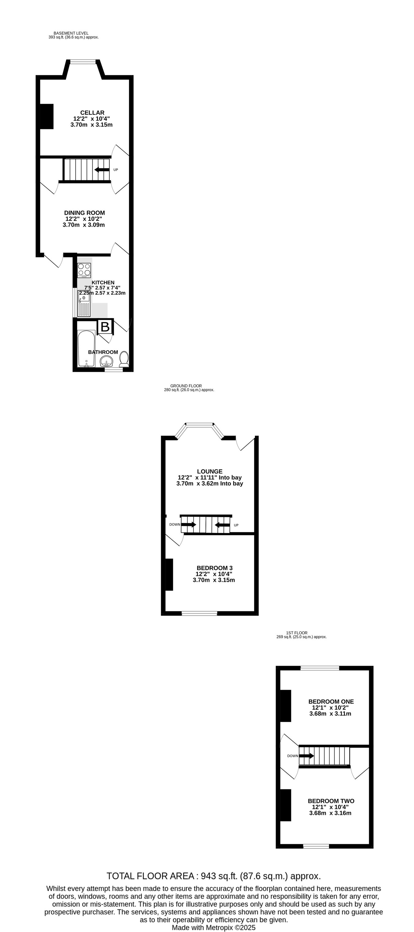
Being offered with no onward chain is this opportunity for the investor or first time buyer. On entering the first floor, you have the lounge and bedroom three. To the ground floor you are welcomed to the dining room and a new modern fitted kitchen with a range of fitted wall and base units. It also offers a cellar which is a great space for storage or could be utilised as an additional room subject to being renovated. Moving upstairs to the second floor you have again two double bedrooms and outside you have an enclosed rear garden.Basement Level

Cellar
12' 2" x 10' 4" (3.71m x 3.15m)

Dining Room
12' 2" x 10' 2" (3.71m x 3.10m)

Kitchen

Bathroom

Ground Floor

Lounge
12' 2" x 11' 11" (3.71m x 3.63m)

Bedroom 3
12' 2" x 10' 4" (3.71m x 3.15m)

First Floor

Bedroom 1
12' 1" x 10' 2" (3.68m x 3.10m)

Bedroom 2
12' 1" x 10' 4" (3.68m x 3.15m)

Important Information

  • This is a Freehold property.

Property Ref: 28720922

Share:

Similar Properties

Charter Street, Chatham, ME4

2 Bedroom Terraced House | £200,000

An opportunity for the first time buyer or investor is this two double bedroom terraced home within walking distance to...

Hero Walk, Rochester, ME1

3 Bedroom Terraced House | £200,000

A rare opportunity to purchase a house in Rochester requiring significant refurbishment but when done would make a lovel...

Diana Road, Chatham, ME4

1 Bedroom Apartment | Offers Over £170,000

Situated on a modern development and within walking distance to Chatham Town Centre, this ground floor apartment is in e...

Ordnance Street, Chatham, ME4

2 Bedroom Terraced House | £245,000

An ideal first time buyers and investment property, located in a prime location as it offers excellent access to local a...

Silverweed Road, Chatham, ME5

2 Bedroom Terraced House | £245,000

Being offered with no forward chain is this two double bedroom extended house. This is an opportunity to put your own cr...

Gladstone Road, Penenden Heath, Maidstone, ME14

2 Bedroom Terraced House | Offers in excess of £250,000

Being offered with no forward chain and within walking distance to Maidstone is this charming two bedroom Victorian hous...

Greyfox Sales & Lettings (Walderslade)

Walderslade Village Centre, Walderslade, Walderslade, Kent, ME5 9LR

01634 672227

How much is your home worth?

Use our short form to request a valuation of your property.

Request a Valuation

Mortgage Calculator

Amount Borrowed: £
Total Amount Repayable: £
Total Monthly Payment: £
©2026 The Guild of Property Professionals. All rights reserved. Terms and Conditions | Privacy Policy | Cookie Policy | Complaints Policy | Members Login
The Guild of Property Professionals Trading Address: 121 Park Lane, London W1K 7AG. GPEA Limited. Registered in England & Wales.  Company No: 02819824.  Registered Office Address: 2 St. Stephen's Court, St. Stephen's Road, Bournemouth, Dorset, England, BH2 6LA.  VAT Registration No: 576 8795 61
Book a Property Valuation Update Cookies Preferences