Silverweed Road, Chatham, ME5

£250,000
SSTC
This property listing is now SSTC

2 Bedroom Terraced House for sale in Chatham

1 2 1
  • No Forward Chain
  • Two Double Bedrooms
  • Requires Updating
  • Extended
  • Garage
  • Close to Local Schools and Amenities
  • Driveway

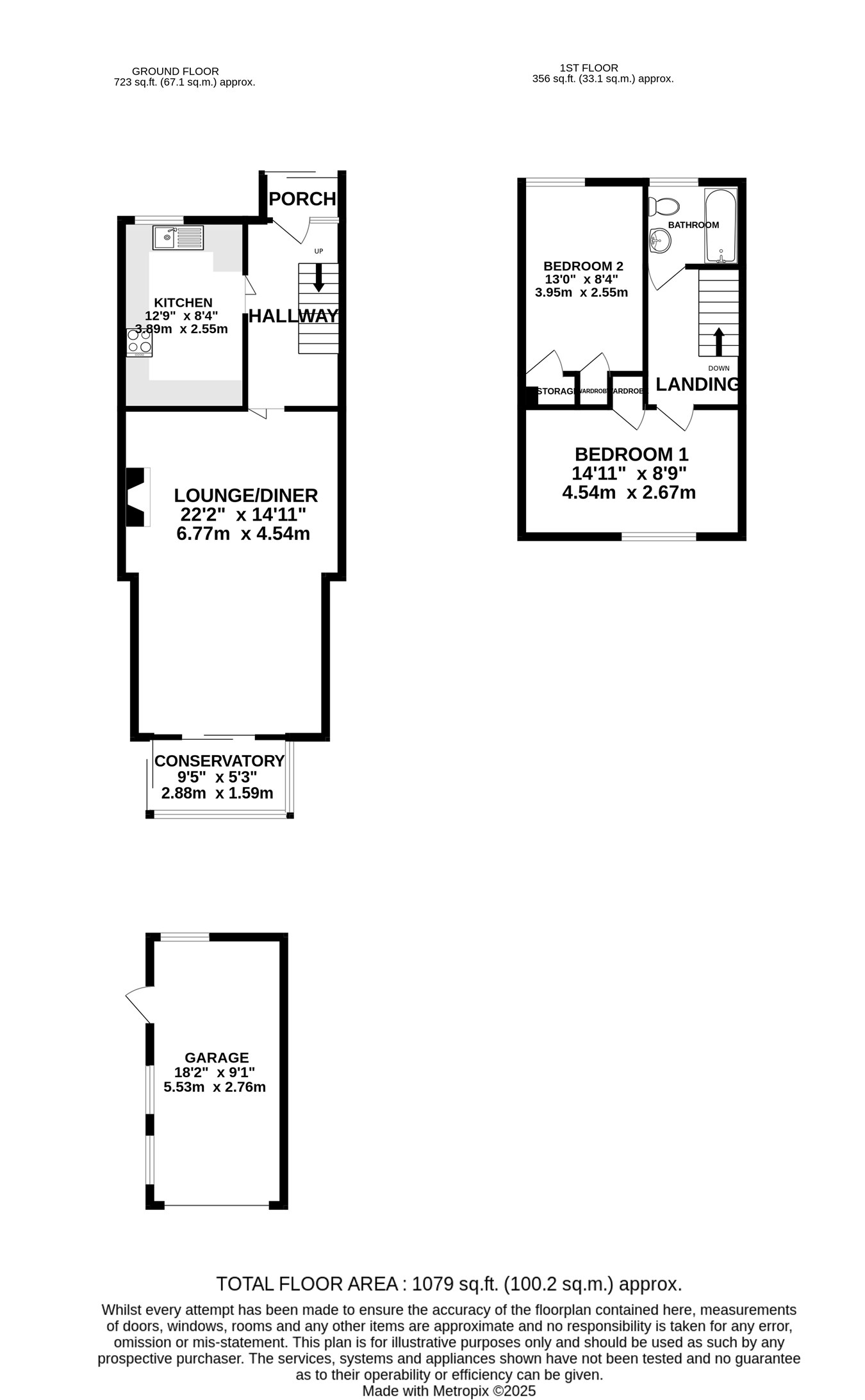
Being offered with no forward chain is this two double bedroom extended house. This is an opportunity to put your own creative stamp and make a lovely home. The accommodation comprises of: entrance hall leading to the kitchen/diner with a range of fitted wall and base units. This continues through to a good size lounge/family room which is a lovely space, leading to the conservatory. Upstairs there are two double bedrooms with fitted wardrobes and a family bathroom. Externally you have an enclosed garden with rear access to the garage. This has the benefit of parking to the front. Please call the Walderslade Sales Team for further details.

Ground Floor


Porch


Hallway


Kitchen
12' 9" x 8' 4" (3.89m x 2.54m)

Lounge/Diner
22' 2" x 14' 11" (6.76m x 4.55m)

Conservatory
9' 5" x 5' 3" (2.87m x 1.60m)

First Floor


Bedroom 1
14' 11" x 8' 9" (4.55m x 2.67m)

Bedroom 2
13' 0" x 8' 4" (3.96m x 2.54m)

Bathroom


Important Information

  • This is a Freehold property.

Property Ref: 5093134_28905265

Share:

Similar Properties

Madden Avenue, Davis Estate, ME5

2 Bedroom Terraced House | Offers Over £250,000

Being offered with no forward chain is this two double bedroom terraced home. This will be an ideal purchase for the fir...

Barnfield, Chatham, ME5

2 Bedroom Terraced House | Offers Over £250,000

This two bedroom house has a cottage feel and the added advantage of being sold with no chain. If you are looking for a...

Farley Close, Lordswood, Chatham, ME5

2 Bedroom Ground Maisonette | Offers in excess of £240,000

An ideal home for the first time buyer or investor to purchase this two bedroom ground floor maisonette. The property ha...

Clover Bank View, Walderslade, ME5

2 Bedroom Terraced House | Offers Over £260,000

This two bedroom terrace house would make an ideal purchase for first time buyers or investors. The current vendor has r...

Flamingo Close, Walderslade, Chatham, ME5

2 Bedroom Semi-Detached House | £260,000

This is an opportunity for the first time buyer to purchase this lovely two bedroom semi detached home. The current owne...

Tuscan Drive, Lordswood, Chatham, ME5

2 Bedroom Terraced House | Offers Over £270,000

This lovely house would make a super purchase for the first time buyer or investor due to its excellent order throughout...

Greyfox Sales & Lettings (Walderslade)

Walderslade Village Centre, Walderslade, Walderslade, Kent, ME5 9LR

01634 672227

How much is your home worth?

Use our short form to request a valuation of your property.

Request a Valuation

Mortgage Calculator

Amount Borrowed: £
Total Amount Repayable: £
Total Monthly Payment: £
©2025 The Guild of Property Professionals. All rights reserved. Terms and Conditions | Privacy Policy | Cookie Policy | Complaints Policy | Members Login
The Guild of Property Professionals Trading Address: 121 Park Lane, London W1K 7AG. GPEA Limited. Registered in England & Wales.  Company No: 02819824.  Registered Office Address: 2 St. Stephen's Court, St. Stephen's Road, Bournemouth, Dorset, England, BH2 6LA.  VAT Registration No: 576 8795 61
Book a Property Valuation Update Cookies Preferences