Ordnance Street, Chatham, ME4

£245,000

2 Bedroom Terraced House for sale in Chatham

1 2 1
  • Two Double Bedrooms
  • Walking Distance to Mainline Train Station
  • Ideal First Time Buy or Buy to Let
  • Modern Fitted Kitchen/Diner
  • Enclosed Rear Garden
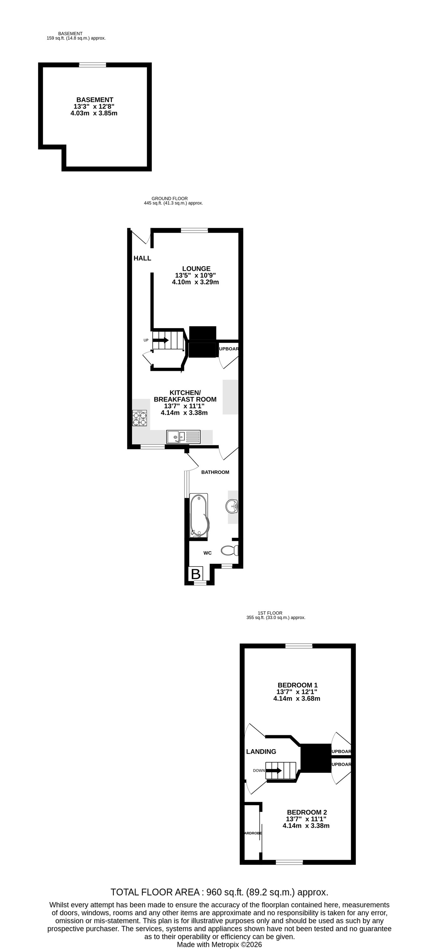
  • Basement

An ideal first time buyers and investment property, located in a prime location as it offers excellent access to local amenities and town centre. One of Chatham's standout features includes a mainline railway station which is within walking distance, with the high speed connections getting you to London in around 45 minutes. There is also a bus station a short walk away as well as easy access to motorway networks.

On entering you are welcomed to an entrance hallway with the lounge to the front and stairs to the first floor. Continuing through you have the modern fitted kitchen/diner with a range of fitted wall and base units, integrated double oven and gas hob with extractor over and a modern fitted bathroom with single basin set in vanity unit and drawer combination. Upstairs you have two good size bedrooms. Outside the garden has low maintenance in mind, and is enclosed with fence and wall surround with patio and artificial lawn and shrub borders. Please call the sales team for further details.Basement
13' 3" x 12' 8" (4.04m x 3.86m)

Ground Floor

Lounge
13' 5" x 10' 9" (4.09m x 3.28m)

Kitchen/Diner
13' 7" x 11' 1" (4.14m x 3.38m)

Bathroom/Utility
15' 3" x 6' 1" (4.65m x 1.85m)

First Floor

Bedroom 1
13' 7" x 12' 1" (4.14m x 3.68m)

Bedroom 2
13' 7" x 11' 1" (4.14m x 3.38m)

Important Information

  • This is a Freehold property.

Property Ref: 29221875

Share:

Similar Properties

Silverweed Road, Chatham, ME5

2 Bedroom Terraced House | £245,000

Being offered with no forward chain is this two double bedroom extended house. This is an opportunity to put your own cr...

Bright Road, Chatham, ME4

3 Bedroom Terraced House | £220,000

Being offered with no onward chain is this opportunity for the investor or first time buyer. On entering the first floor...

Tay Close, Lordswood , ME5

1 Bedroom Semi-Detached House | £210,000

Being offered with no forward chain and presents an excellent opportunity for the first time buyer or those looking to d...

Burgess Road, Strood, Rochester, ME2

2 Bedroom Terraced House | Guide Price £250,000

Guide Price £250,000 - £260,000No Chain! Convenient for Strood/Rochester town centres and mainline station for London wi...

Gladstone Road, Penenden Heath, Maidstone, ME14

2 Bedroom Terraced House | Offers in excess of £250,000

Being offered with no forward chain and within walking distance to Maidstone is this charming two bedroom Victorian hous...

Clover Bank View, Walderslade, ME5

2 Bedroom Terraced House | Offers Over £260,000

This two bedroom terrace house would make an ideal purchase for first time buyers or investors. The current vendor has r...

Greyfox Sales & Lettings (Walderslade)

Walderslade Village Centre, Walderslade, Walderslade, Kent, ME5 9LR

01634 672227

How much is your home worth?

Use our short form to request a valuation of your property.

Request a Valuation

Mortgage Calculator

Amount Borrowed: £
Total Amount Repayable: £
Total Monthly Payment: £
©2026 The Guild of Property Professionals. All rights reserved. Terms and Conditions | Privacy Policy | Cookie Policy | Complaints Policy | Members Login
The Guild of Property Professionals Trading Address: 121 Park Lane, London W1K 7AG. GPEA Limited. Registered in England & Wales.  Company No: 02819824.  Registered Office Address: 2 St. Stephen's Court, St. Stephen's Road, Bournemouth, Dorset, England, BH2 6LA.  VAT Registration No: 576 8795 61
Book a Property Valuation Update Cookies Preferences