Sheppard Drive, Chelmer Village, Chelmsford

Guide Price
£425,000
SSTC
This property listing is now SSTC

4 Bedroom Semi-Detached House for sale in Chelmsford

2 4 2
  • Semi Detached Family Home
  • Four Good Sized Bedrooms
  • Complete Onward Chain
  • Entrance Hall & Cloakroom
  • Spacious Lounge
  • Separate Dining Room
  • Re-Fitted Kitchen
  • Walking Distance to Local Schools & Shops
  • Walking Distance to City Centre & Station
  • Call to View!

Being sold with a COMPLETE ONWARD CHAIN and PRICED TO SELL is this well proportioned semi detached property boasting FOUR GOOD SIZED BEDROOMS, entrance hall, cloakroom, SPACIOUS LOUNGE, separate dining room, fitted bathroom & kitchen, GARAGE and driveway parking, with excellent POTENTIAL TO EXTEND STP.

***GUIDE PRICE £425,000 - £450,000***

**OPEN HOUSE SATURDAY 12TH FEB CALL TO BOOK YOUR SLOT**

The property is within walking distance to local schools shops and with easy access to Chelmsford city centre and mainline train station, we understand the vendors are buying a new build with an expected completion date in July 2022.

Contact Chelmer Village's local property experts, Hamilton Piers, to view!

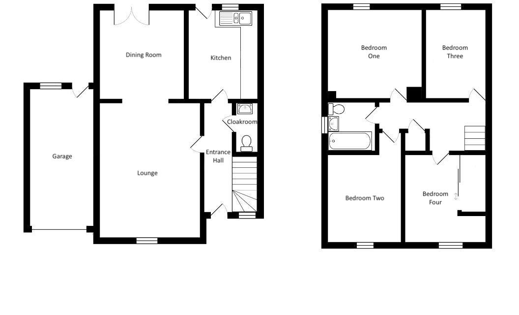
Ground Floor:- -

Entrance Hall: - Composite entrance door to front, door to cloakroom, kitchen, lounge, stairs to first floor, cupboard, wood effect flooring.

Cloakroom: - Low level W/C, vanity hand wash basin, tiled walls, tiled flooring.

Kitchen: - 3.18m x 2.72m (10'5" x 8'11") - Double glazed window and door to rear, range of wall and base units, rolled edge work surfaces with stainless steel sink inset, space for under counter fridge, dishwasher, washing machine, cooker with extractor over, part tiled walls, tiled flooring.

Lounge: - 4.88m x 3.56m (16' x 11'8") - Double glazed bow window to front, entrance to dining room, radiator.

Dining Room: - 3.20m x 2.82m (10'6" x 9'3") - Double glazed french doors to rear, radiator.

First Floor:- -

Landing: - Doors to bedroom one, bedroom two, bedroom three, bedroom four, family bathroom, airing cupboard, loft access.

Bedroom One: - 3.40m x 3.20m (11'2" x 10'6") - Double glazed window to rear, radiator.

Bedroom Two: - 3.96m > 3.00m x 2.67m (13' > 9'10" x 8'9") - Double glazed window to front, radiator.

Bedroom Three: - 3.20m x 2.16m (10'6" x 7'1") - Double glazed window to rear, radiator.

Bedroom Four: - 3.00m x 2.90m max (9'10" x 9'6" max) - Double glazed window to front, radiator.

Family Bathroom: - 1.75m x 1.73m (5'9" x 5'8") - Obscure double glazed window to side, panel bath with shower mixer tap, pedestal hand wash basin, low level W/C, chrome towel radiator, part tiled walls.

Exterior:- -

Frontage, Garage & Parking: - Driveway parking, garage with up and over door, path to entrance door, rest laid to lawn, with the potential for further driveway parking.

Rear Garden: - Paved patio to immediate side, door to garage, mature shrubs and trees to border, rest laid to lawn.

Property Ref: 42829_31253164

Share:

Similar Properties

Capel Close, Broomfield, Chelmsford, CM1

4 Bedroom Semi-Detached House | Guide Price £425,000

Boasting a 67? x 50? REAR GARDEN with a LARGE 22? CABIN (ideal as a HOME OFFICE, gym or CINEMA ROOM!) is this spacious,...

Barrack Lane, Great Waltham, Chelmsford, CM3

3 Bedroom Semi-Detached House | Guide Price £425,000

Boasting a GENEROUS 113' REAR GARDEN with a detached OUTBUILDING / OFFICE / GYM (with annex potential!) is this beautifu...

Falmouth Road, Old Springfield, Chelmsford

4 Bedroom Semi-Detached House | Guide Price £425,000

Being sold with NO ONWARD CHAIN is this EXTENDED semi detached home boasting a SPACIOUS 23' LOUNGE DINER that further of...

Beardsley Drive, Springfield, Chelmsford

3 Bedroom Link Detached House | Guide Price £429,995

EXTENDED & WELL PRESENTED is this link detached home boasting an IMPRESSIVE 23'9" LOUNGE, fitted kitchen diner, 47' low...

Crescent Road, Chelmsford

3 Bedroom Semi-Detached House | Guide Price £429,995

Boasting an UNOVERLOOKED & generously sized rear garden, impressive 21' DUAL ASPECT kitchen/diner & 19' lounge plus a st...

Timsons Lane, Nr Old Springfield, Chelmsford

3 Bedroom Semi-Detached House | Guide Price £435,000

A FULLY REFURBISHED and deceptively spacious semi detached home (with further PLANS TO EXTEND & REMODEL into a substanti...

Hamilton Piers - Chelmsford (Chelmsford)

4 Torquay Road, Springfield, Chelmsford, Essex, CM1 6NF

01245 269777

How much is your home worth?

Use our short form to request a valuation of your property.

Request a Valuation

Mortgage Calculator

Amount Borrowed: £
Total Amount Repayable: £
Total Monthly Payment: £
©2025 The Guild of Property Professionals. All rights reserved. Terms and Conditions | Privacy Policy | Cookie Policy | Complaints Policy | Members Login
The Guild of Property Professionals Trading Address: 121 Park Lane, London W1K 7AG. GPEA Limited. Registered in England & Wales.  Company No: 02819824.  Registered Office Address: 2 St. Stephen's Court, St. Stephen's Road, Bournemouth, Dorset, England, BH2 6LA.  VAT Registration No: 576 8795 61
Book a Property Valuation Update Cookies Preferences