Manor Road, Chigwell

Offers in excess of
£475,000
SSTC
This property listing is now SSTC

2 Bedroom Cottage for sale in Chigwell

1 2 1
  • GRADE 2 LISTED COTTAGE
  • 2/3 BEDROOMS
  • CLOSE TO GRANGE HILL STATION
  • GOOD SIZE KITCHEN
  • CLOSE TO LOCAL SHOPS
  • WALKING DISTANCE OF SCHOOLS
  • VIEWS VERY WELL
  • LOUNGE/DINER
  • SPACIOUS BATHROOM
  • FRONT GARDEN

* GRADE TWO LISTED * TWO/THREE BEDROOM * STONES THROW TO STATION * WALKING DISTANCE OF SHOPS * BEAUTIFULLY PRESENTED * GREAT SIZE GARDEN *

Nestled on the charming Manor Road in Chigwell, this delightful Grade II listed cottage offers a unique blend of historical character and modern living. With two to three well-proportioned bedrooms, this property provides ample space for families or those seeking a comfortable home. The inviting reception room serves as a perfect gathering space, ideal for entertaining guests or enjoying quiet evenings in.

The cottage is conveniently located just a stone's throw away from Grange Hill Station, making commuting to London and surrounding areas a breeze. Additionally, residents will appreciate the close proximity to local shops and schools, ensuring that all essential amenities are within easy reach.

This property boasts great size accommodation, allowing for a flexible living arrangement that can adapt to your needs. The charm of the cottage, combined with its prime location, makes it an excellent choice for anyone looking to settle in this sought-after area. Whether you are a first-time buyer, a growing family, or simply seeking a peaceful retreat, this cottage on Manor Road is sure to impress. Don't miss the opportunity to make this enchanting home your own.

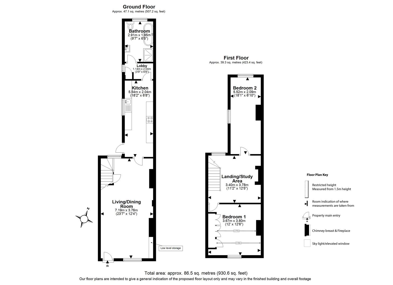
Ground Floor -

Entrance -

Living/Dining Room - 7.19m x 3.76m (23'7" x 12'4") -

Kitchen - 5.54m x 2.04m (18'2" x 6'8") -

Lobby -

Bathroom - 2.92m x 1.96m (9'7 x 6'5) -

First Floor -

Landing/Study Area - 3.40m x 3.78m (11'2" x 12'5") -

Bedroom 1 - 3.67m x 3.80m (12'0" x 12'6") -

Bedroom 2 - 5.52m x 2.09m (18'1" x 6'10") -

Exterior -

Front Garden - 20.90m x 3.61m (68'7 x 11'10) -

Property Ref: 14350_34188351

Share:

Similar Properties

Queens Road, North Weald, Epping

2 Bedroom Detached Bungalow | Offers in excess of £475,000

* NO ONWARD CHAIN * DETACHED BUNGALOW * TWO BEDROOMS * OFF STREET PARKING ** KITCHEN/BREAKFAST ROOM * BATHROOM WITH SEPA...

Princes Close, North Weald.

2 Bedroom Semi-Detached Bungalow | Offers in region of £475,000

* WELL PRESENTED * SEMI-DETACHED BUNGALOW * TWO DOUBLE BEDROOMS * CONSERVATORY * OFF STREET PARKING & GARAGE * VILLAGE L...

Highfield Green, Epping

3 Bedroom Terraced House | £475,000

* Price Range £475,000 - £500,000 ** ATTRACTIVE TERRACE HOME * THREE BEDROOMS * GARAGE EN-BLOC * WELL PRESENTED * REDECO...

Beamish Close, North Weald

3 Bedroom Semi-Detached House | Guide Price £495,000

* EXTENDED PROPERTY * SEMI DETACHED * FAMILY HOME * LOUNGE WITH FEATURE FIREPLACE * OPEN PLAN KITCHEN DINER * GOOD SIZE...

Upshire Road, Waltham Abbey

3 Bedroom Semi-Detached House | Offers in excess of £499,999

* THREE BEDROOMS * SEMI DETACHED HOUSE * LOFT CONVERSON * BATHROOM & EN-SUITE * OPEN PLAN GROUND FLOOR * OFF STREET PARK...

Stewards Green Road, Epping

3 Bedroom Cottage | Offers Over £500,000

* SEMI DETACHED COTTAGE * 3 BEDROOMS * 777.6 SQ FT VOLUME * FARMLAND VIEWS * LARGE GARDEN PLOTS * NO ONWARD CHAIN * POTE...

Millers Estate Agents (Epping)

229 High Street, Epping, Essex, CM16 4BP

01992 560555

How much is your home worth?

Use our short form to request a valuation of your property.

Request a Valuation

Mortgage Calculator

Amount Borrowed: £
Total Amount Repayable: £
Total Monthly Payment: £
©2025 The Guild of Property Professionals. All rights reserved. Terms and Conditions | Privacy Policy | Cookie Policy | Complaints Policy | Members Login
The Guild of Property Professionals Trading Address: 121 Park Lane, London W1K 7AG. GPEA Limited. Registered in England & Wales.  Company No: 02819824.  Registered Office Address: 2 St. Stephen's Court, St. Stephen's Road, Bournemouth, Dorset, England, BH2 6LA.  VAT Registration No: 576 8795 61
Book a Property Valuation Update Cookies Preferences