Queens Road, North Weald, Epping

Offers in excess of
£475,000
SSTC
This property listing is now SSTC

2 Bedroom Detached Bungalow for sale in North Weald

1 2 1
  • DETACHED BUNGALOW
  • NO ONWARD CHAIN
  • TWO BEDROOMS
  • KITCHEN/BREAKFAST ROOM
  • GATED OFF STREET PARKING
  • REAR GARDEN
  • DOUBLE GLAZED
  • GAS CENTRAL HEATING
  • VIEWS WELL
  • BUILT 1995

* NO ONWARD CHAIN * DETACHED BUNGALOW * TWO BEDROOMS * OFF STREET PARKING *
* KITCHEN/BREAKFAST ROOM * BATHROOM WITH SEPARATE WC * REAR GARDEN *

Nestled on the charming Queens Road in North Weald, Epping, this delightful detached bungalow offers a perfect blend of comfort and convenience. Built in 1995, the property boasts a well-thought-out layout, featuring two spacious bedrooms that provide ample space for relaxation and rest. The inviting reception room serves as a welcoming area for both family gatherings and quiet evenings at home.

The bungalow is complemented by a well-appointed bathroom, ensuring that all your daily needs are met with ease. One of the standout features of this property is its gated entrance, which not only enhances security but also adds a touch of elegance to the home.

For those with vehicles, the property offers parking for two vehicles, making it a practical choice for families or individuals with multiple cars. The surrounding area of North Weald is known for its picturesque scenery and community spirit, providing a tranquil setting while still being conveniently located for access to local amenities.

This charming bungalow is ideal for anyone seeking a peaceful retreat in a friendly neighbourhood. With its modern features and thoughtful design, it presents an excellent opportunity for both first-time buyers and those looking to downsize. Don't miss the chance to make this lovely property your new home.

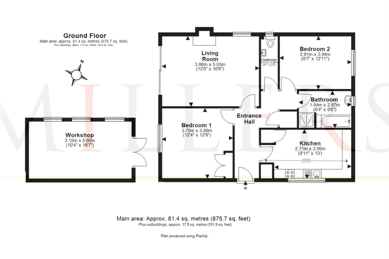
Entrance Hall -

Living Room - 3.86m x 5.03m (12'8" x 16'6") -

Kitchen - 2.71m x 3.95m (8'11" x 13'0") -

Bedroom 1 - 3.75m x 3.89m (12'4" x 12'9") -

Bedroom 2 - 2.91m x 3.94m (9'7" x 12'11") -

Bathroom - 2.87m x 1.93m (9'5 x 6'4) -

Cloakroom - 2.79m x 0.84m (9'2 x 2'9) -

Exterior -

Rear Garden - 11.28m x 10.06m (37'0 x 33'0) -

Workshop - 5.66m x 3.15m (18'7 x 10'4) -

Storage cupboard.

Property Ref: 14350_34031394

Share:

Similar Properties

Manor Road, Chigwell

2 Bedroom Cottage | Offers in excess of £475,000

* GRADE TWO LISTED * TWO/THREE BEDROOM * STONES THROW TO STATION * WALKING DISTANCE OF SHOPS * BEAUTIFULLY PRESENTED * G...

Highfield Green, Epping

3 Bedroom Terraced House | £475,000

* Price Range £475,000 - £500,000 ** ATTRACTIVE TERRACE HOME * THREE BEDROOMS * GARAGE EN-BLOC * WELL PRESENTED * REDECO...

Princes Close, North Weald.

2 Bedroom Semi-Detached Bungalow | Offers in region of £475,000

* WELL PRESENTED * SEMI-DETACHED BUNGALOW * TWO DOUBLE BEDROOMS * CONSERVATORY * OFF STREET PARKING & GARAGE * VILLAGE L...

Beamish Close, North Weald

3 Bedroom Semi-Detached House | Guide Price £495,000

* EXTENDED PROPERTY * SEMI DETACHED * FAMILY HOME * LOUNGE WITH FEATURE FIREPLACE * OPEN PLAN KITCHEN DINER * GOOD SIZE...

Upshire Road, Waltham Abbey

3 Bedroom Semi-Detached House | Offers in excess of £499,999

* THREE BEDROOMS * SEMI DETACHED HOUSE * LOFT CONVERSON * BATHROOM & EN-SUITE * OPEN PLAN GROUND FLOOR * OFF STREET PARK...

Stewards Green Road, Epping

3 Bedroom Cottage | Offers Over £500,000

* SEMI DETACHED COTTAGE * 3 BEDROOMS * 777.6 SQ FT VOLUME * FARMLAND VIEWS * LARGE GARDEN PLOTS * NO ONWARD CHAIN * POTE...

Millers Estate Agents (Epping)

229 High Street, Epping, Essex, CM16 4BP

01992 560555

How much is your home worth?

Use our short form to request a valuation of your property.

Request a Valuation

Mortgage Calculator

Amount Borrowed: £
Total Amount Repayable: £
Total Monthly Payment: £
©2025 The Guild of Property Professionals. All rights reserved. Terms and Conditions | Privacy Policy | Cookie Policy | Complaints Policy | Members Login
The Guild of Property Professionals Trading Address: 121 Park Lane, London W1K 7AG. GPEA Limited. Registered in England & Wales.  Company No: 02819824.  Registered Office Address: 2 St. Stephen's Court, St. Stephen's Road, Bournemouth, Dorset, England, BH2 6LA.  VAT Registration No: 576 8795 61
Book a Property Valuation Update Cookies Preferences