Dauntsey, Chippenham

Offers in excess of
£925,000
SSTC
This property listing is now SSTC

5 Bedroom Detached House for sale in Chippenham

3 5 2
  • A Grade II Listed detached country house
  • Recently refurbished to a high standard
  • 5 bedrooms and 3 further attic rooms
  • 3 reception rooms
  • Kitchen/breakfast room
  • Utility room
  • Family bathroom, en suite and WC
  • Garden
  • Single garage
  • Edge of village location with lovely rural outlook

A fine late Georgian three-storey country house, situated on the edge of the Wiltshire village of Dauntsey, within easy distance of Malmesbury. This attractive former farmhouse has undergone a major transformation by the present owners, who have lovingly restored the house to its former glory and retained and enhanced its period features. These include attractive fireplaces and beamed ceilings, whilst adding modern comforts such as double glazing, and installing an Air Source Heat Pump, to create a warm and welcoming family home.
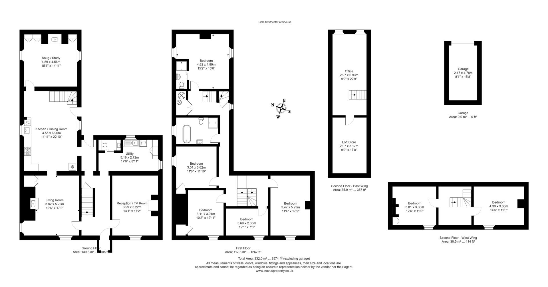
The extremely well-presented and spacious accommodation includes three comfortable and stylish reception rooms, a generous farmhouse kitchen/breakfast room with separate utility room, a cloak/boot room and WC. On the first floor, there are five bedrooms including the principal bedroom, a guest room with ensuite shower room and a family bathroom. On the top floor, there are three further bedrooms, one of which is used as a study and an attic storage room. The house is surrounded by gardens and has a single garage and ample parking. Lovely rural views can be enjoyed from most rooms.

A fine late Georgian three-storey country house, situated on the edge of the Wiltshire village of Dauntsey, within easy distance of Malmesbury. This attractive former farmhouse has undergone a major transformation by the present owners, who have lovingly restored the house to its former glory and retained and enhanced its period features. These include attractive fireplaces and beamed ceilings, whilst adding modern comforts such as double glazing, and installing an Air Source Heat Pump, to create a warm and welcoming family home.
Summary
The extremely well-presented and spacious accommodation includes three comfortable and stylish reception rooms, a generous farmhouse kitchen/breakfast room with separate utility room, a cloak/boot room and WC. On the first floor, there are five bedrooms including the principal bedroom, a guest room with ensuite shower room and a family bathroom. On the top floor, there are three further bedrooms, one of which is used as a study and an attic storage room. The house is surrounded by gardens and has a single garage and ample parking. Lovely rural views can be enjoyed from most rooms.Little Smithcott Farmhouse has an attractive rendered Georgian fa�ade with central porch and exposed red brickwork under a tiled roof. The front door leads to a bright hallway, off which are the principal rooms. The flooring is of engineered oak throughout the ground floor. The windows to the rear of the property have been replaced in double glazed timber, whilst the front windows and shutters have been renovated and draught proofed. The owners have used attractive muted shades of Farrow & Ball for d�cor.

Description

The comfortable and bright dual aspect sitting room has a wood burner stove, stone hearth and wooden surround and mantel. This leads to the kitchen/breakfast room with windows to either side and a part glazed door to the garden, a range of fitted painted wooden units with wooden worktops, a sink and mixer tap, and space for a range cooker and American style fridge. A staircase at the far end leads to the upper floors. The kitchen leads through to another dual aspect sitting room, with woodburning stove in a brick fireplace with cupboards and shelving to either side. Also on this floor is a snug/TV room with window overlooking the front garden. At the rear of the property is a useful utility room with a range of wooden cupboards, a one and a half bowl sink with mixer tap and plumbed for washing machine. Off the utility room is a WC with wash basin. A lobby, with room for coats and boots, leads to the rear door of the house.

There are two staircases, and from the main hallway, a flight of stairs leads up to the bedroom accommodation, with a generous amount of wardrobe and cupboard space throughout. To the right is the principal dual aspect bedroom, and smaller adjacent bedroom. There are a further three bedrooms including a lovely light guest bedroom with en suite shower room. The luxury family bathroom has engineered oak flooring, a walk-in shower and a traditional style freestanding roll top bath. A shelved airing cupboard housing the hot water tank can also be found on this floor.

A further flight of stairs leads to the attic. Here can be found two bedrooms with vaulted and beamed ceilings and lovely open views. Accessed via the rear staircase is a room currently used as a study, off which is a spacious boarded attic room with electric light, used for storage.

Outside

To the front of the house lies a lawn and a gravelled parking area, ample for several vehicles. To the side of the property is another entrance with close boarded gates, leading to the garage. At the rear of the wisteria and Virginia creeper clad walls of the house, is a lovely garden. Raised flower beds give a colourful display of flowers. Next to this is a gravelled and paved terraced area, perfect for outdoor dining, with a pergola to provide shade. The garden is mostly laid to lawn with some lovely old trees and shrubs and is enclosed by a stone wall, fencing and hazel hurdle fencing. There is also a woodstore and a wooden garden shed.

Location

Little Smithcott Farmhouse is set in a rural location, surrounded by farmland with lovely open views to the front across the village of Dauntsey and surrounding fields. Lovely walks can be found from the doorstep and the popular pub, The Somerford Arms is a couple of miles away. There is also a farm shop within a stone's throw of the house, selling fresh vegetables, bread and other produce. The village and nearby Brinkworth offer an infant's/primary school and secondary schools are available nearby Malmesbury, Chippenham and the Royal Wootton Academy, rated Outstanding by OFSTED under 5 miles away. For local shopping there are branches of Waitrose and Aldi within 5 miles. The house is well situated for easy access to Malmesbury, Chippenham and Swindon and the M4 is easily accessible for Bristol and London.

Features - .Freehold
.Council Tax Band G
.EPC rating E
.Heated by air heat source pump.
.Private drainage by new sewage treatment tank
.Mains water
.Gigaclear broadband

NB All Listing and building permissions have been granted for the renovations, and in addition there is permission to build a large timber framed garage and workshop in the paddock.

Property Ref: 230823_32509829

Share:

Similar Properties

Berkeley Place, Combe Down

4 Bedroom Semi-Detached House | Offers in excess of £900,000

This striking architect-designed home, built to a high specification, offers a seamless blend of historic charm and mode...

Stoughton Road, West Stoughton, Wedmore

4 Bedroom House | Offers in excess of £875,000

Highbury Barn comes to the market for the first time in over 50 years - a rare opportunity to acquire a truly special pe...

Cheddar Road, Axbridge

4 Bedroom House | Offers in excess of £850,000

A stylish and individually designed contemporary home, completed in 2021. Kattegat is the first of three luxury oak fram...

Upper Langford, Somerset

4 Bedroom Detached House | Offers in excess of £935,000

Eider (Plot 5)4 bedrooms, 2 receptions, 4 bathrooms, 2053 sq ftLacuna Gardens is an exclusive collection of twelve 4 and...

Theynes Croft, Long Ashton, Bristol

5 Bedroom Detached House | Offers in excess of £950,000

Tucked away in one of Long Ashton's most sought-after addresses, 39 Theynes Croft is a home that perfectly blends elegan...

Says Lane, Langford, Bristol

5 Bedroom Detached House | Offers in excess of £950,000

Rose Cottage is a charming period four/five bedroomed detached home. Set within an acre of beautifully maintained, level...

Peter Greatorex Unique Homes (Bath)

Bath, Somerset, BA1 1HE

01225 471144

How much is your home worth?

Use our short form to request a valuation of your property.

Request a Valuation

Mortgage Calculator

Amount Borrowed: £
Total Amount Repayable: £
Total Monthly Payment: £
©2025 The Guild of Property Professionals. All rights reserved. Terms and Conditions | Privacy Policy | Cookie Policy | Complaints Policy | Members Login
The Guild of Property Professionals Trading Address: 121 Park Lane, London W1K 7AG. GPEA Limited. Registered in England & Wales.  Company No: 02819824.  Registered Office Address: 2 St. Stephen's Court, St. Stephen's Road, Bournemouth, Dorset, England, BH2 6LA.  VAT Registration No: 576 8795 61
Book a Property Valuation Update Cookies Preferences