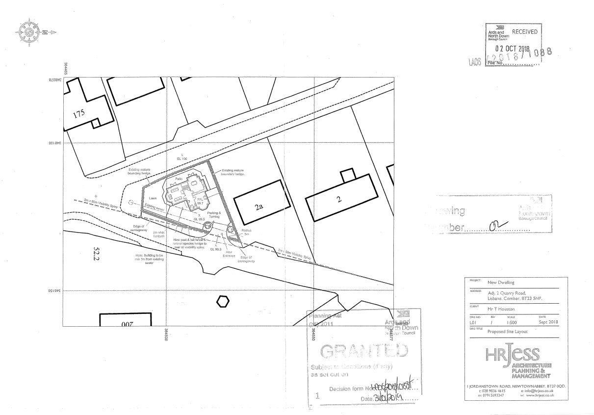
Site Beside 2a Quarry Road, Lisbane

Asking Price
£89,950
SSTC
This property listing is now SSTC

Plot for sale in Comber



Delightful building site in an established location within walking distance of Lisbane's amenities
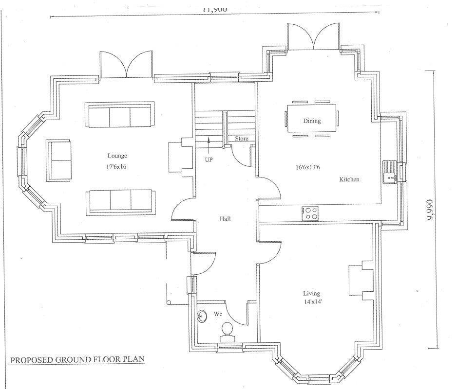
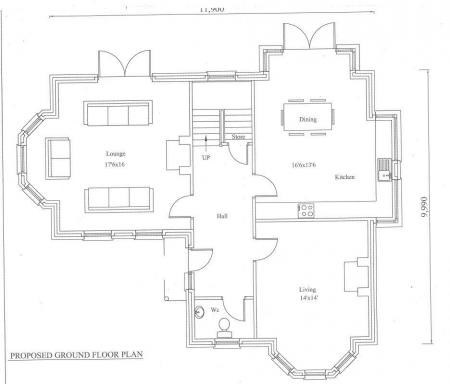
Full planning permission granted for a detached family home offering four bedrooms and three reception rooms
Only 3.4 miles from Comber town centre and approximately eight miles from Dundonald, this property offers convenience to shopping and business commuting
Excellent opportunity to build for your own occupation or resale in a highly sought after position
Application Number LA06/2023/2449/F Granted 28th November 2023

Property Ref: 27676_33398743

Share:

Similar Properties

Land @ 115 Belfast Road, Comber

Plot | Asking Price £55,000

The Way Forward!Nestled in the picturesque area of Comber, Newtownards, this unique building plot at 115 Belfast Road pr...

49 Northbrook Street, Belfast

4 Bedroom Terraced House | £2,000pcm

An excellent HMO registered four bedroom townhouse located on Northbrook Street just off the Lisburn Road in South Belfa...

Apt 701, Portland 88, 55 Ormeau Road, Belfast

3 Bedroom Apartment | £1,995pcm

Portland Penthouse!A fantastic opportunity to rent a three bedroom penthouse apartment in the stunning Portland 88 build...

33B Strand Avenue, Holywood

2 Bedroom Apartment | Asking Price £90,000

Ave a Look at This!Nestled in the heart of Holywood, this first floor duplex apartment presents an excellent opportunity...

8 Dundela Court, Belmont

2 Bedroom Apartment | Asking Price £99,950

Ave a Look at This!Situated in the heart of East Belfast, this spacious first floor apartment presents an excellent oppo...

37 Richmond Avenue, Holywood

2 Bedroom Apartment | Asking Price £110,000

Strike it Richmond!This is a superb chain free ground floor apartment in a highly desirable location on the outskirts of...

Michael Chandler Estate Agents (Belfast)

Belfast, County Down, BT7 3GU

02890 450 550

How much is your home worth?

Use our short form to request a valuation of your property.

Request a Valuation

Mortgage Calculator

Amount Borrowed: £
Total Amount Repayable: £
Total Monthly Payment: £
©2025 The Guild of Property Professionals. All rights reserved. Terms and Conditions | Privacy Policy | Cookie Policy | Complaints Policy | Members Login
The Guild of Property Professionals Trading Address: 121 Park Lane, London W1K 7AG. GPEA Limited. Registered in England & Wales.  Company No: 02819824.  Registered Office Address: 2 St. Stephen's Court, St. Stephen's Road, Bournemouth, Dorset, England, BH2 6LA.  VAT Registration No: 576 8795 61
Book a Property Valuation Update Cookies Preferences