Land @ 115 Belfast Road, Comber

Asking Price
£55,000

Plot for sale in Newtownards



Excellent opportunity for self or speculative build project
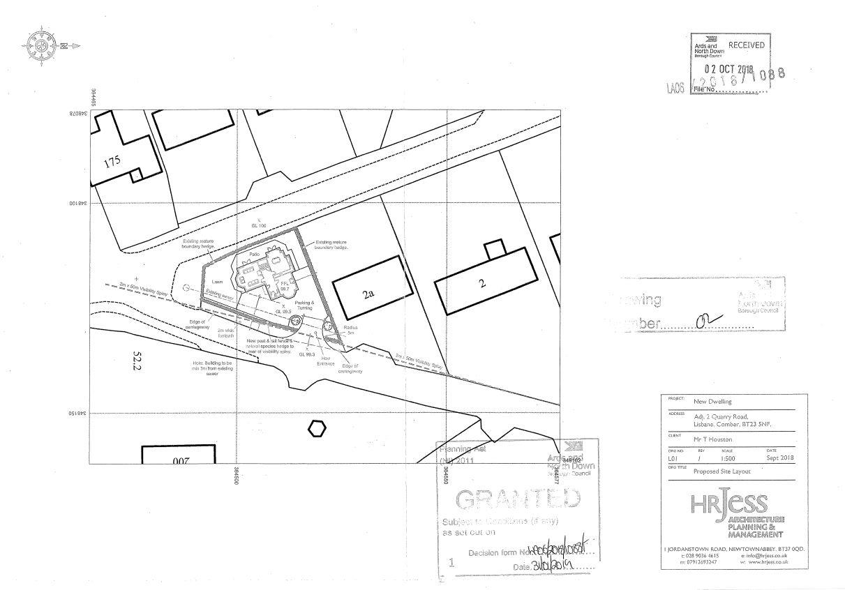
Outline planning permission approved for one dwelling
Application was for a single storey property although permission has been granted with a 6 metre ridge height.
Please note a small portion of this site coloured lue on the site plan is not Included in the sale
Convenient yet rural location
Within one minutes walk of the Comber Greenway

Property Ref: 27676_33561426

Share:

Similar Properties

49 Northbrook Street, Belfast

4 Bedroom Terraced House | £2,000pcm

An excellent HMO registered four bedroom townhouse located on Northbrook Street just off the Lisburn Road in South Belfa...

Apt 701, Portland 88, 55 Ormeau Road, Belfast

3 Bedroom Apartment | £1,995pcm

Portland Penthouse!A fantastic opportunity to rent a three bedroom penthouse apartment in the stunning Portland 88 build...

47 Northbrook StreetBelfast

4 Bedroom Townhouse | £1,600pcm

Ideally located just off the Lisburn this four bedroom high-quality residential letting is designed perfectly for family...

Site Beside 2a Quarry Road, Lisbane

Plot | Asking Price £89,950

Nestled beside 2a Quarry Road in the charming village of Lisbane, lies a delightful building site awaiting your vision....

33B Strand Avenue, Holywood

2 Bedroom Apartment | Asking Price £90,000

Ave a Look at This!Nestled in the heart of Holywood, this first floor duplex apartment presents an excellent opportunity...

8 Dundela Court, Belmont

2 Bedroom Apartment | Asking Price £99,950

Ave a Look at This!Situated in the heart of East Belfast, this spacious first floor apartment presents an excellent oppo...

Michael Chandler Estate Agents (Belfast)

Belfast, County Down, BT7 3GU

02890 450 550

How much is your home worth?

Use our short form to request a valuation of your property.

Request a Valuation

Mortgage Calculator

Amount Borrowed: £
Total Amount Repayable: £
Total Monthly Payment: £
©2025 The Guild of Property Professionals. All rights reserved. Terms and Conditions | Privacy Policy | Cookie Policy | Complaints Policy | Members Login
The Guild of Property Professionals Trading Address: 121 Park Lane, London W1K 7AG. GPEA Limited. Registered in England & Wales.  Company No: 02819824.  Registered Office Address: 2 St. Stephen's Court, St. Stephen's Road, Bournemouth, Dorset, England, BH2 6LA.  VAT Registration No: 576 8795 61
Book a Property Valuation Update Cookies Preferences