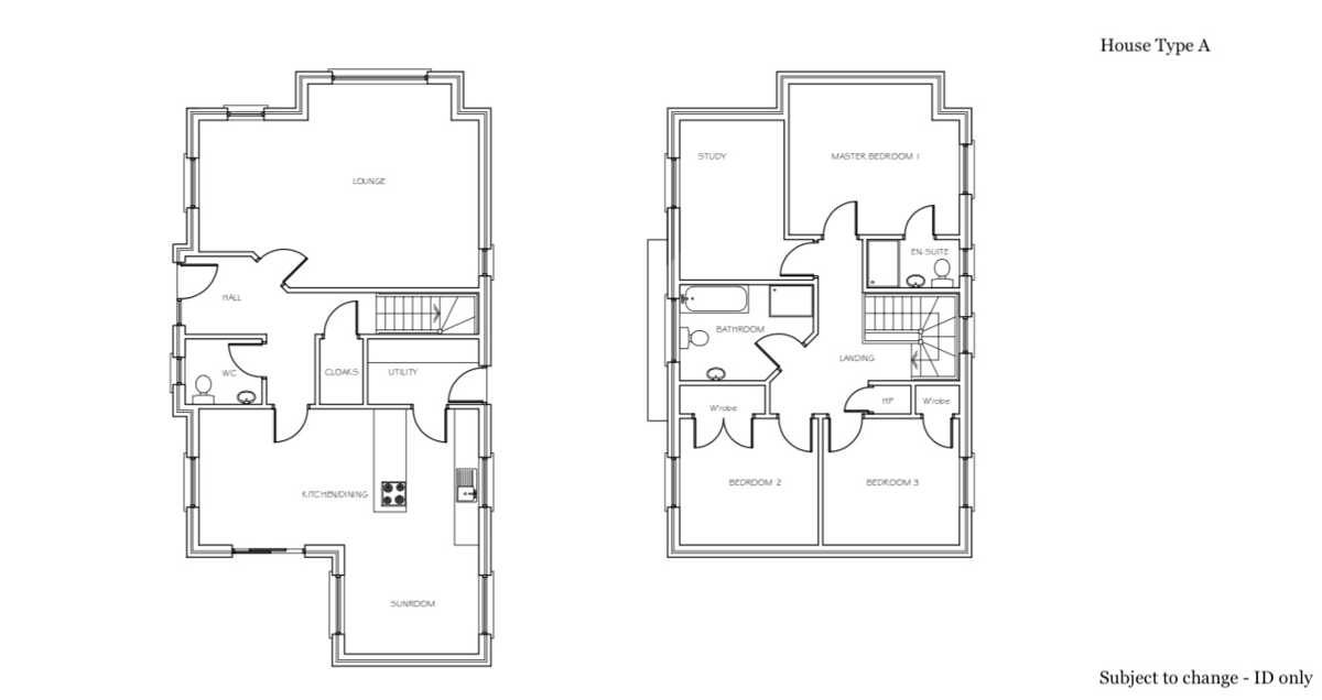
House Type A, Coolreaghs Manor, Cookstown

£290,000
SSTC
This property listing is now SSTC

3 Bedroom Detached House for sale in Cookstown

1 3 1

SPECIFICATION

-  High U Value Timber frame construction

-  Ergon filled uPVC Double Glazed Windows

-  10 Year NHBC Structural Warranty

-  Composite Front Door

-  Self Coloured Render to all exteriors in various colours

-  Quality black metal railings to various locations

-  Front lawns turfed, rear gardens raked and seeded

-  Tarmac Driveways

-  High spec paved footpaths with generous patio to rear

-  Composite canopy above Front Door

-  Mains Gas Heating Source

-  Gas Combi Boiler enabling instant hot water throughout

-  Solid Internal White Contemporary Style Doors

-  Deep 6” White Contemporary Skirting with 4” matching Architrave

-  High quality Satin Chrome Ironmongery

-  Fully Painted interior walls and all woodwork

-  Electric Fire with Fireplace surround and hearth

-  LED downlighters to open plan Kitchen, Dining, Living area

-  Low Energy lighting throughout

-  External Lighting to front and rear patio doors

-  Generous provision of power sockets, BT and TV points throughout

-  CAT 6 cabling to all TV points for Smart TV

-  1ST Fix Alarm cabling installed

-  Large Shower Enclosure to both Ensuite and Main Bathroom with Rainhead Shower

-  Backlit Vanity Mirrors to all bathroom wash hand basins

-  Vanity Units to both Main Bathroom and Ensuite

-  High Spec Contemporary Sanitaryware throughout

All appliances installed including

Integrated Fridge FreezerBuilt in Oven, Hob and Extraction HoodBuilt in MicrowaveIntegrated DishwasherWashing MachineTumbledryer

Property Ref: 11072670_646377

Share:

Similar Properties

14 Westfort, Cookstown

4 Bedroom Detached House | Guide Price £274,950

This well presented four-bedroom detached property offers the perfect balance of modern style and family-friendly living...

18 Rathmore, Cookstown

3 Bedroom Detached Bungalow | Guide Price £269,950

This extended three-bedroom detached bungalow offers generous living space, combining comfort and practicality. Set in a...

38 Oldtown Street, Cookstown

5 Bedroom End of Terrace House | Guide Price £249,500

Situated in Cookstown Town Centre a charming 2650 sq ft family home with a further 1220 sq ft of garaging.

House Type 1, Coolreaghs Manor, Cookstown

3 Bedroom Detached House | £350,000

An exquisite development of modern homes within easy walking distance of the hustle and bustle of the thriving Town Cent...

27 Annaghquin Road, Cookstown

4 Bedroom Detached House | Guide Price £429,950

This outstanding home offers generous and flexible accommodation, finished to an excellent standard throughout. Light-fi...

40 William Street, Cookstown

Shop | Offers in excess of £450,000

This is one of Cookstown?s most desirable commercial locations set in the Town Centre, making it ideal for businesses se...

Stanley Best Estate Agents (Cookstown)

28 Oldtown Street, Cookstown, Tyrone, BT80 8EF

028 8676 6642

How much is your home worth?

Use our short form to request a valuation of your property.

Request a Valuation

Mortgage Calculator

Amount Borrowed: £
Total Amount Repayable: £
Total Monthly Payment: £
©2026 The Guild of Property Professionals. All rights reserved. Terms and Conditions | Privacy Policy | Cookie Policy | Complaints Policy | Members Login
The Guild of Property Professionals Trading Address: 121 Park Lane, London W1K 7AG. GPEA Limited. Registered in England & Wales.  Company No: 02819824.  Registered Office Address: 2 St. Stephen's Court, St. Stephen's Road, Bournemouth, Dorset, England, BH2 6LA.  VAT Registration No: 576 8795 61
Book a Property Valuation Update Cookies Preferences