Coronation Avenue, Dawlish, EX7

Offers in excess of
£240,000

3 Bedroom End of Terrace House for sale in Coronation Avenue

1 3 1
  • END OF TERRACE
  • THREE BEDROOMS
  • POPULAR LOCATION
  • DOUBLE GLAZING
  • GAS CENTRAL HEATING
  • GOOD SIZE REAR GARDEN
  • PARKING
  • FREEHOLD
  • COUNCIL TAX - C
  • EPC _ C

NO ONWARD CHAIN A well presented three-bedroom end of terrace home situated in a popular residential area a short distance from Dawlish town centre, local shops, amenities and beaches. The property features gas central heating, double glazing, a good-sized rear garden, and parking to the front of the property. FREEHOLD, COUNCIL TAX - C, EPC - C

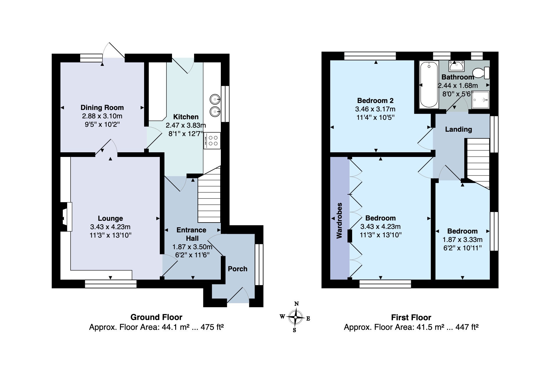
FRONT DOOR: Newly fitted obscure double glazed composite front door opening to:

PORCH: uPVC obscure double-glazed window to the side aspect and recently fitted double glazed composite inner door to:

ENTRANCE HALL: Stairs to the first-floor landing, radiator, telephone point and multi glazed door to:

LOUNGE: 4.23m x 3.43m (13'11" x 11'3"), uPVC double glazed window to the front aspect, two radiators, gas fire with brick-built surround, coved ceiling and multi glazed door opening to:

DINING ROOM: 3.10m x 2.88m (10'2" x 9'5"), uPVC double glazed door with side window looking out to the rear garden, radiator and multi glazed door opening into:

KITCHEN: 3.83m x 2.47m (12'7" x 8'1"), A selection of wooden fronted eye level and base units with tiled works surfaces and splash backs. Spaces for electric cooker, fridge, space and plumbing for washing machine and cupboard housing combination boiler. uPVC double glazed window to the side aspect, uPVC obscure double-glazed door leading out to the rear garden and tiled flooring.

FIRST FLOOR LANDING: Stairs to the first-floor landing, uPVC double glazed window to the side aspect, access to loft space and door to:

BEDROOM 1: 4.23m x 3.43m (13'11" x 11'3"), uPVC double glazed widow to the front aspect, fitted wardrobes to one wall with hanging rails and shelves, recently fitted carpet, radiator and coved ceiling.

BEDROOM 2: 3.46m x 3.17m (11'4" x 10'5"), uPVC double glazed window to the rear aspect, radiator and recently fitted carpet.

BEDROOM 3: 3.33m x 1.87m (10'11" x 6'2"), uPVC double glazed window to the front aspect, radiator and fitted wardrobe.

BATHROOM: Bathroom suite comprising panelled bath with mixer tap and shower attachment, pedestal wash hand basin and low-level WC. Corner cubicle with electric shower over and glass sliding door. Two uPVC double glazed windows to the rear aspect, part tiled walls and radiator.

OUTSIDE: To the front of the property a level garden is laid with chippings creating parking space. A paved path leads to the front door and continues down the side to the rear garden gate. The rear garden is of a generous size which is mostly laid to lawn and planted with a selection of mature trees and shrubs. There is a patio area across the back of the property and a further seating area at the far end of the garden. Approximately half way down the garden there are right of access gates to either side.

AGENTS NOTE :: THERE IS RIGHT OF WAY ACCESS ACROSS THE REAR GARDEN.

Important Information

  • This is a Freehold property.

Property Ref: FAW004562

Share:

Similar Properties

Buttercup Walk, Dawlish, EX7

2 Bedroom Terraced House | £240,000

NO ONWARD CHAIN. A superb two-bedroom home, tucked away in a desirable position within a modern development. The propert...

Coronation Avenue, Dawlish, EX7

2 Bedroom Semi-Detached House | £240,000

An extended 2 bedroom semi-detached home with loft room, good size garden, gas central heating and area of hard standing...

Cofton Hill, Cockwood, EX6

2 Bedroom Terraced House | £240,000

Superb views over the Exe Estuary can be enjoyed from this well presented cottage situated in the heart of this highly r...

Badlake Hill, Dawlish, EX7

3 Bedroom End of Terrace House | £249,500

A three bedroom end of terrace house situated in a popular location towards the outskirts of Dawlish with parking. The p...

Heywood Drive, Starcross, EX6

2 Bedroom Semi-Detached House | £249,950

A beautifully presented Two bedroom semi detached home offering contemporary living, situated in the sought-after estuar...

Old School Mews, Dawlish, EX7

2 Bedroom Terraced House | £249,950

Well presented modern house situated in a small, quiet mews development conveniently located for the town centre and a r...

Fraser & Wheeler (Dawlish) (Dawlish)

Dawlish, Devon, EX7 9HB

01626 862379

How much is your home worth?

Use our short form to request a valuation of your property.

Request a Valuation

Mortgage Calculator

Amount Borrowed: £
Total Amount Repayable: £
Total Monthly Payment: £
©2026 The Guild of Property Professionals. All rights reserved. Terms and Conditions | Privacy Policy | Cookie Policy | Complaints Policy | Members Login
The Guild of Property Professionals Trading Address: 121 Park Lane, London W1K 7AG. GPEA Limited. Registered in England & Wales.  Company No: 02819824.  Registered Office Address: 2 St. Stephen's Court, St. Stephen's Road, Bournemouth, Dorset, England, BH2 6LA.  VAT Registration No: 576 8795 61
Book a Property Valuation Update Cookies Preferences