Tyr Ysgol, Maendy, Cowbridge, The Vale of Glamorgan CF71 7TG

Asking Price
£799,000

4 Bedroom House for sale in Cowbridge

3 4 2
  • Detached Victorian character house
  • Entrance hall living room, dining room and sitting room
  • Kitchen breakfast room
  • Large utility/boot room and ground floor shower room
  • Four first floor bedrooms and family bathroom
  • Excellent parking and detached garaged
  • Paved and lawned west facing garden with spectacular views
  • Easy access to Cowbridge
  • Electric vehicle charging point

Stone built Victorian detached character house previously connected to the Maendy primary school, offering spacious four bedroomed family accommodation with a wealth of ground floor space and west facing garden with panoramic views, a few minutes drive from the popular country town of Cowbridge.

Stone built Victorian detached character house previously connected to the Maendy primary school, offering spacious four bedroomed family accommodation with a wealth of ground floor space and west facing garden with panoramic views, a few minutes’ drive from the popular country town of Cowbridge.


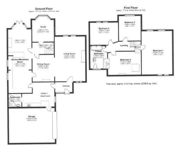
Composite entrance door to HALLWAY quarry tiled floor, double glazed window. Door to LIVING ROOM, spacious room with double glazed windows to front and rear elevations. Recess wood burning fire with flagstone hearth with timber lintel over, timber effect floor. Open plan with step up to DINING ROOM, carved timber fireplace surround with tiled hearth and recess cupboard. Door to KITCHEN range of cream shaker style fitted cupboards with oak block worktops, inset porcelain sink and drainer, stainless steel cooking range and integrated dishwasher, fridge and freezer, double glazed windows and natural stone tiled floor. Open plan to BREAKFAST ROOM recess fireplace matching stone floor, double glazed french doors and windows to west facing garden.


Doors from breakfast room and dining room to an INNER HALLWAY with original staircase to first floor, door to SITTING ROOM quarry tiled floor, decorative cast iron fireplace flanked by fitted cupboards, double glazed windows to rear garden with far ranging rural views beyond. Connecting doors from hallway and kitchen to a large UTILITY/BOOT ROOM, timber flooring, fitted cupboards and oak block work top, stainless steel sink and drainers, spaces for washing machine and tumble dryer. Connecting door to garage and ground floor SHOWER ROOM well appointed and fully tiled to floor and walls. Quadrant shaped shower cubicle with glazed entry door, low level W/C and wash hand basin with vanity drawer, heated towel rail.


Original staircase to landing, pitched and beamed ceilings and doors to a large PRINCIPAL BEDROOM with vaulted and beamed ceiling, double glazed windows to front and rear elevations and extensive built in wardrobes. BEDROOM 2 part pitched and beamed ceiling with double glazed Velux window to rear, polished floorboards and decorative cast iron bedroom fireplace. BEDROOM 3 is a very pretty room with pitched ceiling with original beams, polished floorboards, Victorian cast iron fireplace and double-glazed sash windows with exceptional views. BEDROOM 4 has polished floorboards, pitched and beamed ceiling with double glazed windows to rear. BATHROOM tiled floor and white suite including roll top claw foot bath, low level W/C and wash hand basin with vanity drawer, frosted double glazed window and large walk-in shower enclosure with fixed glazed screen.


Herringbone pattern brick paved DRIVEWAY provides parking and access to a large GARAGE up and over door, stainless steel sink and fitted base cupboards, wall shelving and Worcester Bosch combination boiler. An iron gate leads to the side of the property with aluminium greenhouse with a further gate to the rear garden. Large, raised west facing patio ideal for afternoon and evening sun, steps down to a shaped lawn with pond, mature shrubbery and hedged borders.

Important Information

  • This is a Freehold property.

Property Ref: EAXML13503_11554724

Share:

Similar Properties

Ty Cadno, Clawddcoch, Cowbridge, The Vale of Glamorgan CF71 7UP

3 Bedroom Bungalow | Asking Price £795,000

A substantial three bedroomed modern home of great proportions with planning permission to enhance further to create a 4...

Great House, Llandow, The Vale of Glamorgan CF71 7NT

7 Bedroom House | Asking Price £785,000

Herbert R Thomas are proud to offer for sale Great House, Llandow; a handsome detached Grade II listed, Gentlemans resid...

Treguff Cottage, Treguff, The Vale of Glamorgan CF71 7FS

5 Bedroom House | Asking Price £780,000

Substantial detached 5 bedroom character house with additional 1 bedroom self-contained flat, requiring general moderni...

Fairways, 8 Tyla Rhosyr, Cowbridge, The Vale of Glamorgan, CF71 7AU

4 Bedroom Detached House | Asking Price £799,950

Situated in an elevated position enjoying far reaching views over Cowbridge and Llanblethian lies this beautifully prese...

The Old School House, School Road, Miskin, CF72 8PG

5 Bedroom House | Offers in excess of £799,995

An immaculately presented detached late Victorian family home with many original features present, beautifully landscape...

Ty Sarn, Rudry, Caerphilly CF83 3DF

4 Bedroom House | Offers in excess of £800,000

An extended, beautifully presented, four double bedroom detached period cottage retaining many characterful features and...

H R Thomas Ltd (Cowbridge)

Cowbridge, South Wales, CF71 7AF

01446 772911

How much is your home worth?

Use our short form to request a valuation of your property.

Request a Valuation

Mortgage Calculator

Amount Borrowed: £
Total Amount Repayable: £
Total Monthly Payment: £
©2025 The Guild of Property Professionals. All rights reserved. Terms and Conditions | Privacy Policy | Cookie Policy | Complaints Policy | Members Login
The Guild of Property Professionals Trading Address: 121 Park Lane, London W1K 7AG. GPEA Limited. Registered in England & Wales.  Company No: 02819824.  Registered Office Address: 2 St. Stephen's Court, St. Stephen's Road, Bournemouth, Dorset, England, BH2 6LA.  VAT Registration No: 576 8795 61
Book a Property Valuation Update Cookies Preferences