Woolston Drive, Hough, CW2

£245,000

3 Bedroom Detached Bungalow for sale in Crewe

1 3 1
  • Bright Living Room – Dual-aspect windows, sliding glass doors, and a central fireplace create a light-filled, inviting space.
  • Versatile Bedroom Layout – Three bedrooms offering flexibility for use as a study, nursery, dining room, or dressing room.
  • Generous Outdoor Space – Fully patio'd rear garden with multiple vegetable patches and a sheltered seating area.
  • Renovation Potential – A fantastic opportunity to modernise and personalise a spacious bungalow in a desirable village location.
  • No Onward Chain – The property is offered with no onward chain, allowing for a quicker, smoother purchase process.

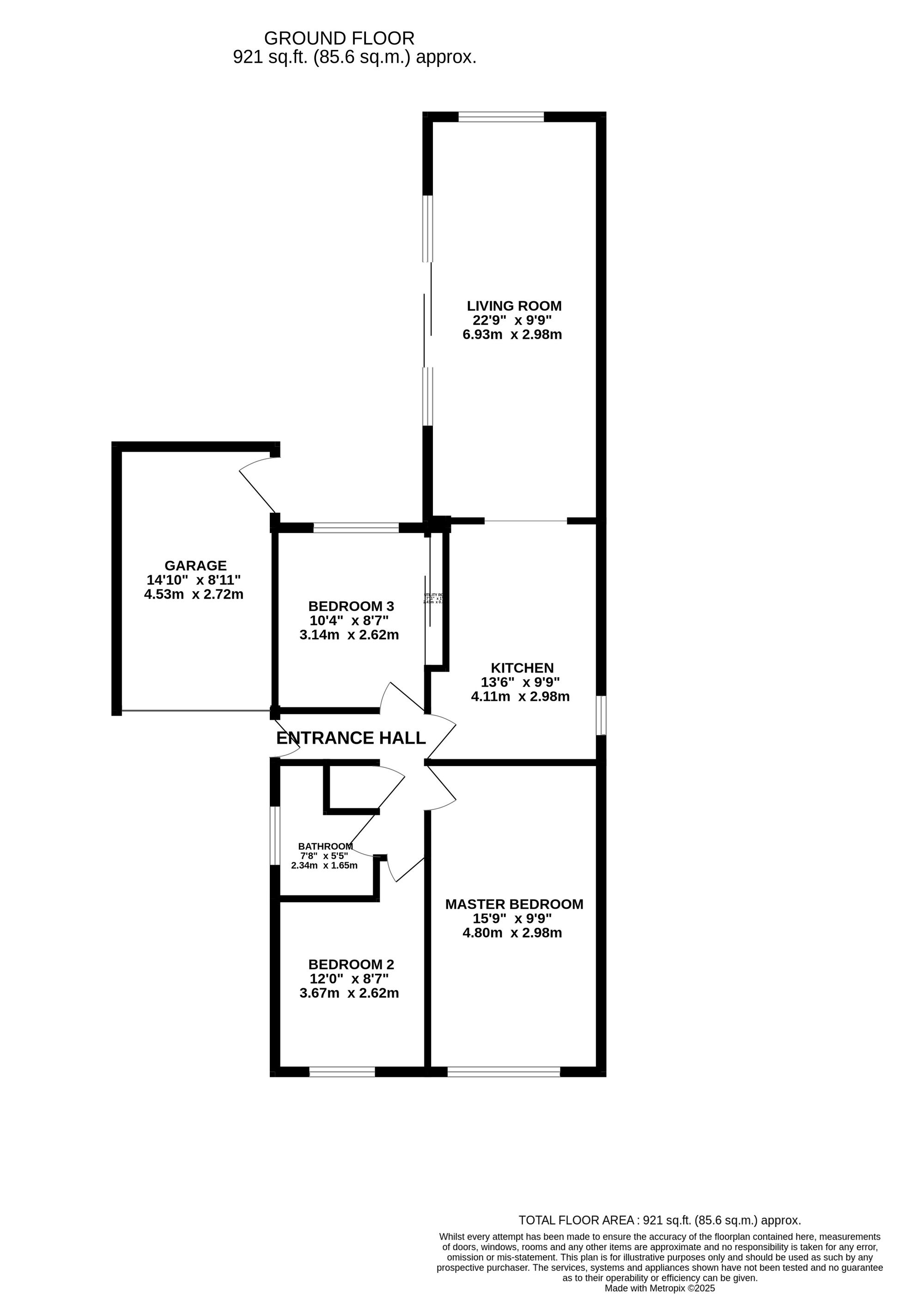
Located in the desirable village of Hough, this three-bedroom detached bungalow is offered with no onward chain, making it an ideal choice for buyers looking for a smooth and speedy purchase. The property presents a rare opportunity for those seeking a home with scope to modernise and personalise. Whether you're an investor, downsizer, or someone wanting to create a forever home, this bungalow provides a solid foundation with excellent potential throughout.

The layout is well-proportioned, offering a practical starting point for a full renovation or cosmetic updates. The spacious living room benefits from dual-aspect windows and sliding glass doors, allowing plenty of natural light and garden views. A central fireplace adds warmth and charm, making this space ideal for transformation into a stylish, contemporary lounge or a cosy traditional sitting room.

The kitchen provides ample room for modernisation, with space for an oven, fridge, and washing machine, alongside generous worktops and storage cupboards. There's plenty of potential here to reconfigure or open up the space to suit a more modern layout or open-plan design.

Bedroom one is a bright and airy double room with a large window. Bedroom two is smaller but lends itself well to use as a dressing room, study, or nursery — perfect for flexible family living. Bedroom three, currently used as a dining room, enjoys a rear aspect overlooking the garden and could easily be repurposed to suit your needs.

The bathroom is fitted with a bath and overhead shower and provides a great canvas for a contemporary upgrade.

Outside, the garage offers valuable extra storage space, ideal for tools, equipment, or garden supplies. The rear garden is fully patioed for easy maintenance and includes several vegetable patches and a sheltered seating area — offering space for outdoor relaxation, entertaining, or further landscaping enhancements.

With its peaceful village setting and the added benefit of no onward chain, this bungalow is ideal for those with vision and creativity, looking to put their own stamp on a property. It’s a wonderful opportunity to craft a personalised living space in a well-connected yet tranquil location.

Location

The village of Hough lies within close proximity to the towns of Nantwich and Crewe where an extensive variety of amenities can be found including large supermarkets, cafes, boutiques, leisure facilities and more. Hough has a local public house called ‘The White Hart’ and a village hall which hosts local community groups and activities. A public bus service is available from the stop by the village hall which provides a service into both Crewe and Nantwich. Hough is conveniently placed on the outskirts of Shavington, the area hosts a selection of schools, from Nurseries to Shavington High School, ideal for families. Hough also offers easy access to the M6 motorway network via the A500 and Crewe Railway Station with direct routes to London, Manchester, Birmingham, Glasgow and beyond, making this a brilliant location for commuters.

Energy Efficiency Current: 63.0
Energy Efficiency Potential: 75.0

Important Information

  • This is a Freehold property.
  • This Council Tax band for this property is: D

Property Ref: 59b0488b-c4fe-4095-922f-47386e059d6e

Share:

Similar Properties

Chadwicke Close, Stapeley, CW5

3 Bedroom Terraced House | Offers in excess of £245,000

Three bedroom townhouse set on the desirable Stapeley estate. Convenient for facilities and close catchment for schools....

Farmleigh Drive, Crewe, CW1

3 Bedroom Detached House | Offers Over £240,000

Attractive 3-bed detached home in Crewe with a private garden, driveway, garage. Ideal for families or investors. Close...

Kings Drive, Wistaston, CW2

3 Bedroom Semi-Detached House | £240,000

3-bed semi-detached home in Wistaston with solar panels, double glazing, spacious lounge, dining room, conservatory, fun...

Laburnum Avenue, Nantwich, CW5

3 Bedroom Terraced House | £250,000

Charming 3-bed terraced property in Nantwich town. Spacious kitchen, cosy lounge with fireplace, sunny courtyard garden....

Wistaston Road, Willaston, CW5

3 Bedroom Semi-Detached House | £250,000

Delightful 3-bed semi in Willaston village. Blend of period charm and modern living. Original features, spacious rooms,...

Stanyer Court, Nantwich, CW5

4 Bedroom Terraced House | £250,000

Beautiful 4-bed townhouse in Stapeley Estate. Flexible living space, modern interior, enclosed garden, private parking....

James Du Pavey Estate Agents (Nantwich)

52 Pillory St, Nantwich, Cheshire, CW5 5BG

01270 445678

How much is your home worth?

Use our short form to request a valuation of your property.

Request a Valuation

Mortgage Calculator

Amount Borrowed: £
Total Amount Repayable: £
Total Monthly Payment: £
©2025 The Guild of Property Professionals. All rights reserved. Terms and Conditions | Privacy Policy | Cookie Policy | Complaints Policy | Members Login
The Guild of Property Professionals Trading Address: 121 Park Lane, London W1K 7AG. GPEA Limited. Registered in England & Wales.  Company No: 02819824.  Registered Office Address: 2 St. Stephen's Court, St. Stephen's Road, Bournemouth, Dorset, England, BH2 6LA.  VAT Registration No: 576 8795 61
Book a Property Valuation Update Cookies Preferences