Douglas Forrest Close, Crewe

Guide Price
£220,000
SSTC
This property listing is now SSTC

3 Bedroom Townhouse for sale in Crewe

3
  • Modern Three Storey Townhouse
  • Cul-De-Sac Setting
  • Desirable location
  • 3 Bathrooms
  • En-Suite To Master
  • Garden
  • Driveway

UNEXPECTEDLY BACK ON THE MARKET.
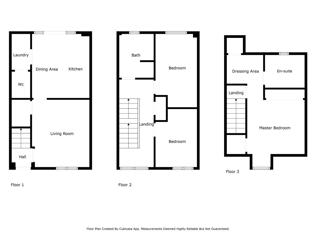
Situated on a popular residential development and nestled within a small cul-de-sac is this and spacious three bedroom townhouse offering the perfect blend of modern living and functionality. Comprising in brief, reception hall, lounge, dining kitchen, WC, three bedrooms, en suite, and the family bathroom. Externally the property has a driveway and gardens.

Council Tax Band: B (Cheshire East)
Tenure: Freehold
Parking options: Off Street
Garden details: Private Garden
Electricity supply: Mains
Heating: Gas Mains
Water supply: Mains
Broadband: ADSL


Access
Approached over a paved pathway leading to the covered entrance porch and the composite double glazed panelled entrance door giving access into the reception hall.

Reception Hall
Having a double panelled radiator, stairs rising to the first floor, door leading into the lounge.

Lounge w: 3.51m x l: 4.11m (w: 11' 6" x l: 13' 6")
Good sized lounge with a uPvc double glazed panelled window to the front elevation, double panelled radiator, door into the under stair storage cupboard and door through to the dining kitchen.

Dining kitchen w: 3.91m x l: 3.5m (w: 12' 10" x l: 11' 6")
Good sized dining kitchen fitted with a range of wall, base and drawer units with roll top work surfaces over incorporating a one and a half bowl resin sink unit with mixer tap, built in four ring electric hob with extractor over and stainless steel splash back, built in eye level electric double oven, space for fridge freezer, space for table and chairs, double panelled radiator, uPvc double glazed panelled doors leading to the rear garden, opening into the utility area with space for washer, wall mounted central heating boiler concealed within a kitchen cupboard, door into the ground floor claokroom.

Cloakroom w: 1.13m x l: 1.62m (w: 3' 8" x l: 5' 4")
Having a push button low level WC, wall mounted wash hand basin with complimentary splash back tiling.

FIRST FLOOR:
Landing with doors to all rooms, built in cupboard housing the water cylinder, stairs rising to the second floor, double panelled radiator, uPvc double glazed panelled window to the front elevation.

Bedroom 2 w: 2.53m x l: 4.47m (w: 8' 4" x l: 14' 8")
Good sized double room, with uPvc double glazed panelled window to the front elevation, double panelled radiator.

Bedroom 3 w: 2.54m x l: 3.54m (w: 8' 4" x l: 11' 7")
Another good sized double room with uPvc double glazed panelled window to the rear elevation, double panelled radiator.

Bathroom
Fitted with a four piece suite comprising of a push button low level WC, pedestal wash hand basin with mixer tap, panelled bath with mixer tap / shower attachment over, walk in shower cubicle with glazed sliding door housing a mixer shower, inset spot lighting, heated towel rail, uPvc double glazed frosted window to the rear elevation.

SECOND FLOOR:
Small landing with door into the master suite.

Master bedroom w: 3.49m x l: 4.1m (w: 11' 5" x l: 13' 5")
Occupying the whole top floor, the master bedroom has uPvc double glazed panelled window to the front elevation, double glazed roof window to the rear elevation, built in triple wardrobe with mirrored floor to ceiling sliding doors, two further storage cupboards to the eaves, double panelled radiator, door into the en-suite.

En-suite w: 2.4m x l: 2m (w: 7' 10" x l: 6' 7")
Having double glazed panelled roof window to the rear elevation, three piece suite comprising of a pedestal wash hand basin with mixer tap, push button low level WC, walk in shower cubicle with glazed sliding door housing a mixer shower, inset spot lighting, double panelled radiator.

Externally
To the front of the property there is a small well stocked garden and covered porch.
To the rear of the property there is an enclosed garden with fenced boundaries being mainly laid to lawn and an access gate leading to the driveway which provides off road parking for several vehicles.

Energy Performance
The current rating is 84 with a potential of 94.

Viewings
Viewings are strictly by appointment only, please call or email the office. Thank you.

Looking to sell?
If you are thinking of selling please call or email the office to arrange a free market appraisal. Thank you.

Important Information

  • This is a Freehold property.

Property Ref: 632445_RS0538

Share:

Similar Properties

Birchmuir Close,, Crewe

3 Bedroom Detached House | £220,000

Situated in a popular residential location within a cul-de-sac is this three bedroom detached home with gardens and driv...

Cartwright Road Haslington

2 Bedroom Semi-Detached House | Offers in region of £210,000

A spacious semi detached home in the heart of the village of Haslington, offered for sale with no upward chain.

Merrills Avenue, Crewe

2 Bedroom Semi-Detached Bungalow | Offers Over £210,000

Stunning, fully modernised, two bedroom, semi detached true Bungalow, designed with a modern contemporary feel throughou...

5a Queens Park Drive, Crewe

3 Bedroom Detached Bungalow | £225,000

Offered for sale with no upward chain is this mature detached true bungalow situated in a sought after location opposite...

Coppice Road, Willaston, Nantwich

3 Bedroom Semi-Detached Bungalow | £230,000

UNEXPECTEDLY BACK ON THE MARKET. Situated in the popular and sought after village of Willaston and offered for sale with...

Flixton Drive, Crewe

3 Bedroom Semi-Detached House | Offers in region of £230,000

A mature semi detached family home situated in a popular residential location, offered for sale with no upward chain.

Wheatcroft & Lloyd (Sandbach)

Sandbach, Cheshire, CW11 1AL

01270 382283

How much is your home worth?

Use our short form to request a valuation of your property.

Request a Valuation

Mortgage Calculator

Amount Borrowed: £
Total Amount Repayable: £
Total Monthly Payment: £
©2025 The Guild of Property Professionals. All rights reserved. Terms and Conditions | Privacy Policy | Cookie Policy | Complaints Policy | Members Login
The Guild of Property Professionals Trading Address: 121 Park Lane, London W1K 7AG. GPEA Limited. Registered in England & Wales.  Company No: 02819824.  Registered Office Address: 2 St. Stephen's Court, St. Stephen's Road, Bournemouth, Dorset, England, BH2 6LA.  VAT Registration No: 576 8795 61
Book a Property Valuation Update Cookies Preferences