Witham Close, Crewe

£290,000

3 Bedroom Detached Bungalow for sale in Crewe

3
  • Detached Bungalow
  • Desirable location
  • Cul-De-Sac Setting
  • Three Bedrooms
  • Large driveway
  • Garage
  • Viewings Highly Recommended

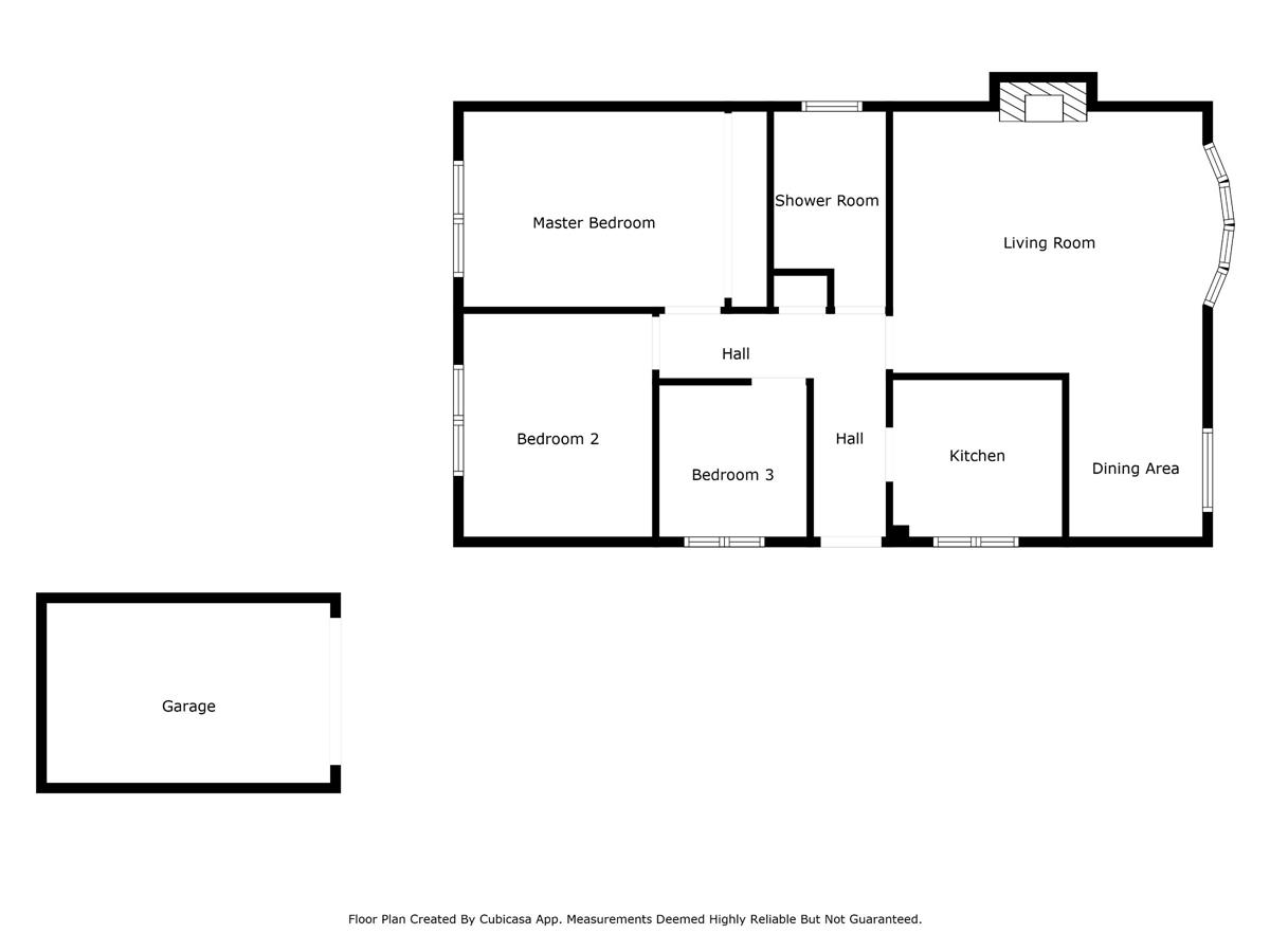
A spacious detached three bedroom true bungalow nestled within a small cul-de-sac and situated in a popular residential location. Comprising in brief, reception hall, lounge / dining room, kitchen, three bedrooms and the shower room. Externally the property benefits from gardens to both front and rear and a detached single garage. Viewings are highly recommended.

Council Tax Band: D (Cheshire East)
Tenure: Freehold
Parking options: Driveway, Garage
Garden details: Rear Garden
Electricity supply: Mains
Heating: Gas Mains
Water supply: Mains
Sewerage: Mains
Broadband: ADSL


Access
Approached over a Tarmacadam driveway leading to the uPvc double glazed frosted panelled entrance door giving access into the reception hall.

Reception Hall
Having tiled flooring, single radiator concealed behind a decorative radiator cover, loft access point, built in storage cupboard, doors to all rooms.

Living / Dining w: 5.07m x l: 6.98m (w: 16' 8" x l: 22' 11")
L-shaped lounge / dining room with two uPvc double glazed Georgian bar windows to the front elevation, two double panelled radiators, feature wooden fire surround housing an electric fire with additional gas point, coved ceiling.

Kitchen w: 2.6m x l: 2.4m (w: 8' 6" x l: 7' 10")
Having tiled flooring, wall mounted central heating boiler, space for washer, space for fridge freezer. The kitchen is fitted with a range of wall, base and drawer units with roll top work surfaces over incorporating a stainless steel single drainer sink unit with mixer tap and complimentary splash back tiling, built in four ring electric induction hob with extractor over and built in eye level double oven, uPvc double glazed panelled Georgian bar window to the side elevation.

Bedroom 1 w: 4.01m x l: 2.98m (w: 13' 2" x l: 9' 9")
Good sized double room with uPvc double glazed panelled Georgian bar window overlooking the rear garden, single radiator, range of built in wardrobes with floor to ceiling sliding doors.

Bedroom 2 w: 2.9m x l: 3.43m (w: 9' 6" x l: 11' 3")
A further double room with uPvc double glazed panelled Georgian bar window to the rear elevation, single radiator.

Bedroom 3 w: 2.26m x l: 2.33m (w: 7' 5" x l: 7' 8")
Good sized single bedroom with uPvc double glazed panelled Georgian bar window to the side elevation, single panelled radiator.

Shower room w: 1.72m x l: 3m (w: 5' 8" x l: 9' 10")
Fitted with a three piece suite comprising of a push button low level WC with concealed cistern, vanity unit wash hand basin with mixer tap and storage cupboard below, walk in shower cubicle with glazed sliding door housing a electric shower, tiled flooring, heated towel rail finished in chrome, uPvc double glazed frosted panelled Georgian bar window to the side elevation, complimentary wall tiling where visible.

Externally
To the front of the property there is a good sized lawn garden with borders housing a variety of trees, shrubs and plants, there is also a Tarmacadam driveway providing off road which extends along the side of the property leading to the detached single garage.

To the rear of the property there is a good sized lawn garden with hedged boundaries, a paved patio allowing ample space for garden furniture, outside tap, outside light,

Garage w: 4.36m x l: 2.77m (w: 14' 4" x l: 9' 1")
Detached single garage with up and over door to the front, power and lighting.

Energy Performance
The current rating is 59 with a potential of 84 .

Viewings
Viewings are strictly by appointment only, please call or email the office. Thank you.

Looking to sell?
If you are thinking of selling please call or email the office to arrange a free market appraisal. Thank you.

Important Information

  • This is a Freehold property.

Property Ref: 632445_RS0580

Share:

Similar Properties

Primrose Avenue, Crewe

3 Bedroom Semi-Detached House | £280,000

Offered for sale with no upward chain is this spacious three bedroom semi detached family home, benefitting from a large...

Becconsall Drive, Crewe

3 Bedroom Detached House | £270,000

A three bedroom detached family home situated in a popular residential location and offered for sale with no upward chai...

Church Lane, Sandbach

2 Bedroom Detached Bungalow | Offers in region of £270,000

A detached two bedroom true bungalow situated in a popular semi rural location.

Canal Road, Congleton

3 Bedroom End of Terrace House | £295,000

Imposing, double fronted, end of terrace Georgian property with generous rooms. Retaining original features including pl...

Becconsall Drive, Crewe

4 Bedroom Detached House | Offers in region of £300,000

A Beautifully presented 4 bedroom, detached family home with Orangery and an impressive, enclosed rear garden with sun l...

Mallow Avenue, Shavington, Crewe

3 Bedroom Detached House | Offers in region of £300,000

We are delighted to offer for sale this beautifully presented 3 bedroom detached family home in the picturesque village...

Wheatcroft & Lloyd (Sandbach)

Sandbach, Cheshire, CW11 1AL

01270 382283

How much is your home worth?

Use our short form to request a valuation of your property.

Request a Valuation

Mortgage Calculator

Amount Borrowed: £
Total Amount Repayable: £
Total Monthly Payment: £
©2025 The Guild of Property Professionals. All rights reserved. Terms and Conditions | Privacy Policy | Cookie Policy | Complaints Policy | Members Login
The Guild of Property Professionals Trading Address: 121 Park Lane, London W1K 7AG. GPEA Limited. Registered in England & Wales.  Company No: 02819824.  Registered Office Address: 2 St. Stephen's Court, St. Stephen's Road, Bournemouth, Dorset, England, BH2 6LA.  VAT Registration No: 576 8795 61
Book a Property Valuation Update Cookies Preferences