Franklyn Avenue, Crewe

Offers Over
£175,000
SSTC
This property listing is now SSTC

3 Bedroom Semi-Detached House for sale in Crewe

3
  • Fantastic Investment Opportunity
  • In need of renovation and repair
  • 3 Bedrooms
  • 2 Reception rooms
  • Bathrooom
  • Detached garage
  • Double Glazing
  • Driveway
  • Enclosed rear garden
  • No Onward Chain

We are pleased to offer for sale WITH NO ONWARD CHAIN, this mature semi-detached property in need of renovation and repair to create a stunning family home in a hugely popular residential location with excellent commuter links and close to highly regarded schools and South Cheshire College. Boasting several original features and an enclosed large rear garden the property in brief comprises: 2 generous reception rooms, kitchen, 3 bedrooms, family bathroom, detached garage, and outbuildings to rear.

Council Tax Band: c (Cheshire East)
Tenure: Freehold
Parking options: Driveway, Garage
Garden details: Enclosed Garden, Rear Garden
Electricity supply: Mains
Heating: Electric
Water supply: Mains
Sewerage: Mains


Access
Sitting behind a low red brick wall and lawned front garden the property is approached over a paved driveway to a glazed uPvc front door which opens into:

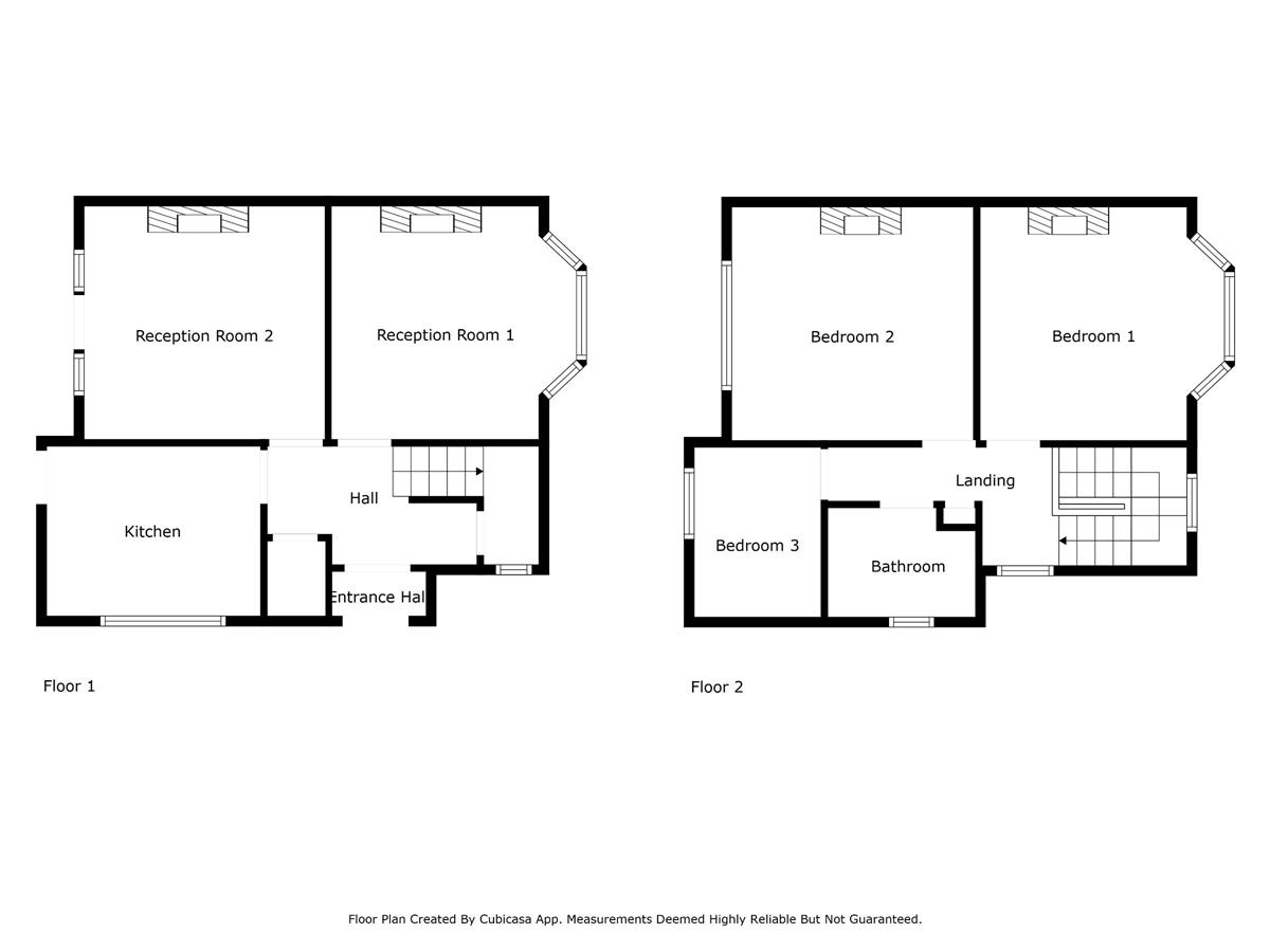
Entrance Hall
With quarry tiled floor and attractive stained glass window to front elevation. A modesty glazed wooden door leads into:

Reception Hall
Having stairs rising to first floor landing, understairs cupboard and doors off to both reception rooms, pantry and kitchen.

Reception Room 1 w: 3.72m x l: 3.55m (w: 12' 2" x l: 11' 8")
A generous room with feature fireplace, picture rails and walk in uPvc bay window with leaded lights.

Reception Room 2 w: 3.66m x l: 3.55m (w: 12' x l: 11' 8")
Another generous room with gas fire, picture rail and uPvc picture window and door with decorative glazing.

Pantry
With wooden shelving.

Kitchen w: 3.25m x l: 2.58m (w: 10' 8" x l: 8' 6")
Good sized kitchen with a variety of wooden units and stainless steel sink. uPvc double glazed window to side elevation. Wooden door to rear garden.

Stairs
Leading to first floor landing with decoratively glazed uPvc window to half landing and again at the top of the stairs. Landing has doors off to all bedrooms, airing cupboard and family bathroom.

Bedroom 1 w: 3.71m x l: 3.55m (w: 12' 2" x l: 11' 8")
Large double room having walk in uPvc double glazed bay window with leaded lights, picture rail and feature fireplace.

Bedroom 2 w: 3.67m x l: 3.55m (w: 12' x l: 11' 8")
Another double room with picture rail, feature fireplace and uPvc double glazed window to rear elevation.

Bedroom 3 w: 1.92m x l: 2.58m (w: 6' 4" x l: 8' 6")
Good sized single room with picture rail and uPvc double glazed window to rear elevation.

Bathroom
Fitted with a 3 piece suite comprising panelled cast iron bath with electric shower over, Low level W.C., pedestal wash hand basin with tiled splashback. Modesty glazed window to side elevation.

Externally
The front garden is laid to lawn. The paved driveway leads to the side of the property and in turn to the detached double garage and to the rear garden. The rear garden is fenced and hedged on all boundaries.

Energy Performance
The current rating is 36 with a potential of 80

About Crewe
When most people think of Crewe, they think of railways. During the 19th century Crewe was one of the world's greatest railway workshops and was a hotbed of craft and invention, building elegant locomotives that brought wealth and prestige to the town.

Crewe's got a lot more to offer than just trains. There's a thriving live music scene, as well as a range of shops, bars, pubs and restaurants. Take a stroll in Queen's Park, a traditional Victorian park that is being restored to her former glory or take in a show at the award winning Crewe Lyceum.

Crewe is also home to the famous Crewe Alexandra Football Club - aptly nicknamed the Railwaymen!

Viewings
Viewings are strictly by appointment only. Please call or email the office to arrange. Thank you.

Looking to sell?
If you are thinking of selling please call or email the office to arrange a free Market Appraisal. Thank you.

Important Information

  • This is a Freehold property.

Property Ref: 632445_RS0566

Share:

Similar Properties

Mirion Street, Crewe

3 Bedroom Semi-Detached House | £175,000

We are thrilled to offer for sale what is going to be a stunning 3 bedroomed, semi detached family home currently underg...

London Road, Sandbach

2 Bedroom Terraced House | £175,000

We are pleased to offer for sale this charming 2 double bedroomed mid terraced cottage with delightful enclosed cottage...

Booth Avenue, Sandbach

2 Bedroom Semi-Detached House | Offers Over £175,000

A fabulous opportunity for first time buyers or investors. 2 bedroom semi detached home located in a highly popular resi...

Pyms Lane, Crewe

3 Bedroom Mews House | Offers in region of £180,000

A spacious three bedroom, three storey townhouse benefiting from en-suite facilities to further compliment the family ba...

Remer Street, Crewe

3 Bedroom Semi-Detached House | £190,000

A mature three bedroom semi detached family home offered for sale with no upward chain.

Ursuline Way, Crewe

3 Bedroom Townhouse | Offers in region of £190,000

Modern 3 storey townhouse in a sought after location.

Wheatcroft & Lloyd (Sandbach)

Sandbach, Cheshire, CW11 1AL

01270 382283

How much is your home worth?

Use our short form to request a valuation of your property.

Request a Valuation

Mortgage Calculator

Amount Borrowed: £
Total Amount Repayable: £
Total Monthly Payment: £
©2025 The Guild of Property Professionals. All rights reserved. Terms and Conditions | Privacy Policy | Cookie Policy | Complaints Policy | Members Login
The Guild of Property Professionals Trading Address: 121 Park Lane, London W1K 7AG. GPEA Limited. Registered in England & Wales.  Company No: 02819824.  Registered Office Address: 2 St. Stephen's Court, St. Stephen's Road, Bournemouth, Dorset, England, BH2 6LA.  VAT Registration No: 576 8795 61
Book a Property Valuation Update Cookies Preferences