Booth Avenue, Sandbach

Offers Over
£175,000
SSTC
This property listing is now SSTC

2 Bedroom Semi-Detached House for sale in Sandbach

2
  • 2 Bedrooms
  • Conservatory
  • Cul-De-Sac Setting
  • Driveway
  • Easy access to M6 and Sandbach Town
  • Enclosed rear garden
  • First Time Buyer home
  • Freehold
  • No Onward Chain

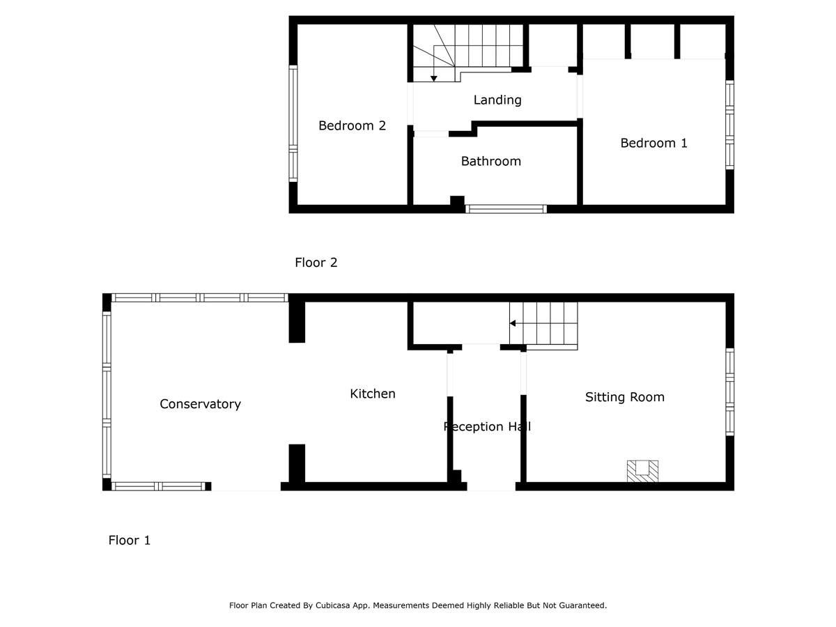
We are pleased to offer for sale WITH NO ONWARD CHAIN a fabulous opportunity for first time buyers or investors. 2 bedroom semi detached home located in a highly popular residential location. Offered for sale with no onward chain. In brief the property comprises, 2 bedrooms, family bathroom, generous sitting room, fitted kitchen, large conservatory. Ample driveway.

Council Tax Band: B (Cheshire East)
Tenure: Freehold
Parking options: Driveway
Garden details: Enclosed Garden, Rear Garden
Electricity supply: Mains
Heating: Gas Mains
Water supply: Mains
Sewerage: Mains


Access
Sitting at the head of a quiet cul-de-sac the property is approached over a paved driveway which leads to the part decoratively glazed composite front door, under porch which leads into:

Reception Hall
Having doors off to kitchen and sitting room. Understairs storage cupboard. Laminate flooring.

Kitchen w: 2.94m x l: 3.35m (w: 9' 8" x l: 11' )
Fitted with a range of light oak effect wall, base and drawer units incorporating a single bowl sink and drainer with mixer tap, wall mounted central heating boiler, electric oven with four ring gas burner hob and extractor over, integrated fridge/freezer, space for washing machine, part tiled walls. Opening into:

Conservatory w: 3.3m x l: 3.33m (w: 10' 10" x l: 10' 11")
Generous conservatory with radiator, laminate flooring, uPvc double doors to side elevation.

Sitting Room w: 3.7m x l: 3.35m (w: 12' 2" x l: 11' )
Good sized sitting room with feature fireplace housing an electric log burner, uPvc double glazed bay window, stairs rising to first floor landing, laminate flooring continued through from the reception hall. Radiator.

Landing
With loft access, doors off to both bedrooms and family bathroom. Inset spotlighting and over stairs storage cupboard.

Bathroom
Fitted with a 3 piece suite comprising panelled bath with electric shower over and mixer tap, low level W.C., pedestal wash hand basin with mixer tap, modesty glazed window to rear elevation, inset spotlighting, radiator and part tiled walls.

Bedroom 1 w: 2.65m x l: 2.71m (w: 8' 8" x l: 8' 11")
Good sized double room with uPvc double glazed window to front elevation, wall of fitted wardrobes, radiator.

Bedroom 2 w: 2.04m x l: 3.34m (w: 6' 8" x l: 10' 11")
Single room with uPvc double glazed window to rear elevation. Radiator.

Externally
The front of the property is laid to lawn with shrub borders. The paved driveway leads along the side of the property and through a wooden access to gate to the rear garden which is also laid to lawn with decking area for outside entertaining and patio.

Energy Performance
The current rating is 61 with a potential of 78.

About Sandbach
Sandbach is a market town. The Charter Market takes place every Thursday, with regular Saturday markets and specialist markets taking place in the Town throughout the year. Sandbach is home to a fantastic array of independent stores offering a wide variety of products, with caf?s, restaurants and hostelries providing a tempting and diverse selection of food and drink for daytime and evening visitors to the Town. Whether visiting the award winning parks and play areas, the ancient Saxon Crosses, shopping or watching the world go by from a local venue. Keep an eye out for the wonderful Town Crier often in the Town Centre. A host of excellent schools with Sandbach School having a strong local and national reputation for excellence. One of the top performing schools in Cheshire East. With excellent commuter links, prominent walking routes and a thriving town centre Sandbach is a perfect place to live.

Viewings
Viewings are strictly by appointment only. Please call or email the office to arrange. Thank you.

Looking to sell?
If you are thinking of selling please call or email the office to book a free Market Appraisal. Thank you.

Please note
The photographs contained in this brochure are provided by the current owner.

Important Information

  • This is a Freehold property.

Property Ref: 632445_RS0576

Share:

Similar Properties

Mirion Street, Crewe

3 Bedroom Semi-Detached House | £175,000

We are thrilled to offer for sale what is going to be a stunning 3 bedroomed, semi detached family home currently underg...

London Road, Sandbach

2 Bedroom Terraced House | £175,000

We are pleased to offer for sale this charming 2 double bedroomed mid terraced cottage with delightful enclosed cottage...

Franklyn Avenue, Crewe

3 Bedroom Semi-Detached House | Offers Over £175,000

We are pleased to offer for sale WITH NO ONWARD CHAIN, this mature semi-detached property in need of renovation and repa...

Pyms Lane, Crewe

3 Bedroom Mews House | Offers in region of £180,000

A spacious three bedroom, three storey townhouse benefiting from en-suite facilities to further compliment the family ba...

Remer Street, Crewe

3 Bedroom Semi-Detached House | £190,000

A mature three bedroom semi detached family home offered for sale with no upward chain.

Ursuline Way, Crewe

3 Bedroom Townhouse | Offers in region of £190,000

Modern 3 storey townhouse in a sought after location.

Wheatcroft & Lloyd (Sandbach)

Sandbach, Cheshire, CW11 1AL

01270 382283

How much is your home worth?

Use our short form to request a valuation of your property.

Request a Valuation

Mortgage Calculator

Amount Borrowed: £
Total Amount Repayable: £
Total Monthly Payment: £
©2025 The Guild of Property Professionals. All rights reserved. Terms and Conditions | Privacy Policy | Cookie Policy | Complaints Policy | Members Login
The Guild of Property Professionals Trading Address: 121 Park Lane, London W1K 7AG. GPEA Limited. Registered in England & Wales.  Company No: 02819824.  Registered Office Address: 2 St. Stephen's Court, St. Stephen's Road, Bournemouth, Dorset, England, BH2 6LA.  VAT Registration No: 576 8795 61
Book a Property Valuation Update Cookies Preferences