Crowntown, Helston

Guide Price
£280,000

2 Bedroom Country House for sale in Crowntown

1 2 1
  • TWO BEDROOM SEMI DETACHED COTTAGE FOR REFURBISHMENT
  • SET IN LARGE GARDENS APPROACHING A THIRD OF AN ACRE
  • LOWER PART OF THE GARDEN HAS PLANNING CONSENT FOR A THREE BEDROOM DWELLING
  • FANTASTIC OPPORTUNITY TO CREATE A HOME WITH FABULOUS GARDENS OR FOR A DEVELOPER TO MAXIMISE THE POTENTIAL OF THE SITE
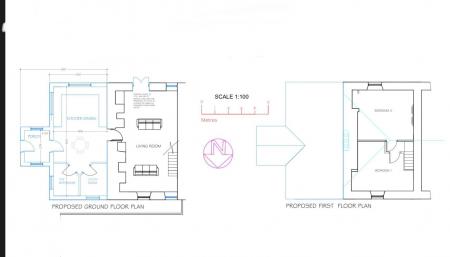
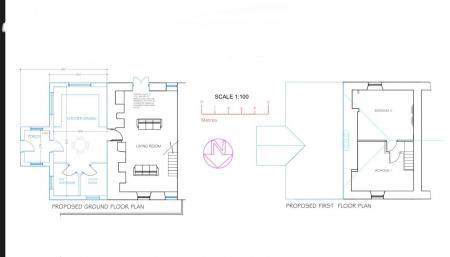
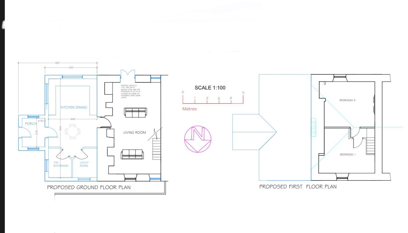
  • THE COTTAGE BENEFITS FROM PLANNING CONSENT FOR AN GROUND FLOOR EXTENSION
  • SEMI-RURAL SETTING
  • GREAT OPPORTUNITY
  • FREEHOLD
  • COTTAGE COUNCIL TAX BAND B
  • EPC - F33

This exceptional opportunity comprises a two-bedroom semi-detached cottage, in need of refurbishment with a particularly large garden extending to approximately one third of an acre, with the lower part of the garden benefitting from planning consent for the construction of a detached three-bedroom home.

Located in a delightful semi-rural setting, the property offers enormous potential - whether you're seeking a character cottage to refurbish and enjoy with its extensive gardens, or a development project combining the refurbishment of the existing dwelling with the creation of an additional new home.

The existing cottage is in need of complete refurbishment but already benefits from planning consent for a ground floor extension, designed to greatly enhance the living space. As it stands, the accommodation comprises a sitting room, kitchen/breakfast room and shower room on the ground floor, with two double bedrooms upstairs. The approved plans reimagine the layout to include a spacious dual-aspect lounge with access to the garden, a generous kitchen/breakfast room, utility room, bathroom and side porch, while retaining the two double bedrooms on the first floor.

A true highlight of this property is the wonderful garden, unusually large for a cottage of this size and backing onto open countryside. Beautifully planted with mature trees and shrubs, it offers exceptional privacy and a real sense of tranquility. The garden is arranged in two main sections - one directly accessed from the cottage with a useful block-built outhouse, and a further area beyond, currently home to a dilapidated greenhouse, which would lend itself perfectly to a productive kitchen garden or further landscaping.

To the North of the cottage, the building plot has planning permission granted for a detached, two-storey dwelling of approximately 101.85 sq. metres, or could simply be utilised as part of the garden.

Location - The property is located in the small hamlet of Polgarth, just outside Crowntown is semi-rural hamlet growing in popularity and for good reason. Well placed for access to both the north and south coast, each of which offer stunning beaches. The property is also convenient for the surrounding countryside and good walking. It is easy to connect to the A30 and to access more major towns such as Truro, Camborne and Redruth as well as nearby Helston and The Lizard Peninsula. The property is also within reach the well regarded Sithney Primary School.

The Accommodation Comprises (Dimensions Approx) - With door to:

Hallway - With stairs to the first floor and opening to the sitting room.

Sitting Room - 3.66m x 3.20m (12' x 10'6") - With window to the front, beamed ceiling, gas fire (not tested) in fireplace mantle over and tiled hearth. Under stairs storage cupboard.

Kitchen/Diner - 3.96m x 3.73m (13' x 12'3") - With window to rear and door to the rear garden. Working top surfaces incorporating a sink with drainer and mixer tap over. Partially tiled walls and a beamed ceiling. Door and steps down to the:

Shower Room - Comprising of a shower cubicle, partially tiled walls, wash basin and window. Opening to the:

W.C. - Having a low level w.c.

Stairs And Landing - With doors to both bedrooms.

Bedroom One - 4.19m (narrowing to 4.04m) x 3.73m (13'9" (narrowi - With window to rear with window seat overlooking the garden. Built in cupboard housing water tank and immersion heater. Loft access.

Bedroom Two - 4.72m (narrowing to 34.44m) x 3.73m (15'6" (narrow - With window to front with window seat.

Outside - The property enjoys a generous plot with gardens to the side and rear that are exceptionally large for the type and style of the property. The entrance area provides for parking and turning and the lower meadow has consent for a dwelling. Stepping outside from the cottage you find yourself in a gorgeous lawned garden, stocked with mature trees and shrubs, offering an excellent degree of privacy and a real feeling of being in nature. There is an overgrown patio area with useful external power sockets and an outside tap. as well as a block built outhouse. There is a further garden area, also of good size, with a dilapidated greenhouse. This part of the garden would make a super produce garden if desired.

Outbuilding - A useful block built outbuilding with door and window to front.

Agents Note - Full details of the planning can be found on the online planning register under reference - PA24/09737. There is a CIL payment to be made on the development of ?12,523.07, this does not apply to self build clients who plan to live in the property themselves. The plot is un-serviced.

Agents Note Two - We are advised that the property may be partly constructed of cob.

Mobile And Broadband - To check the broadband coverage for this property please visit -
https://www.openreach.com/fibre-broadband
To check the mobile phone coverage please visit -
https://checker.ofcom.org.uk/

Anti-Money Laundering - We are required by law to ask all purchasers for verified ID prior to instructing a sale

Proof Of Finance - Purchasers - Prior to agreeing a sale, we will require proof of financial ability to purchase, which will include an agreement in principle for a mortgage and/or proof of cash funds.

Date Details Prepared. - 15th October 2025.

Property Ref: 34246021

Share:

Similar Properties

Manor Close, Helston

3 Bedroom End of Terrace House | Guide Price £280,000

An opportunity to purchase a beautifully presented, three bedroom end of terrace house with garage in the Cornish market...

Castle Drive, Praa Sands

2 Bedroom Terraced Bungalow | Guide Price £279,000

A stone's throw from the beach, this two-bedroom property is brimming with potential. Offering generous living space, ga...

Henrys Croft, The Lizard, Helston

3 Bedroom Terraced House | Guide Price £275,000

Having been operated as a successful holiday home for a number of years, the property equally lends itself to those seek...

Tregellas Road, Mullion, Helston

3 Bedroom Semi-Detached Bungalow | Guide Price £285,000

An opportunity to purchase a very nicely presented three-bedroom semi-detached bungalow in this highly regarded coastal...

Croft Parc, The Lizard

3 Bedroom Detached Bungalow | Guide Price £289,950

A lovely semi detached three bedroom dormer bungalow with sea glimpses, driveway parking, a garage and appealing gardens...

St. Elvan Crescent, Porthleven, Helston

3 Bedroom Detached Bungalow | Guide Price £290,000

Cherished by its last owners for nearly five decades, this detached three-bedroom bungalow is set within a highly sought...

Christophers Estate Agents Porthleven (Porthleven)

Fore St, Porthleven, Cornwall, TR13 9HJ

01326 573737

How much is your home worth?

Use our short form to request a valuation of your property.

Request a Valuation

Mortgage Calculator

Amount Borrowed: £
Total Amount Repayable: £
Total Monthly Payment: £
©2026 The Guild of Property Professionals. All rights reserved. Terms and Conditions | Privacy Policy | Cookie Policy | Complaints Policy | Members Login
The Guild of Property Professionals Trading Address: 121 Park Lane, London W1K 7AG. GPEA Limited. Registered in England & Wales.  Company No: 02819824.  Registered Office Address: 2 St. Stephen's Court, St. Stephen's Road, Bournemouth, Dorset, England, BH2 6LA.  VAT Registration No: 576 8795 61
Book a Property Valuation Update Cookies Preferences