Helston Road, Germoe

Guide Price
£200,000

Land for sale in Germoe Penzance

  • BUILDING PLOT
  • PLANNING CONSENT FOR A FOUR BEDROOM DETACHED DWELLING
  • SUPERB LOCATION CLOSE TO PRAA SANDS
  • EXCELLENT OPPORTUNITY FOR DEVELOPERS OR A CHANCE TO CREATE YOUR DREAM HOME
  • EPC PENDING
  • COUNCIL TAX BAND NOT YET ALLOCATED

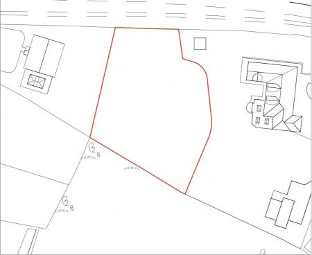
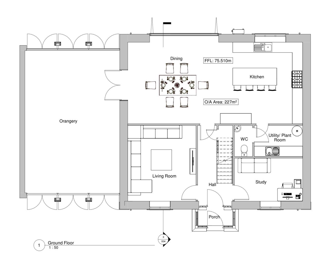
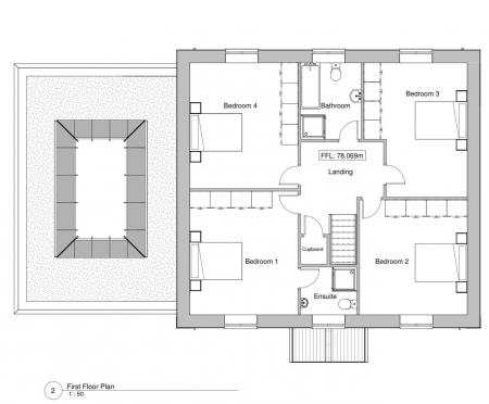
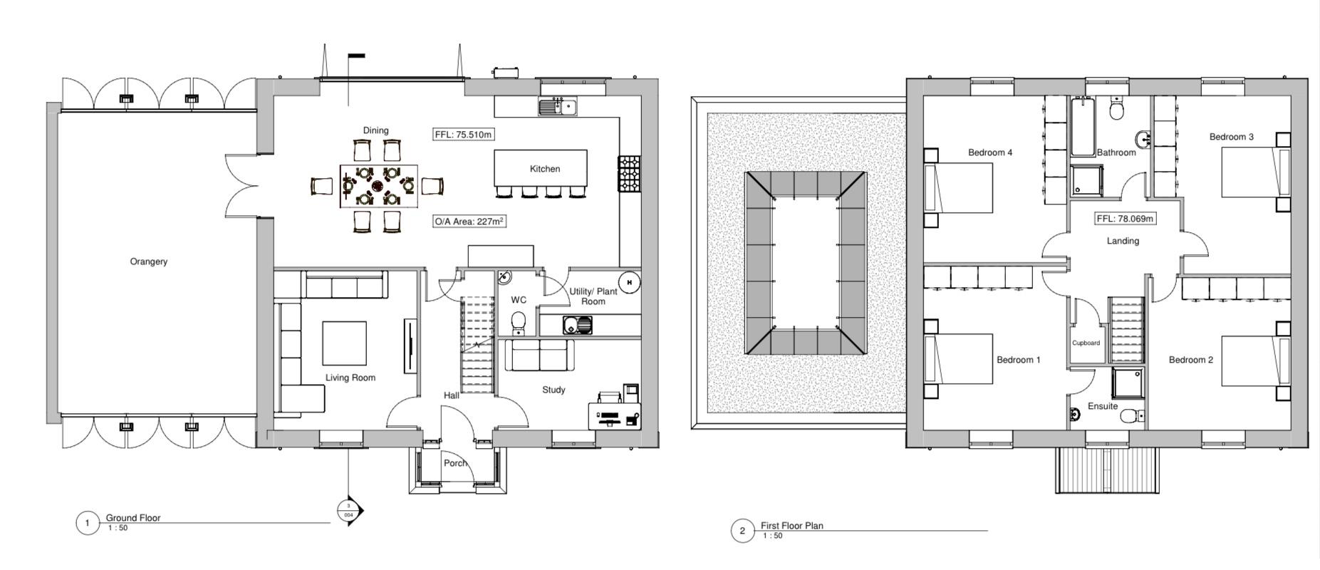
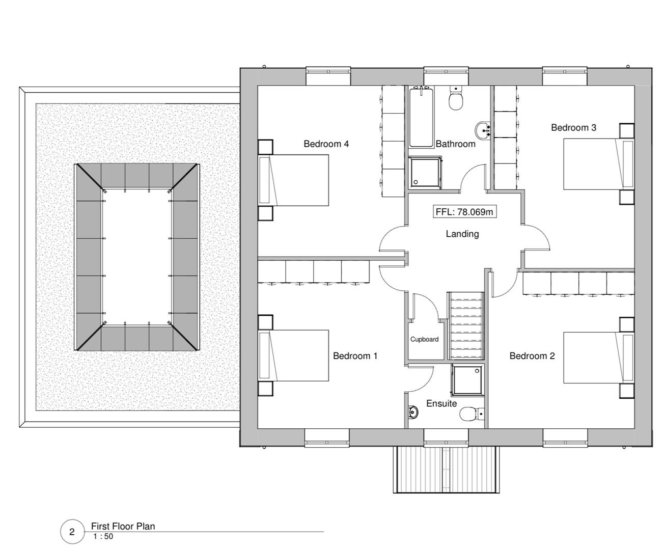
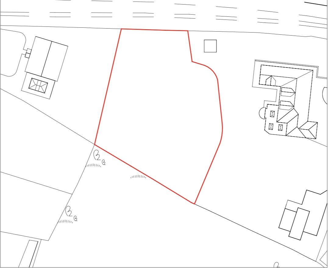
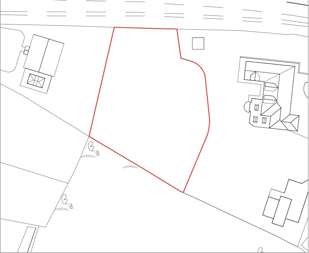
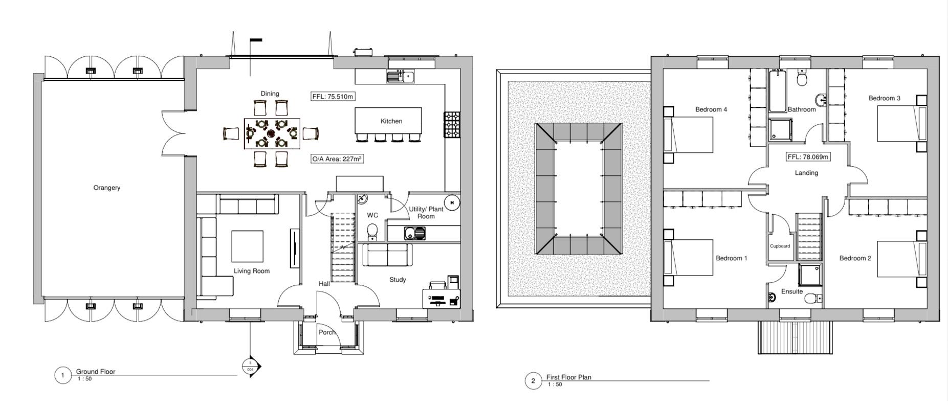
A fantastic opportunity for developers and self build clients alike this generous plot comes with full planning permission to construct a substantial four bedroom detached home. Situated close to Praa Sands with its long stretch of sandy beach and also offering excellent access to the nearby countryside as well as the major towns of Penzance and Helston as well as nearby Porthleven. Opportunities such as this in this location are a rare find! View the full details on the online planning register under reference PA22/06941.

Location - Praa Sands is situated approximately midway between the towns of Helston and Penzance. It is famous for its long sandy beach which is a favourite of both tourists and locals alike. The amenities in the village include a public house with restaurant as well as a beachside cafe and bar. There is a well regarded primary school at Germoe, a short distance from the property. The nearby market towns of Helston and Penzance provide more comprehensive amenities including national stores, restaurants and leisure centres with indoor swimming pools along with secondary schools and colleges. Penzance also benefits from mainline rail links to London Paddington and beyond from its train station.

Drawings Plans And Images - Any images, plans and photographs are for identification purposes only and can be subject to change. Prospective purchasers are advised to visit the plot to satisfy themselves prior to purchase. Stock shots provided to give a feel for the surrounding area.

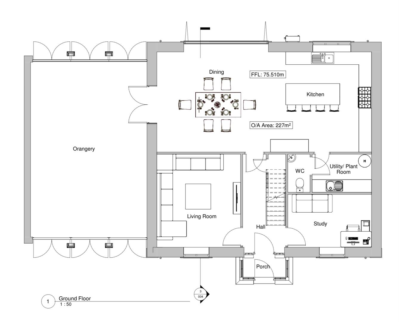
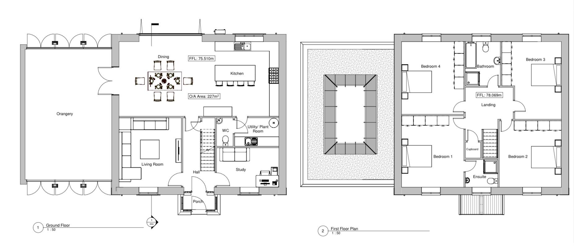
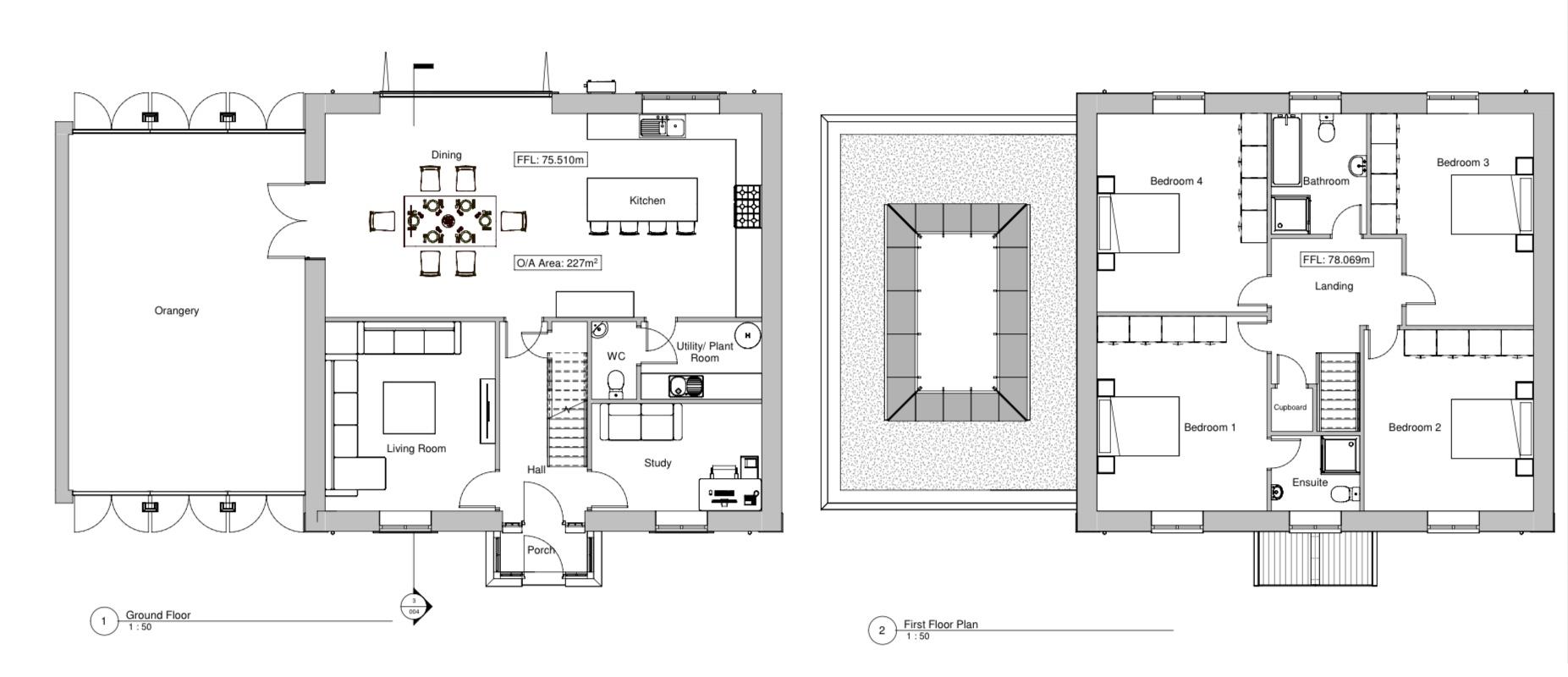
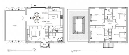
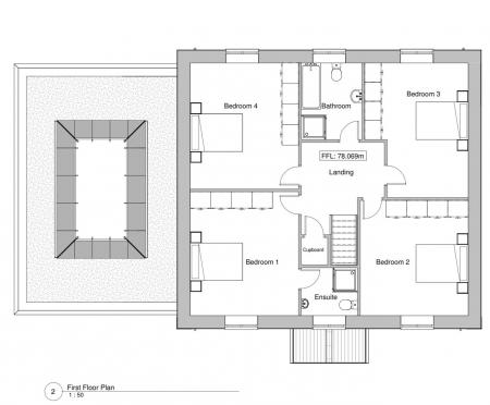
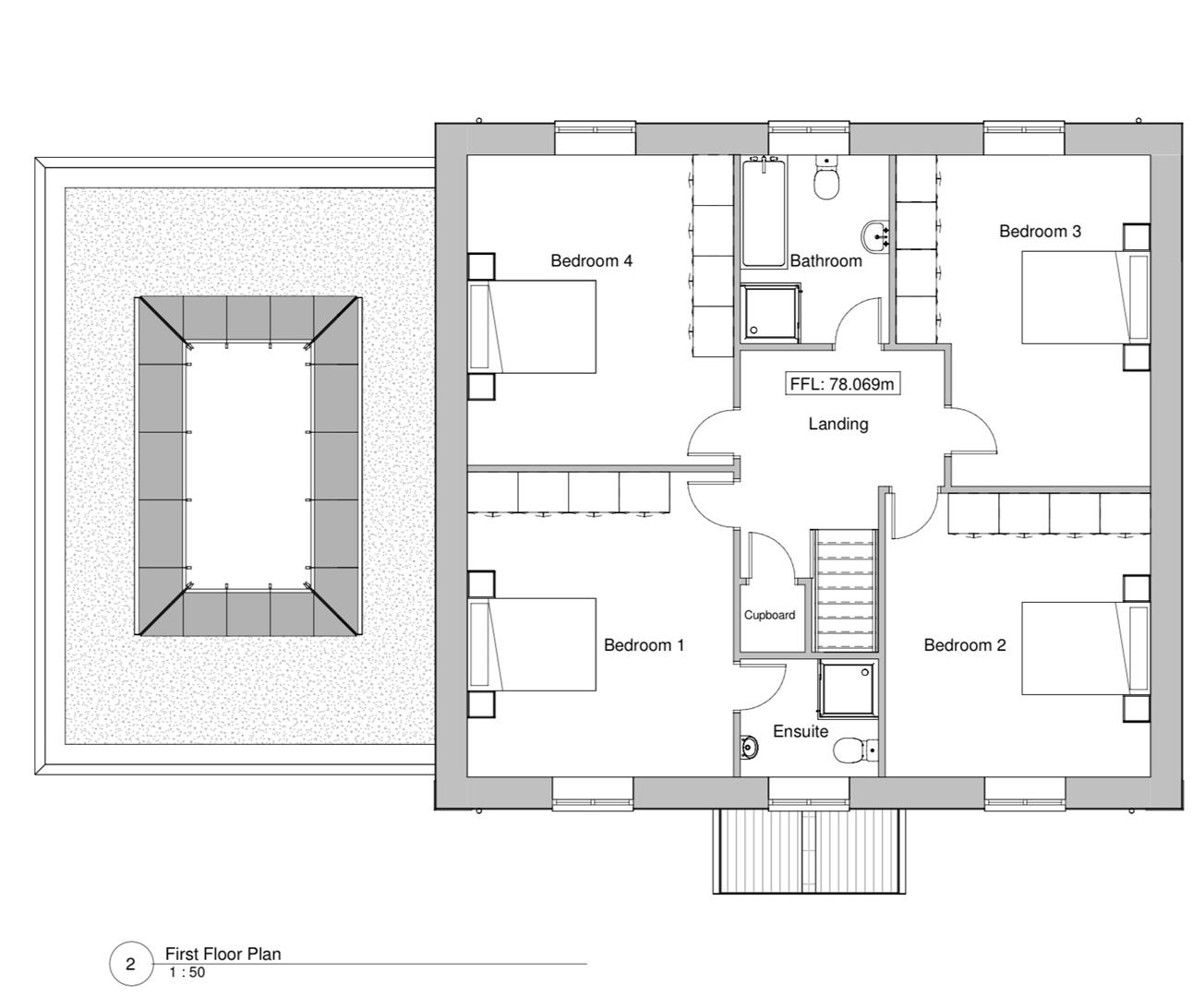
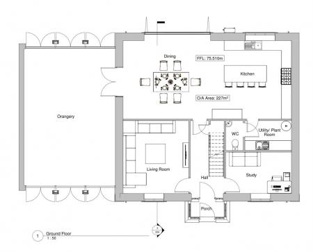
Planning Consent - Full planning can be viewed on the online planning register under reference PA22/06941. Plans provide for a generous dwelling with the ground floor to offer accommodation including an open plan kitchen/dining room, a separate lounge study and cloakroom and utility. The first floor provides for four double bedrooms with a family bathroom and master en-suite.

Agents Note - Please note the plan on our marketing differs slightly from the plan on the online planning register. The plan on our marketing correctly denotes the area of land for sale that will be conveyed. We understand from the planning consultant that the purchaser can continue to build the property as per the plans but if they wished to construct a garage this would need to be re-sited and a variation of condition would need to be applied for with Cornwall County Council Planning Department.

Mobile And Broadband - To check the broadband coverage for this property please visit -
https://www.openreach.com/fibre-broadband
To check the mobile phone coverage please visit -
https://checker.ofcom.org.uk/

Services - The plot is un-serviced - it will be the buyers responsibility to arrange for connection of services.

Proof Of Finance - Purchasers - Prior to agreeing a sale, we will require proof of financial ability to purchase which will include an agreement in principle for a mortgage and/or proof of cash funds.

Mobile And Broadband - To check the broadband coverage for this property please visit -
https://www.openreach.com/fibre-broadband
To check the mobile phone coverage please visit -
https://checker.ofcom.org.uk/

Date Details Prepared. - 2020

Property Ref: 453323_33634403

Share:

Similar Properties

The Lizard, Helston

1 Bedroom Townhouse | Guide Price £200,000

An opportunity to purchase a substantial Grade II Listed chapel in mainland Britain's most southerly village.The chapel...

Trengrouse Way, Helston

3 Bedroom Terraced House | Guide Price £200,000

An opportunity to purchase a three bedroom, mid-terraced property a short stroll from the town centre of Helston with al...

Crowntown, Helston

2 Bedroom Cottage | Guide Price £200,000

This two bedroom semi-detached cottage presents a rare opportunity for those looking to create a wonderful home in a cha...

Trevenen Road, Helston

2 Bedroom Terraced House | Guide Price £210,000

Situated in the heart of the Cornish market town of Helston is this mid terraced two bedroom house with gardens. The res...

Kellaway Park, Helston

2 Bedroom End of Terrace House | Guide Price £210,000

An opportunity to purchase a two bedroom, end of terrace house with gardens and parking in the Cornish market town of He...

Hawkins Way, Helston

2 Bedroom End of Terrace House | Guide Price £215,000

An opportunity to purchase a well presented, two bedroom end of terrace property in a well regarded residential address...

Christophers Estate Agents Porthleven (Porthleven)

Fore St, Porthleven, Cornwall, TR13 9HJ

01326 573737

How much is your home worth?

Use our short form to request a valuation of your property.

Request a Valuation

Mortgage Calculator

Amount Borrowed: £
Total Amount Repayable: £
Total Monthly Payment: £
©2025 The Guild of Property Professionals. All rights reserved. Terms and Conditions | Privacy Policy | Cookie Policy | Complaints Policy | Members Login
The Guild of Property Professionals Trading Address: 121 Park Lane, London W1K 7AG. GPEA Limited. Registered in England & Wales.  Company No: 02819824.  Registered Office Address: 2 St. Stephen's Court, St. Stephen's Road, Bournemouth, Dorset, England, BH2 6LA.  VAT Registration No: 576 8795 61
Book a Property Valuation Update Cookies Preferences