The Mount, Kedleston Road, Derby

Offers Over
£600,000
SSTC
This property listing is now SSTC

4 Bedroom Semi-Detached House for sale in Derby

2 4 2
  • Late Victorian Semi-Detached Residence
  • Spacious Accommodation over Three Floors
  • Many Original Features
  • Entrance Hall & Generously Sized Cellar
  • Two Reception Rooms & Breakfast Kitchen
  • Three First Floor Bedrooms, Laundry Room & Bathroom/Separate WC
  • Second Floor Principle Suite with Dressing Room & En-Suite
  • Well-Established Rear Garden with Gardener's WC
  • Driveway Providing Off-Road Parking
  • Easy Access to Excellent Amenities

A most impressive and very generous, three storey, four bedroom, late Victorian, semi-detached residence occupying a fabulous elevated position on popular Kedleston Road.

The property retains an abundance of original character and is a true feature residence with mostly sash windows, Minton floor, coved cornice, picture rails, deep skirting boards and archway. The property has gas central heating and accommodation comprising entrance hall with Minton floor and staircase down to useful, spacious cellar, two generous reception rooms and impressive breakfast kitchen with feature bay window. On the first floor a split-level, semi-galleried landing leads to three bedrooms, laundry room, bathroom and separate WC. The second floor comprises the principle suite comprising landing area, spacious bedroom area, walk-in dressing room and superbly appointed shower room.

The property is set up from Kedleston Road behind a mature fore-garden. To the rear of the property is a delightful rear garden which is extremely well-stocked and established. It features an extensive lawn, cobbled patio/terrace located just off the kitchen, borders containing a varied selection of plants, shrubs, trees, brick walling and a courtyard to the foot of the garden giving access to the cobbled tandem driveway (accessed off Highfield Road). There is also a very useful gardener's WC which is currently being installed by the vendor.

The Location - The property's position on Kedleston Road offers easy access into Derby City centre , notably the Cathedral Quarter incorporating Irongate and Saddler Gate with some stylish shops, restaurants, caf�s, Market Square with The Quad cinema, cathedral and easy access to the bus and train station. Kedleston Road itself offers a caf�, real ale pub, small shop, barbers, Post Office, chemist, Markeaton primary school and access to Markeaton Park and the A38. Other places of interest include Darley Park which is within easy reach.

Accommodation -

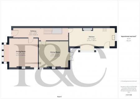
Ground Floor -

Entrance Hall - 8.84 x 2.04 (29'0" x 6'8") - A beautiful panelled and stained glass entrance door provides access to attractive entrance hall with original Minton floor, panelled staircase to first floor incorporating door down to useful cellar, fully maintained burglar alarm system, two central heating radiators, feature archway, coved cornice and picture rail.

Sitting Room - 5.54 x 4.57 (18'2" x 14'11") - Featuring a fabulous fireplace with decorative surround, raised hearth and cast iron interior with coal effect living flame fitted gas fire, two central heating radiators, coved cornice, picture rail, centre rose, double glazed sash window to side and double glazed box bay window to front incorporating sash windows.

Separate Dining Room - 4.72 x 4.17 (15'5" x 13'8") - Having a feature fireplace with coal effect living flame gas fire, central heating radiator, coved cornice, picture rail, ceiling rose, double glazed sash window to side and French doors to garden.

Spacious Kitchen - 7.38 x 3.10 (24'2" x 10'2") - The centrepiece being a quartz topped island/breakfast bar with ceramic sink unit with mixer tap, appliance spaces suitable for a gas range cooker, fridge freezer and dishwasher, integrated storage cupboards, two central heating radiators, double glazed feature box bay window to side, double glazed window overlooking garden and double glazed door giving access to garden.

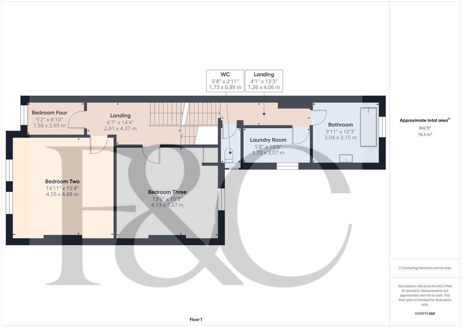
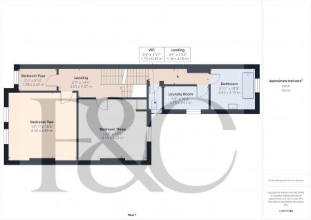
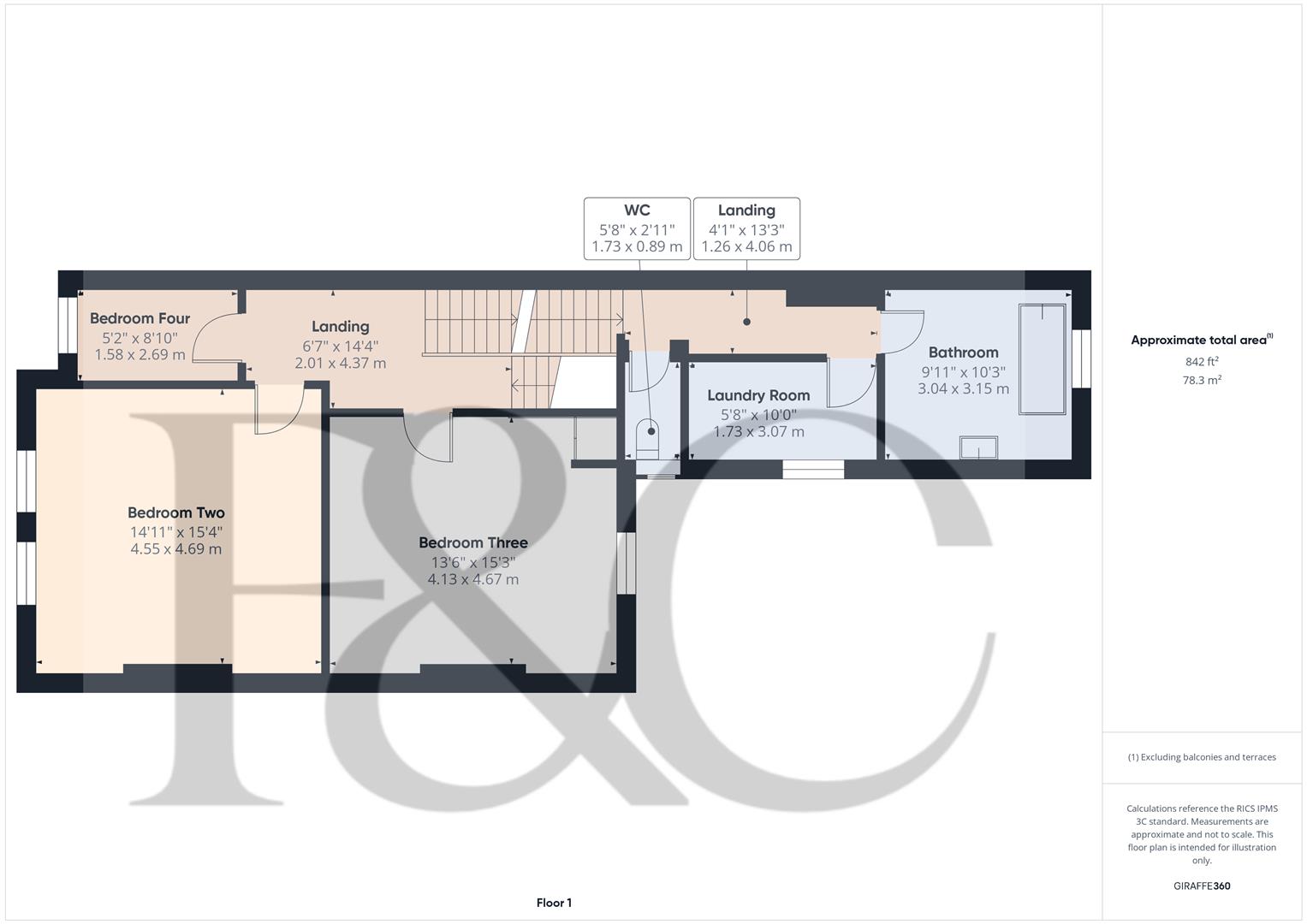
First Floor -

Split-Level Semi-Galleried Landing - 4.37 x 4.06 x 2.01 x 1.26 (14'4" x 13'3" x 6'7" x - With staircase to second floor, feature balustrade and central heating radiator.

Bedroom Two - 4.69 x 4.55 (15'4" x 14'11") - Having a central heating radiator, coved cornice, picture rail, ceiling rose and double glazed sash windows to front elevation.

Bedroom Three - 4.67 x 4.13 (15'3" x 13'6") - With central heating radiator, coved cornice, picture rail, fitted storage cupboard and sash window to rear.

Bedroom Four - 2.69 x 1.58 (8'9" x 5'2") - Having a double glazed sash window to front.

Laundry Room - 3.07 x 1.73 (10'0" x 5'8") - With central heating radiator, appliance spaces suitable for washing machine and tumble dryer and sash window to side.

Bathroom - 3.15 x 3.04 (10'4" x 9'11") - A stylish period style suite comprising wash handbasin, freestanding bath, two period style towel radiators, sash window to rear and two double glazed roof lights.

Wc - 1.73 x 0.89 (5'8" x 2'11") - Appointed with a low flush WC, wash handbasin, wood panelling, chrome towel radiator and window to side.

Second Floor -

Landing - 2.76 x 2.02 (9'0" x 6'7") - A semi-galleried landing with feature balustrade, decorative coving and double glazed window to rear.

Bedroom One - 6.20 x 4.70 (20'4" x 15'5") - A fabulous, generous room with two central heating radiators, feature exposed beams, cast iron fire surround, sash window to front and double glazed Velux window.

Superbly Appointed En-Suite Wet Room - 4.60 x 1.61 (15'1" x 5'3") - Appointed with a low flush WC, wash handbasin, spacious walk-in shower, useful fitted storage, chrome towel radiator and feature exposed beam.

Dressing Room - 4.64 x 2.54 (15'2" x 8'3") - With central heating radiator, feature exposed beam and sash window to rear.

Outside - To the rear of the property is a fabulous, private garden which is extremely well-stocked with some impressive plants, mature trees and shrubs. The centrepiece of the garden being the sizeable, well-kept lawn. There is also a cobbled/paved patio terrace just off the kitchen and a further one to the rear. There is a brick built shed with slated roof and cladding and a pedestrian gate leading to the tandem cobbled driveway which provides off-road parking (accessed off Highfield Road).

Council Tax Band E -

Property Ref: 1882645_34271412

Share:

Similar Properties

Woodland Road, off Kedleston Road, Derby

5 Bedroom Detached House | Guide Price £599,950

GREAT FAMILY HOME - A most spacious Victorian detached home with private garden, offering five double bedrooms. The prop...

Highfield Road, Off Kedleston Road, Derby

4 Bedroom Detached House | Offers in region of £595,000

An impressive, four double bedroom, Victorian, double fronted, detached residence occupying a highly convenient and soug...

St Georges Close, Allestree, Derby

5 Bedroom Detached House | £585,000

A five bedroom family detached property located with easy access to reputable primary/secondary schools, transport links...

Gleneagles Close, Mickleover, Derby

5 Bedroom Detached House | Offers Over £625,000

A much improved and extended, five bedroom, detached residence occupying a highly sought after location on Gleneagles Cl...

Acresview Close, Allestree, Derby

5 Bedroom Detached House | Offers in region of £625,000

This highly appealing detached family home is perfect for modern family life. With five well-proportioned bedrooms, incl...

The Paddock, Ambaston, Derbyshire

2 Bedroom Detached Bungalow | Offers in region of £650,000

Offers Superb Potential - A generous, two double bedroom, detached residence sitting on a fabulous, underdeveloped plot...

Fletcher & Co - Pride Park (Derby)

Millenium Way, Pride Park, Derby, Derbyshire, DE24 8LZ

01332 300558

How much is your home worth?

Use our short form to request a valuation of your property.

Request a Valuation

Mortgage Calculator

Amount Borrowed: £
Total Amount Repayable: £
Total Monthly Payment: £
©2025 The Guild of Property Professionals. All rights reserved. Terms and Conditions | Privacy Policy | Cookie Policy | Complaints Policy | Members Login
The Guild of Property Professionals Trading Address: 121 Park Lane, London W1K 7AG. GPEA Limited. Registered in England & Wales.  Company No: 02819824.  Registered Office Address: 2 St. Stephen's Court, St. Stephen's Road, Bournemouth, Dorset, England, BH2 6LA.  VAT Registration No: 576 8795 61
Book a Property Valuation Update Cookies Preferences