Highfield Road, Derby

Offers in region of
£595,000
SSTC
This property listing is now SSTC

5 Bedroom Semi-Detached House for sale in Derby

2 5 2
  • Fabulous Location off Kedleston Road/Duffield Road
  • Well-Proportioned & Spacious Accommodation
  • Retains Much Original Character Throughout
  • Private, Enclosed Lawn Garden with Decking
  • Superbly Appointed Throughout
  • Three Storey Residence
  • Stunning Extended Open Plan Dining Kitchen
  • Five Bedrooms & Two Bathrooms
  • Highly Convenient Position
  • Viewing Essential

A stunning, three storey, five bedroom, period, semi-detached residence situated on a particularly sought after road in Derby. ( Located between Duffield Road and Kedleston Road )

This highly attractive, bay fronted residence combines wonderful, original, period features with modern day living. Retaining a wealth of character throughout it must be seen to be appreciated.

The accommodation comprises a vestibule, entrance hall, fitted guest cloakroom, lounge/sitting room and fabulous dining kitchen. The first floor accommodation features a principle bedroom with en-suite shower room, two further bedrooms and a well-appointed bathroom with four piece suite. The second floor landing leads to two further double bedrooms.

To the rear of the property is a private garden featuring two tier decking, ideal for outdoor entertaining, as well as wood edged borders containing plants and shrubs, attractive brick walling and decorative trellis work. There is a useful hidden storage area to the foot of the garden.

The Location - The property's position just off Kedleston Road allows for easy access into Derby City centre and a full range of amenities. More locally, the property is within easy reach of a shop, post office, cafe, popular pubs, primary school, regular bus service into the city centre and it is also close to both Markeaton Park and Darley Park. Excellent transport links are also close by.

Accommodation -

Ground Floor -

Vestibule - 1.20 x 1.10 (3'11" x 3'7") - A panelled entrance door leads to a vestibule with Minton floor and stained glass door to hallway.

Spacious Entrance Hall - 7.70 x 1.79 (25'3" x 5'10") - With continuation of the Minton floor, panelled staircase to first floor, cove cornicing, archway and wood panelled walls.

Lounge - 5.09 x 4.10 (16'8" x 13'5") - Having a feature fireplace with decorative surround, raised hearth and interior with living flame fitted gas fire, central heating radiator, cove cornicing, picture rail, box bay window to front with bespoke shutters and open doorway to sitting room.

Sitting Room - 4.62 x 3.39 (15'1" x 11'1") - With feature fireplace incorporating decorative surround, raised hearth and brick interior with cast iron log burner, central heating radiator, cove cornicing, picture rail, fitted storage cupboard and panelled and glazed French doors to garden.

Fitted Guest Cloakroom - 1.72 x 1.12 (5'7" x 3'8") - Appointed with a stylish suite comprising low flush WC, wash handbasin and feature wood panelled wall.

Stunning Extended Open Plan Dining Kitchen - 7.29 x 3.67 (23'11" x 12'0") -

Dining Area - A spacious area sitting beneath a double glazed Velux window with double glazed picture window to side, matching bifold doors to garden and having a stylish floor to ceiling contemporary style central heating radiator.

Fitted Kitchen - Featuring a central island/breakfast bar with inset sink unit with mixer tap, complementary preparation surfaces, stylish range of cupboards and drawers, appliance spaces suitable for a gas range cooker and American style fridge freezer, integrated dishwasher, period style central heating radiator, recessed ceiling spotlighting and two windows to the side elevation.

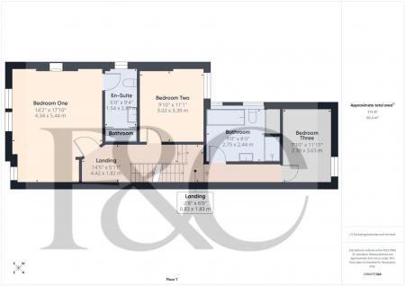
First Floor Landing - 4.42 x 1.82 (14'6" x 5'11") - A split-level, semi-galleried landing with feature balustrade, staircase leading to the second floor and feature wood panelled wall.

Bedroom One - 5.44 x 4.34 (17'10" x 14'2") - A very spacious bedroom with beautiful feature fireplace incorporating decorative surround, hearth and cast iron interior with open fire grate, central heating radiator, feature wood panelled wall, cove cornicing, picture rail and three windows to the front elevation.

En-Suite Shower Room - 2.87 x 1.54 (9'4" x 5'0") - Appointed with a white suite comprising a low flush WC, pedestal wash handbasin with tiled surround, spacious walk-in double shower cubicle, chrome towel radiator, airing cupboard, further central heating radiator and window to side.

Bedroom Two - 3.39 x 3.02 (11'1" x 9'10") - With central heating radiator, cove cornicing, picture rail and window to rear.

Bedroom Three - 3.63 x 2.39 (11'10" x 7'10") - Currently being used as a dressing room with period style central heating radiator and window to rear.

Superbly Appointed Bathroom - 2.75 x 2.44 (9'0" x 8'0") - Appointed with a four piece suite in white comprising low flush WC, vanity unit with inset sink, tiled surround and storage beneath, freestanding bath, separate shower, period style central heating radiator, airing cupboard and two windows to side elevation.

Second Floor Landing - 2.70 x 1.78 (8'10" x 5'10") - A semi-galleried landing with feature balustrade, double glazed Velux window and useful storage cupboard.

Bedroom Four - 4.36 x 4.21 (14'3" x 13'9") - With central heating radiator and window to front.

Bedroom Five - 4.64 x 3.65 (15'2" x 11'11") - Having a central heating radiator and window to rear.

Outside - The property is set back from the road behind an attractive blue brick boundary wall and wrought iron railings incorporating a hand gate. There is a pathway to the front door as well as a secure gate to the rear garden.
To the rear of the property is a fabulous garden offering a high degree of privacy due to attractive brick walling and decorative fencing. Immediately accessed off the kitchen is a two tier decked area with feature border, lower level lawn and wood edged herbaceous borders containing shrubs and plants. A gate leads to a useful storage area to the foot of the garden.

Council Tax Band E -

Property Ref: 34469134

Share:

Similar Properties

Highfield Road, Off Kedleston Road, Derby

4 Bedroom Detached House | £575,000

An impressive, four double bedroom, Victorian, double fronted, detached residence occupying a highly convenient and soug...

Highfields Park Drive, Darley Abbey, Derby

5 Bedroom Detached House | Offers in excess of £575,000

CLOSE TO DARLEY PARK & DARLEY ABBEY VILLAGE - This is a fabulous opportunity to acquire a large, detached family home wi...

Brook Road, Borrowash, Derby

4 Bedroom Link Detached House | Offers Over £575,000

Rock House is an impressive Grade II listed Georgian home, understood to be the former residence of William Barron, land...

The Mount, Kedleston Road, Derby

4 Bedroom Semi-Detached House | Offers Over £600,000

A most impressive and very generous, three storey, four bedroom, late Victorian, semi-detached residence occupying a fab...

Gleneagles Close, Mickleover, Derby

5 Bedroom Detached House | Offers Over £625,000

A much improved and extended, five bedroom, detached residence occupying a highly sought after location on Gleneagles Cl...

The Paddock, Ambaston, Derbyshire

2 Bedroom Detached Bungalow | Offers in region of £625,000

Offers Superb Potential - A generous, two double bedroom, detached residence sitting on a fabulous, underdeveloped plot...

Fletcher & Co (Nottingham)

The Lace Market, Nottingham, Nottinghamshire, NG1 1PS

01332 300558

How much is your home worth?

Use our short form to request a valuation of your property.

Request a Valuation

Mortgage Calculator

Amount Borrowed: £
Total Amount Repayable: £
Total Monthly Payment: £
©2026 The Guild of Property Professionals. All rights reserved. Terms and Conditions | Privacy Policy | Cookie Policy | Complaints Policy | Members Login
The Guild of Property Professionals Trading Address: 121 Park Lane, London W1K 7AG. GPEA Limited. Registered in England & Wales.  Company No: 02819824.  Registered Office Address: 2 St. Stephen's Court, St. Stephen's Road, Bournemouth, Dorset, England, BH2 6LA.  VAT Registration No: 576 8795 61
Book a Property Valuation Update Cookies Preferences