Stoodleigh, Tiverton, Devon

Guide Price
£435,000

4 Bedroom Land for sale in Devon

4

A Home of Rare Distinction

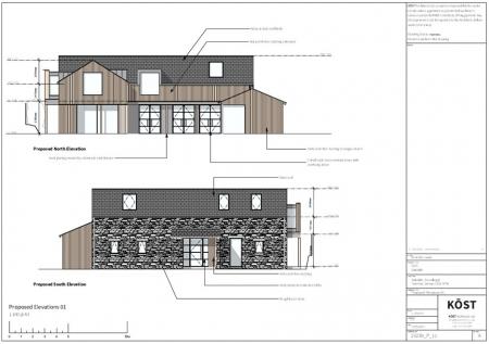
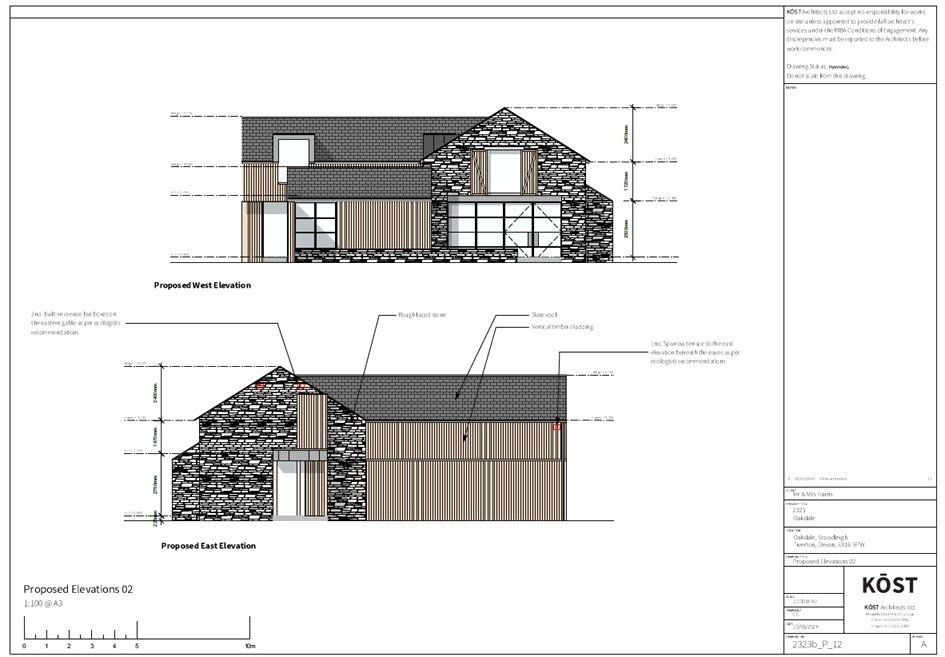
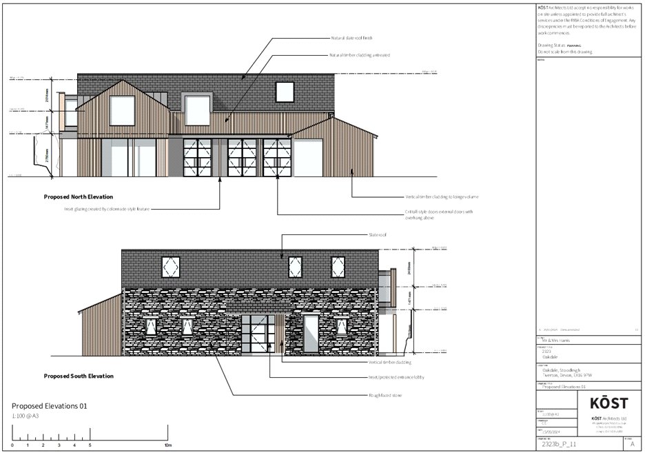
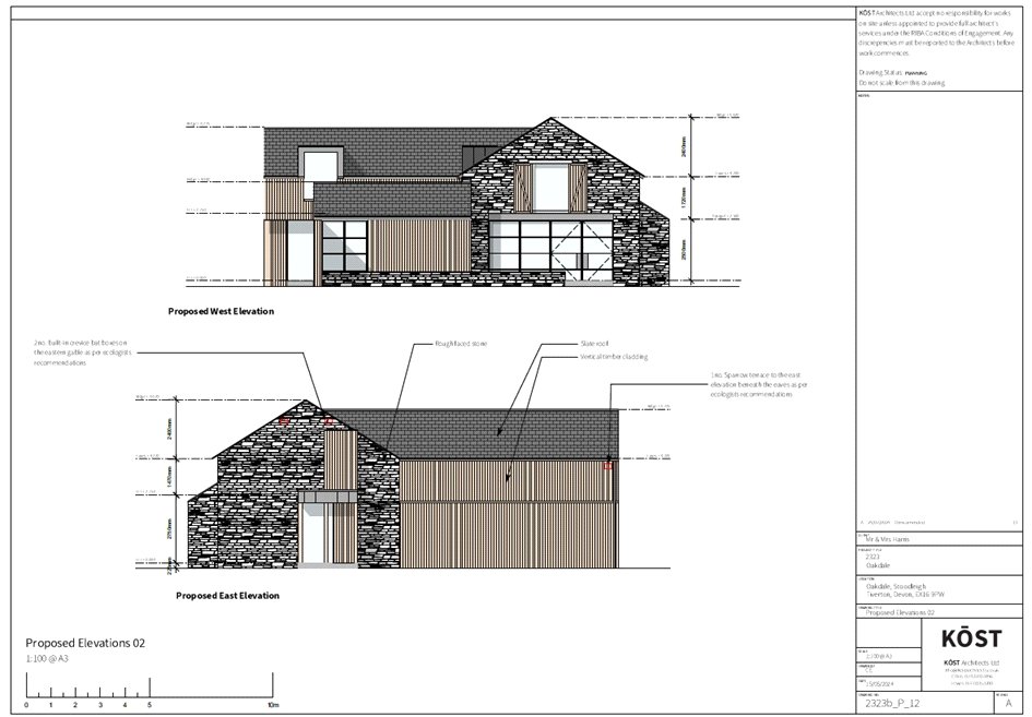
Oakdale represents a unique opportunity to create a bespoke self-build dwelling in one of Mid Devon's most sought-after villages. With full planning permission already granted (Ref: 24/00818/FULL – Mid Devon Council), the approved design embodies the essence of modern rural living. Carefully conceived, it combines flowing open-plan interiors with versatile reception spaces and seamless connections to the outdoors.

At the heart of the plans is a striking kitchen, dining and living space, with expansive glazing to frame countryside views and flood the interiors with natural light. The scheme provides four double bedrooms, including a ground-floor principal suite with en-suite facilities. Upstairs, three further bedrooms are served by a family bathroom, while the layout also incorporates a dedicated boot room and a downstairs cloakroom/WC, reflecting the practicalities of rural life.

The orientation of the scheme maximises natural light and outlook, while provision for sustainable technologies — such as high-performance insulation, low-carbon heating, and EV-ready infrastructure — ensures the home can meet modern standards of comfort and efficiency. This is a rare opportunity to bring to life a residence designed for entertaining, family living and quiet retreat in equal measure.

Plot with full planning permission (Ref: 24/00818/FULL – Mid Devon Council)

Proposed bespoke 4-bedroom home of exceptional design and quality

Ground-floor principal bedroom with en-suite

Three further double bedrooms and family bathroom upstairs

Dedicated boot room and downstairs WC

Spacious open-plan kitchen, dining and living space with countryside views

Exceptional double garage with integrated log store and loft space above (scope for art studio/office or other use, subject to approvals)

Generous driveway with ample parking

Eco-conscious potential: high insulation, low-carbon heating, EV readiness

Excellent connectivity: M5, Exeter, Tiverton Parkway (London in just over 2 hours)

Close to Blundell's School and respected local primaries

Village amenities: pub with panoramic views and boutique winery

Starlink satellite broadband is also widely available in the area, providing ultrafast connectivity even in rural settings.

A Life of Refined Elegance

Life in Stoodleigh offers a rare duality: the stillness of a timeless village, set
against the rhythm of a world that moves quickly. Here, you can step out into
rolling hills, wooded valleys and Exmoor's wild beauty, immersing yourself in a
slower pace of life. Yet the energy of Exeter, the speed of Tiverton Parkway's
direct trains to London Paddington, and the reach of the M5 and Exeter Airport
place the capital and beyond firmly within easy access.


This is not isolation, but balance — a setting where creativity flourishes. Within
the village, a local pub with panoramic views and a boutique winery create
gathering points that reflect both tradition and a modern, artisanal spirit. It is a
community that values authenticity while embracing new ideas.

Tiverton adds both practicality and character, with its pannier market,
independent shops and supermarkets, while the wider region offers boutique
shopping, galleries and dining that ranges from Devonshire classics to
imaginative, design-led cuisine.

Outdoor pursuits abound: walking, riding, cycling, fishing, golf, and sailing are
all part of everyday life in this exceptional setting.

Oakdale offers not just a plot, but the canvas for a life well-lived — where design, nature and connectivity meet.

A Home of Rare Distinction

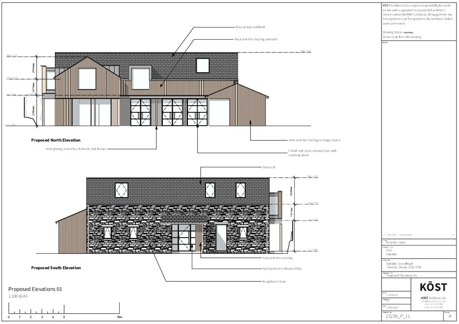
Oakdale represents a unique opportunity to create a bespoke self-build dwelling in one of Mid Devon's most sought-after villages. With full planning permission already granted (Ref: 24/00818/FULL – Mid Devon Council), the approved design embodies the essence of modern rural living. Carefully conceived, it combines flowing open-plan interiors with versatile reception spaces and seamless connections to the outdoors.

At the heart of the plans is a striking kitchen, dining and living space, with expansive glazing to frame countryside views and flood the interiors with natural light. The scheme provides four double bedrooms, including a ground-floor principal suite with en-suite facilities. Upstairs, three further bedrooms are served by a family bathroom, while the layout also incorporates a dedicated boot room and a downstairs cloakroom/WC, reflecting the practicalities of rural life.

The orientation of the scheme maximises natural light and outlook, while provision for sustainable technologies — such as high-performance insulation, low-carbon heating, and EV-ready infrastructure — ensures the home can meet modern standards of comfort and efficiency. This is a rare opportunity to bring to life a residence designed for entertaining, family living and quiet retreat in equal measure.

The frame has already been produced subject to final verification and acceptance. The frame in not included with in the sale but available for an nominal amount to be agreed'.

Life in Stoodleigh offers a rare duality: the stillness of a timeless village, set against the rhythm of a world that moves quickly. Here, you can step out into rolling hills, wooded valleys and Exmoor's wild beauty, immersing yourself in a slower pace of life. Yet the energy of Exeter, the speed of Tiverton Parkway's direct trains to London Paddington, and the reach of the M5 and Exeter Airport place the capital and beyond firmly within easy access.

This is not isolation, but balance — a setting where creativity flourishes. Within the village, a local pub with panoramic views and a boutique winery create gathering points that reflect both tradition and a modern, artisanal spirit. It is a
community that values authenticity while embracing new ideas.

Tiverton adds both practicality and character, with its pannier market, independent shops and supermarkets, while the wider region offers boutique shopping, galleries and dining that ranges from Devonshire classics to imaginative, design-led cuisine.

Outdoor pursuits abound: walking, riding, cycling, fishing, golf, and sailing are
all part of everyday life in this exceptional setting.

Oakdale offers not just a plot, but the canvas for a life well-lived — where
design, nature and connectivity meet.

*For illustrative purposes only. Please refer to plans

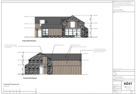
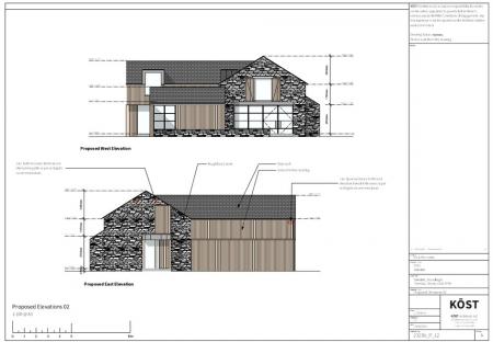
Discreetly positioned on the edge of Stoodleigh, Oakdale offers the rare combination of being within the village yet tucked away in its own woodland setting. The approach is via a quiet country lane, opening onto a generous driveway with ample parking.

The approved scheme also includes an exceptional double garage with integrated log store, designed with loft space above — ideal for an art studio,
office or other creative use (subject to the necessary approvals).

This balance of seclusion, practicality and community makes Oakdale a truly
special proposition.

*For illustrative purposes only. Please refer to plans

Woodland Seclusion at the Heart
of the Village

Discreetly positioned on the edge of Stoodleigh, Oakdale offers the rare
combination of being within the village yet tucked away in its own woodland
setting. The approach is via a quiet country lane, opening onto a generous
driveway with ample parking.


The approved scheme also includes an exceptional double garage with
integrated log store, designed with loft space above — ideal for an art studio,
office or other creative use (subject to the necessary approvals).

This balance of seclusion, practicality and community makes Oakdale a truly
special proposition.


For families, education is a significant draw. The renowned Blundell's School in
Tiverton is just a short drive away, alongside a selection of respected local
primaries and secondaries.


Oakdale is also remarkably well connected:

Blundell's School - approx 10 minutes

M5 J27 – approx. 15 minutes

Tiverton Parkway Station – approx. 18 minutes (London Paddington from just
over 2 hours)

Exeter – approx. 35 minutes

Exeter Airport – approx. 40 minutes

Taunton – approx. 35 minutes

This rare combination of accessibility and rural calm makes Oakdale equally suited to families relocating from London and the South East, or those seeking an elegant weekend retreat.

Exit the M5 at Junction 27 and take the A361 towards Tiverton/Barnstaple. After approximately 7 miles, take the exit signposted for Tiverton and join the A396 towards Bampton/Dulverton. Continue along the A396 for around 5 miles before turning left at the signpost for Stoodleigh. Follow the road into Stoodleigh village, then continue along the country lane and the site will be found shortly on the right hand side.

What3words: ///shoebox.wonderful.radiating

Important Information

  • This is a Freehold property.

Property Ref: 55935_ILF250285

Share:

Similar Properties

Paganel Rise, Minehead

3 Bedroom Detached Bungalow | Guide Price £425,000

An extended and improved 3 bedroom detached bungalow set in large level gardens with delightful views towards the surrou...

Glenmore Road, Minehead, Somerset

6 Bedroom House | £425,000

This distinguished late Victorian end of terrace 4/6 bedroom is ideally positioned within level walking distance of Mine...

Park Lane, Carhampton, Minehead

3 Bedroom Detached House | Guide Price £425,000

A beautifully appointed detached home offering the perfect blend of modern comfort, versatile family living, and timeles...

Battleton, Dulverton, Somerset

3 Bedroom Detached House | Guide Price £450,000

A beautifully presented character cottage, combining timeless charm with stylish interiors and thoughtfully designed acc...

Hawkcombe, Porlock, Minehead

3 Bedroom Semi-Detached House | £450,000

A quintessential Exmoor period cottage nestled in the heart of the enchanting wooded Hawkcombe Valley and just a mile or...

High Street, Porlock, Minehead

5 Bedroom Detached House | Offers in excess of £450,000

A substantial 5 bedroom detached residence situated in the heart of this highly regarded Exmoor village with ground floo...

Webbers Minehead (Minehead)

Minehead, Somerset, TA24 5UW

01643 706917

How much is your home worth?

Use our short form to request a valuation of your property.

Request a Valuation

Mortgage Calculator

Amount Borrowed: £
Total Amount Repayable: £
Total Monthly Payment: £
©2025 The Guild of Property Professionals. All rights reserved. Terms and Conditions | Privacy Policy | Cookie Policy | Complaints Policy | Members Login
The Guild of Property Professionals Trading Address: 121 Park Lane, London W1K 7AG. GPEA Limited. Registered in England & Wales.  Company No: 02819824.  Registered Office Address: 2 St. Stephen's Court, St. Stephen's Road, Bournemouth, Dorset, England, BH2 6LA.  VAT Registration No: 576 8795 61
Book a Property Valuation Update Cookies Preferences