3 Bedroom Apartment for sale in Dorset

1 3 2

Framed by the ever-changing light across Swanage Bay, this apartment enjoys one of the most coveted outlooks along Dorset’s coast. From sunrise to the soft glow of evening reflected on the water, every moment here celebrates the sea. Perfectly placed above the shoreline, Grand View offers the rare combination of generous living space, spectacular views, and the convenience of shared entertaining and leisure facilities at the Grand Hotel below.

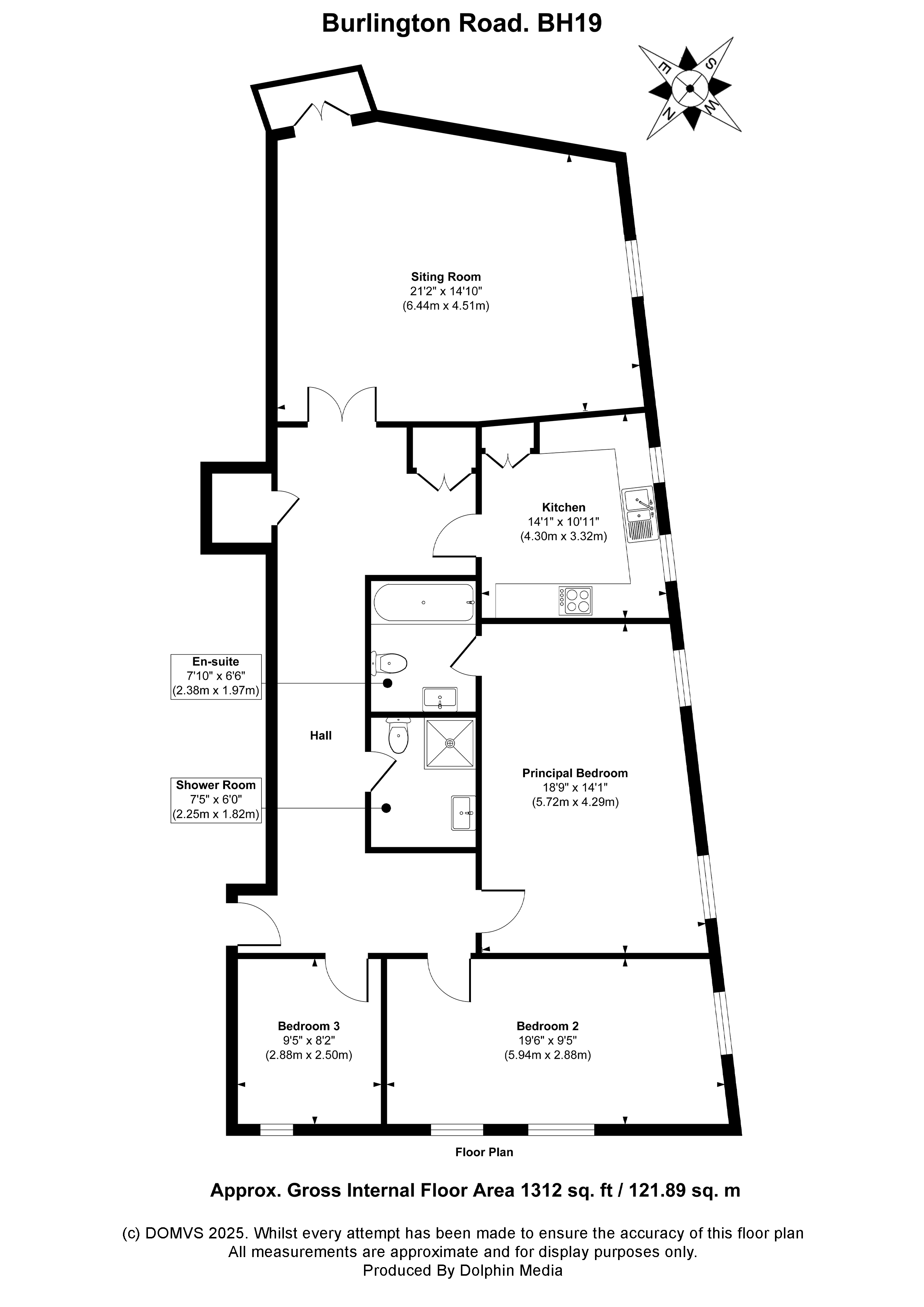
A secure communal entrance provides lift and stair access to the second floor. The apartment opens into a welcoming HALLWAY from which each room flows.

Glazed double doors open into the SITTING AND DINING ROOM which stretches across the full width of the apartment, patio doors framing an uninterrupted panorama of the bay. The balcony invites the sea breeze in, while the dual aspect ensures light throughout the day. With unrivalled views and the waves as a soundtrack, this is a hard room to leave!

The KITCHEN is well designed; with two large windows and high ceilings it is filled with natural light and a sense of space. There is masses of storage and workspace, and integrated appliances including a gas hob and eye-level oven along with room for a fridge/freezer, as well as dishwasher and washing machine, making it practical for both full-time living and holiday use.

The PRINCIPAL BEDROOM is exceptionally spacious, a peaceful west-facing retreat with space for both bedroom furniture and a comfortable seating area. Large windows run to one side of the room again flooding it with natural light. Its ENSUITE BATHROOM includes a bath with handheld shower, wash hand basin, W.C. and heated towel rail.

The SECOND BEDROOM, another generous double, benefits from, large windows on two sides and so excellent natural light, while the THIRD BEDROOM offers versatility as a study or guest room. The FAMILY SHOWER ROOM is fully tiled with a large walk-in shower, wash hand basin and W.C.

Outside
Approaching the entrance by car, a remote-controlled doorway opens into the GARAGE, where there is allocated parking and access to lifts and stairs leading up to the apartments. The building can also be entered via a secure doorway if arriving on foot.

Residents enjoy use of beautifully planted PRIVATE COMMUNAL GARDENS, a sheltered oasis, tucked away from prevailing winds yet offering vantage points to look out across the bay. There is also an elevated newly decked terrace, perfectly positioned for spectacular sea views. It is an ideal spot for a pre-dinner drink while watching the sunset or the occasional firework display.

These private communal gardens lead directly to the grounds of The Grand Hotel, where tables are laid out for afternoon tea, evening drinks, or a leisurely stroll down to the beach.

A private solid beach cabin is available by separate negotiation, the perfect place for keen swimmers to dry off after an early morning dip.

The owner of this apartment also enjoys free (as part of service fee) use of The Grand Hotel’s leisure facilities, including a swimming pool, spa, and fitness amenities, as well as having the hotel’s restaurant and tea rooms, quite literally on your doorstep.

Location
Set above Swanage’s sweeping sandy bay, Grand View enjoys a location that perfectly balances seclusion and convenience. The beach lies just minutes away, while the vibrant town centre with its array of independent shops, cafés and restaurants is an easy walk.

Swanage itself is celebrated for its traditional charm, coastal walks and artistic community. The wider Isle of Purbeck offers endless opportunities to explore, from the cliffs and coves of the Jurassic Coast to Purbeck countryside from Durlston to Studland.

Grand View is a place where the sea and sky become part of everyday life, a home that captures the best of Swanage’s coastal spirit.

Directions
Use what3words.com to navigate to the exact spot. Search using: recruited.licks.stolen

The entrance to Grand View is modest and is in the building adjoined to The Grand Hotel.

Spectacular sea views
Unusually large rooms with high ceilings and masses of light
Dedicated garage parking
Communal gardens
Direct access to beach
Access to all hotel facilities
No onward chain


ROOM MEASUREMENTS Please refer to floor plan.

SERVICES Mains drainage, electricity & gas. Gas central heating.

LOCAL AUTHORITY Dorset Council. Tax band E.

BROADBAND Standard download 12 Mbps, upload 1 Mbps. Superfast download 80 Mbps, upload 20 Mbps. Please note all available speeds quoted are 'up to'.

MOBILE PHONE COVERAGE For further information please go to Ofcom website.

TENURE Share of Freehold; service charge: £3,900 p/a; length of lease remaining: 189 years.

LETTINGS Should you be interested in acquiring a Buy-to-Let investment, and would appreciate advice regarding the current rental market, possible yields, legislation for landlords and how to make a property safe and compliant for tenants, then find out about our Investor Club Our expert lettings team will be pleased to provide you with additional, personalised support; just call on the branch telephone number to take the next step.

IMPORTANT NOTICE DOMVS and its Clients give notice that: they have no authority to make or give any representations or warranties in relation to the property. These particulars do not form part of any offer or contract and must not be relied upon as statements or representations of fact. Any areas, measurements or distances are approximate. The text, photographs (including any AI photography) and plans are for guidance only and are not necessarily comprehensive. It should not be assumed that the property has all necessary Planning, Building Regulation or other consents, and DOMVS has not tested any services, equipment or facilities. Purchasers must satisfy themselves by inspection or otherwise. DOMVS is a member of The Property Ombudsman scheme and subscribes to The Property Ombudsman Code of Practice.

Important Information

  • This is a Share of Freehold property.

Property Ref: 654488_SWA250049

Share:

Similar Properties

East Bloxworth, Dorset

4 Bedroom End of Terrace House | Guide Price £490,000

"This has been our secluded countryside retreat for many years. We have been so lucky to enjoy rural tranquillity whilst...

Wareham, Dorset

3 Bedroom Detached Bungalow | Guide Price £489,000

Owner says, 'I've loved the peace and quiet of this homely bungalow, and being so close to the lovely town of Wareham'....

Wareham, Dorset

3 Bedroom Detached House | Offers Over £475,000

Owner says, "My family have lived here for over 40 years, which is testament to the location and community in the town."...

Wareham, Dorset

3 Bedroom Detached House | Guide Price £535,000

Owner says, "It's been a real privilege to live here for almost 50 years. I've cherished my garden and being able to sit...

Swanage, Dorset

4 Bedroom Semi-Detached House | Offers Over £550,000

Owner says, “In summer, the bi-fold doors open up the house to the garden and views beyond, and in winter, the fami...

Swanage, Dorset

3 Bedroom House | Offers Over £550,000

Owner says, "The family has loved living in this secluded spot tucked away in the heart of historic Swanage".Leasehold

DOMVS Purbeck & East Dorset (Wareham)

Wareham, Dorset, BH20 4LT

01929 555300

How much is your home worth?

Use our short form to request a valuation of your property.

Request a Valuation

Mortgage Calculator

Amount Borrowed: £
Total Amount Repayable: £
Total Monthly Payment: £
©2026 The Guild of Property Professionals. All rights reserved. Terms and Conditions | Privacy Policy | Cookie Policy | Complaints Policy | Members Login
The Guild of Property Professionals Trading Address: 121 Park Lane, London W1K 7AG. GPEA Limited. Registered in England & Wales.  Company No: 02819824.  Registered Office Address: 2 St. Stephen's Court, St. Stephen's Road, Bournemouth, Dorset, England, BH2 6LA.  VAT Registration No: 576 8795 61
Book a Property Valuation Update Cookies Preferences