Wentworth Road, Dronfield Woodhouse, S18 8WU

£450,000
SSTC
This property listing is now SSTC

4 Bedroom Detached House for sale in Dronfield

2 4 2
  • Extended four bed family home.
  • Two good sized reception rooms.
  • Fitted oak kitchen.
  • Family bathroom and ground floor shower room.
  • Study/work from home room.
  • Enclosed rear garden.
  • Ample driveway parking and garage.
  • Close to open countryside and Peak District National Park.
  • Easy reach of Sheffield.
  • No upward Chain.

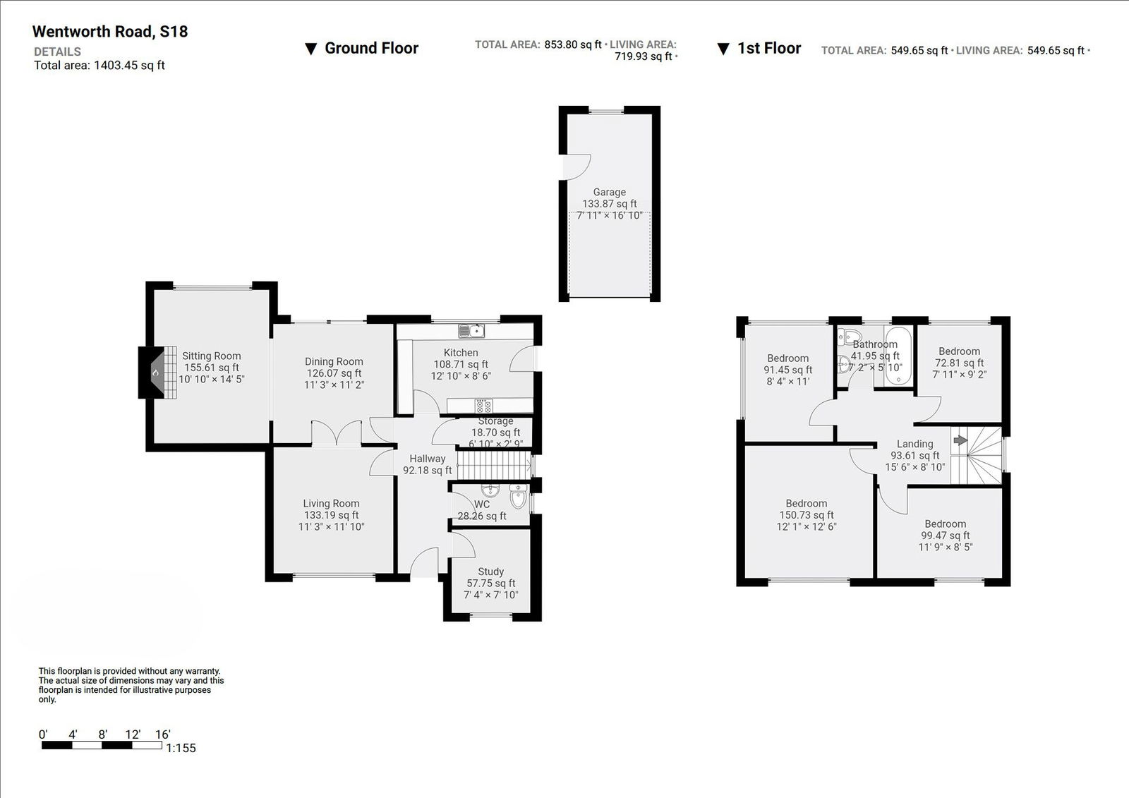
A spacious detached family home on a corner plot in a popular residential area. 4 double bedrooms, family bathroom, ground floor shower room, spacious dining lounge, sitting room, kitchen, and study. Enclosed rear garden, driveway parking and detached garage.


10 WENTWORTH ROAD


A well-presented and spacious, extended detached executive-style family home, ideally located in a popular residential area close to excellent local amenities. The accommodation offers: four double bedrooms, family bathroom, spacious dining lounge, sitting room, kitchen, ground-floor WC, and study. Gardens to front and rear, ample driveway parking and a detached garage. Conveniently situated for commuting into Sheffield.


Entering the property via a half-glazed UPVC entrance door, protected by a portico porch, which opens to:


RECEPTION HALLWAY 
Having a staircase rising to the upper-floor accommodation, a central heating radiator with thermostatic valve, fitted dado rail, and fifteen-pane glazed doors with obscured glass opening to:


SITTING ROOM 
With a front-aspect UPVC double-glazed bow window overlooking the garden and driveway. The room has a feature fireplace with a polished timber surround and raised hearth, housing a living-flame gas fire. There is coving to the ceiling, a central heating radiator with thermostatic valve, and a television aerial point. A pair of arched glazed doors lead to:


DINING LOUNGE
A light and spacious room with rear-aspect UPVC double-glazed picture windows overlooking the enclosed garden. There are double-glazed sliding patio doors opening onto a flagged terrace. The room has a feature fireplace in natural stone with a raised hearth, creating a display niche. There are wall and centre light points, cornice to the ceiling, central heating radiators with thermostatic valves, and a television aerial point.


A fifteen-pane glazed door opens back to the reception hallway, where further doors lead to:


KITCHEN 
A spacious kitchen with rear-aspect double-glazed picture window, and a half-glazed entrance door opening onto the side of the property. The kitchen is fitted with a range of units in a light oak finish, with cupboards and drawers beneath a roll-edged worksurface with a tile splashback. There are wall-mounted storage cupboards with under-cabinet lighting, glass-fronted display cabinets, and open-display shelves. Fitted within the worksurface is a one-and-a-half-bowl sink with mixer tap. Beneath the work surface, there is space and connection for an automatic washing machine. There is an integral twelve-place-setting dishwasher, an integral fridge, and a free-standing electric cooker with four-ring ceramic hob, double oven, and grill. Over the cooker is a cooker hood.


STUDY
With front-aspect UPVC double-glazed windows, central heating radiator with thermostatic valve, telephone point, and downlight spotlights.


GROUND-FLOOR WC
Being fully tiled and having a side-aspect window with obscured glass. Suite with: wash hand basin with storage cupboards beneath, and dual-flush close-coupled WC. There is a chrome-finished ladder-style towel radiator with thermostatic valve.


From the hallway, a staircase – with a useful deep under-stairs storage cupboard, having hanging space – rises via a half-landing to:


FIRST FLOOR LANDING 
A double-glazed window on the turn of the stairs floods the landing with natural light. From the landing, panelled doors open to:


BEDROOM ONE 
With front-aspect UPVC double-glazed windows with views over the surrounding properties to the open countryside that surrounds the area. The room has a good range of fitted wardrobes, providing hanging space, storage shelving, and storage drawers. There is cornice to the ceiling, and a central heating radiator with thermostatic valve.


BEDROOM TWO 
Again, with front-aspect UPVC double-glazed windows, having similar views to bedroom one. The room has a central heating radiator.


BEDROOM THREE 
With dual-aspect UPVC double-glazed picture windows, the rear window overlooking the enclosed garden, and the side window with views to the wooded hills that surround the area. The room has a central heating radiator with thermostatic valve.


BEDROOM FOUR
Having a rear-aspect double-glazed picture window. Currently used as a dressing room, with a range of fitted wardrobes providing hanging space and storage shelving. There is a central heating radiator with thermostatic valve.


FAMILY BATHROOM 
A fully-tiled family bathroom with ceramic tile floor, having a rear aspect window with obscured glass, chrome-finished ladder-style towel radiator, downlight spotlights, and shaver point. Suite with: semi-countertop wash hand basin with storage cupboards beneath and illuminated mirror over, with glass display shelves; dual-flush close-coupled WC; panelled bath with mixer shower over, with concertina shower screen.


 From the landing, a door opens to a deep airing cupboard with hanging rails, slatted linen storage shelving, and a central heating radiator.


OUTSIDE
To the front of the property, a block-paved driveway provides off-road parking for several vehicles. The driveway continues down the side of the property, providing extra parking and giving access to the garage. There is an area of garden laid to lawn with a central border stocked with ornamental shrubs and flowering plants.


To the rear of the property is a delightful enclosed garden with a flagged terrace, immediately to the rear of the property where the doors open from the dining lounge. Steps rise to an area of garden laid to lawn, with borders well stocked with a good variety of flowering plants and ornamental shrubs. There is a raised pond stocked with koi carp, which are available if required. Beyond the pond is a raised decked terrace. Within the garden is a timber potting shed.


GARAGE
A detached single garage with an up-and-over vehicular access door, power, and lighting.


 The property has outside lighting on PIR sensors and an outside water supply.


SERVICES AND GENERAL INFORMATION


All mains services are connected to the property.


For Broadband speed, please go to checker.ofcom.org.uk/en-gb/broadband-coverage
For Mobile Phone coverage, please go to checker.ofcom.org.uk/en-gb/mobile-coverage


TENURE Freehold


COUNCIL TAX BAND (Correct at time of publication) ‘D’


DIRECTIONS
Approaching the centre of Dronfield along the B6057 (Sheffield Road) after passing the Coach and Horses public house turn right along the B6056 sign posted Dronfield Woodhouse and Holmesfield. After approximately 1.5km take the left turn into Wentworth Road where the property can be found on the right hand side.


ANTI-MONEY LAUNDERING 
We are required by law to conduct anti-money laundering checks on all those selling or buying a property. Whilst we retain responsibility for ensuring checks and any ongoing monitoring are carried out correctly, the initial checks are carried out on our behalf by Lifetime Legal who will contact you once you have agreed to instruct us in your sale or had an offer accepted on a property you wish to buy. The cost of these checks is £45 (incl. VAT), which covers the cost of obtaining relevant data and any manual checks and monitoring which might be required. This fee will need to be paid by you in advance of us publishing your property (in the case of a vendor) or issuing a memorandum of sale (in the case of a buyer), directly to Lifetime Legal, and is non-refundable.


Disclaimer
All measurements in these details are approximate.  None of the fixed appliances or services have been tested and no warranty can be given to their condition. The deeds have not been inspected by the writers of these details. These particulars are produced in good faith with the approval of the vendor but they should not be relied upon as statements or representations of fact and they do not constitute any part of an offer or contract.    

Important Information

  • This is a Freehold property.
  • This Council Tax band for this property is: D

Property Ref: 891_1151342

Share:

Similar Properties

Delph Bank, Walton, Chesterfield, S40 3RN

2 Bedroom Bungalow | Offers Over £450,000

A superb detached bungalow offered with NO CHAIN and ideally located in a popular residential area near to Matlock Road,...

Stagside Cottage, 3 Oker View

3 Bedroom Semi-Detached House | Offers Over £425,000

A superb, extended, period cottage parts of which date to 1756, with a wealth of original features; mullioned windows, b...

Rockside Mews, Wellington Street, Matlock

3 Bedroom Semi-Detached House | £400,000

A superbly presented versatile townhouse with commanding views, set over 3 floors with 3/4 bedrooms, sitting room with b...

Park Avenue, Darley Dale. Matlock.

4 Bedroom Detached House | £465,000

An exceptionally well presented spacious detached family home on a quiet cul-de-sac. 4 bedrooms, family bathroom, sittin...

Church Lane, Brackenfield, Alfreton, DE55 6AQ

3 Bedroom Semi-Detached House | Offers in region of £475,000

An exceptional renovated stone built School house with original features throughout. Located in a desirable village over...

Malthouse Lane, Ashover

3 Bedroom Townhouse | £475,000

An immaculately presented townhouse located within an exclusive gated development situated close to the centre of the po...

Sally Botham Estates (Matlock)

27 Bank Road, Matlock, Derbyshire, DE4 3NF

01629 760899

How much is your home worth?

Use our short form to request a valuation of your property.

Request a Valuation

Mortgage Calculator

Amount Borrowed: £
Total Amount Repayable: £
Total Monthly Payment: £
©2025 The Guild of Property Professionals. All rights reserved. Terms and Conditions | Privacy Policy | Cookie Policy | Complaints Policy | Members Login
The Guild of Property Professionals Trading Address: 121 Park Lane, London W1K 7AG. GPEA Limited. Registered in England & Wales.  Company No: 02819824.  Registered Office Address: 2 St. Stephen's Court, St. Stephen's Road, Bournemouth, Dorset, England, BH2 6LA.  VAT Registration No: 576 8795 61
Book a Property Valuation Update Cookies Preferences