Wharf Cottages, Mill Road, Cromford.

£425,000

2 Bedroom Semi-Detached House for sale in Matlock

1 2 1
  • Well presented, historic, Grade II listed cottage.
  • With a wealth of period features.
  • 2 double bedrooms & family bathroom.
  • Dining kitchen with beamed ceiling & period fire place.
  • Comfortable sitting room with feature stone fire place.
  • Utility room (which could become a 2nd bathroom ).
  • Reception hallway.
  • Generous off road parking, garden, rear courtyard & outbuildings.
  • Close to excellent amenities.
  • Walking distance of Cromford railway station

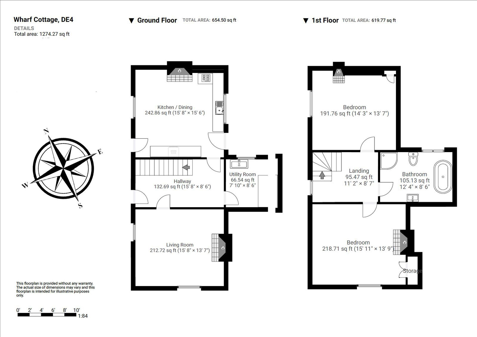
Superb, spacious & well presented, historic grade II listed cottage with a wealth of character & original features. 2 double bedrooms, bathroom, sitting room & good sized dining kitchen, hallway utility room. Off road parking, garden & stone built shed. Located at Cromford canal wharf adjacent to Arkwright's mill (part of the Derwent Valley Mills world heritage site) surrounded by countryside walk, convenient for local amenities & railway station.

WHARF COTTAGES, Cromford

A delightfully spacious and well-presented, Grade II listed, semi-detached property with a wealth of original period features including beamed ceilings, broad plank batten doors, original stone fireplaces, and shuttered reveals. Located adjacent to the Cromford Canal and built in dressed stone under a traditional slate roof, this historic property is believed to have been built in 1796 by the Cromford Canal Company, and has links to the famous Arkwright Mills, situated across the road. The accommodation offers: two double bedrooms, family bathroom, spacious sitting room, reception hallway with utility room off, and good-sized dining kitchen. There is a delightful garden with stone built store, enclosed rear yard with brick built store and ample off-road parking

Cromford is a small village with a lot of historical interest, being the site of the first successful water-powered cotton mill in the country. The village grew up around the mill, the majority of the houses being built by the mill owner Richard Arkwright (founder of the English Sewing Cotton Company). Today the village is part of the Valley Mills World Heritage Site and offers good local amenities with easy access to the nearby towns of Wirksworth (1.8 miles), Matlock (2.6 miles), and Belper (7.8 miles), and is within commuting distance of Derby and Nottingham and has easy access to the M1 Motorway via the A38 trunk road. There is a branch line train station with a regular service to Derby, Nottingham and Newark.

Entering the property via a panelled entrance door with glazed panes to the upper portion, the door opens to:

RECEPTION HALLWAY 

Having an original staircase rising to the upper-floor accommodation, with a useful under-stairs storage cupboard, Amtico wood-effect flooring, central heating radiator with thermostatic valve, and an early panelled door opening to:

SITTING ROOM 

Having dual-aspect sliding sash windows overlooking the garden and the historic canal wharf. The room has a feature fire opening with a dressed stone surround and heavy exposed lintel, housing a gas-fired living-flame stove. There is a display niche with fitted shelving, central heating radiator with thermostatic valve, and a television aerial point.

From the hallway, an original broad plank batten door with Suffolk-style thumb latch opens to:

DINING KITCHEN 

A spacious room with a front-aspect sliding sash window set within an original shuttered reveal. A broad panelled door opens onto the gardens to the front of the property. There are further rear-aspect casement windows overlooking an enclosed rear yard. The room has original exposed beams to the ceiling, and an early batten door with an exposed wooden lintel, which at one time opened onto the rear of the property and has now been closed off and left as a feature of the room. The room has terracotta tiles to the floor and a fine feature fireplace with exposed side supports and heavy stone lintels, topped by a timber mantle. Within the fire opening is a gas-fired living-flame stove. A fitted dresser-style unit provides storage cupboards, fitted drawers, open-display shelves, and spice drawers. To the centre of the unit is a fan-assisted electric oven. Further handmade cupboards and drawers sit beneath a timber-edged worksurface with an inset porcelain sink and drainer with mixer tap. There is a four-ring ceramic hob, central heating radiator with thermostatic valve, and downlight spotlights. The room has ample space for a family dining table.

From the hallway, an original broad plank batten door with thumb latch opens to:

UTILITY ROOM

With a porcelain Belfast-style sink, rear-aspect window with external shutter, central heating radiator with thermostatic valve, and space and connection for an automatic washing machine. Sited within the room is the Valent combination gas-fired boiler, which provides hot water and central heating to the property. There are original blacksmith-made meat hooks to the ceiling.

 From the hallway, a quarter-turn staircase rises to:

FIRST FLOOR LANDING 

Having a front-aspect casement window overlooking the garden. There is a loft access hatch and batten doors opening to:

BEDROOM ONE 

Having a side-aspect sliding sash window overlooking the canal and the wharf buildings. The room has a central heating radiator with thermostatic valve, built-in storage cupboards, and open-display shelves. There is a feature fire opening, creating a display niche, with a dressed stone surround and timber mantle.

BEDROOM TWO 

With a front-aspect sliding sash window overlooking the garden. The room has a period cast iron bedroom fireplace, built-in cupboard with fitted shelving, and central heating radiator with thermostatic valve.

FAMILY BATHROOM 

With side-aspect double-glazed casement windows, with views over Cromford Meadows to the wooded hills beyond. The room is half-tiled with a fitted dado rail, and has a suite with: standalone roll-top bath set upon brass ball-and-claw feet, with floor-mounted pillar taps and handheld shower spray; a floral decorated pedestal wash hand basin, with an illuminated mirror and a shaver point over; quadrant shower cubicle with mixer shower, having monsoon-style rain head and handheld shower spray; and a high-level flush WC matching the wash hand basin. The room has a central heating radiator and an extractor fan.

OUTSIDE

Lying to the front of the property is a good-sized area of garden with a flagged terrace, beyond which is an artificial lawn. There are borders well stocked with ornamental shrubs and flowering plants. To the end of the garden is a stone-built garden store, and a further flagged seating area with double gates leading to a driveway, which provides off-road parking. The property has outside lighting. A personnel door in the garden wall leads to the rear of the property, where there is an enclosed rear yard with brick set and stone flag paving. There is a brick build storage/ bike shed.

SERVICES AND GENERAL INFORMATION

Mains electricity, water, and gas are connected to the property. Drainage is by way of a private system.

For Broadband speed, please go to checker.ofcom.org.uk/en-gb/broadband-coverage

For Mobile Phone coverage, please go to checker.ofcom.org.uk/en-gb/mobile-coverage

TENURE Freehold

DIRECTIONS

Leaving Matlock along the A6 towards Derby, after passing through Matlock Bath turn left at the traffic lights signposted Cromford Mill and Cromford Canal. Shortly after passing the mill building turn right between the two stone gate posts into Cromford Canal Wharf, where the property can be found on the left hand side.

ANTI-MONEY LAUNDERING 

We are required by law to conduct anti-money laundering checks on all those selling or buying a property. Whilst we retain responsibility for ensuring checks and any ongoing monitoring are carried out correctly, the initial checks are carried out on our behalf by Lifetime Legal who will contact you once you have agreed to instruct us in your sale or had an offer accepted on a property you wish to buy. The cost of these checks is £48 (incl. VAT), which covers the cost of obtaining relevant data and any manual checks and monitoring which might be required. This fee will need to be paid by you in advance of us publishing your property (in the case of a vendor) or issuing a memorandum of sale (in the case of a buyer), directly to Lifetime Legal, and is non-refundable.

Disclaimer

All measurements in these details are approximate.  None of the fixed appliances or services have been tested and no warranty can be given to their condition. The deeds have not been inspected by the writers of these details. These particulars are produced in good faith with the approval of the vendor but they should not be relied upon as statements or representations of fact and they do not constitute any part of an offer or contract. 

Important Information

  • This is a Freehold property.

Property Ref: 1214491

Share:

Similar Properties

Palladian, Victoria Bridge Road, Bath, BA2 3FJ

2 Bedroom Apartment | £425,000

An immaculately presented, light and spacious modern 3rd floor apartment located within walking distance of the city cen...

Wyntor Avenue, Winster, Matlock, DE4 2DU

3 Bedroom Bungalow | Offers in region of £400,000

A superbly presented newly refurbished detached bungalow, on a quiet cul-de-sac in the popular peak district village of...

Thorncliffe Avenue, Darley Dale, DE4 2HU

3 Bedroom Detached House | Offers Over £380,000

A well presented family home with superb views, on the edge of the Peak District National Park. 3 bedrooms, bathroom, si...

Park Avenue, Darley Dale. Matlock.

4 Bedroom Detached House | £445,000

An exceptionally well presented spacious detached family home on a quiet cul-de-sac. 4 bedrooms, family bathroom, sittin...

Church Lane, Brackenfield, Alfreton, DE55 6AQ

3 Bedroom Semi-Detached House | Guide Price £450,000

Guide Price £450,000 - £475,000. An exceptional renovated stone built School house with original features throughout. Lo...

Park Avenue, Darley Dale, DE4 2FX

3 Bedroom Bungalow | £470,000

A superbly presented delightfully spacious detached bungalow in a popular area close to amenities. Recently upgraded and...

Sally Botham Estates (Matlock)

27 Bank Road, Matlock, Derbyshire, DE4 3NF

01629 760899

How much is your home worth?

Use our short form to request a valuation of your property.

Request a Valuation

Mortgage Calculator

Amount Borrowed: £
Total Amount Repayable: £
Total Monthly Payment: £
©2026 The Guild of Property Professionals. All rights reserved. Terms and Conditions | Privacy Policy | Cookie Policy | Complaints Policy | Members Login
The Guild of Property Professionals Trading Address: 121 Park Lane, London W1K 7AG. GPEA Limited. Registered in England & Wales.  Company No: 02819824.  Registered Office Address: 2 St. Stephen's Court, St. Stephen's Road, Bournemouth, Dorset, England, BH2 6LA.  VAT Registration No: 576 8795 61
Book a Property Valuation Update Cookies Preferences